Büros
ID D3168Büroimmobilie - Duisburg, Neudorf-Nord - D3168
Neudorf-Nord, 47057, Duisburg, Nordrhein-Westfalen
Provisionspflichtig: bei Anmietung 3 Netto-Monatsmieten zzgl. gesetzlicher Umsatzsteuer.** der Wert kann je nach Vertragslaufzeit variieren.
6 € / m²
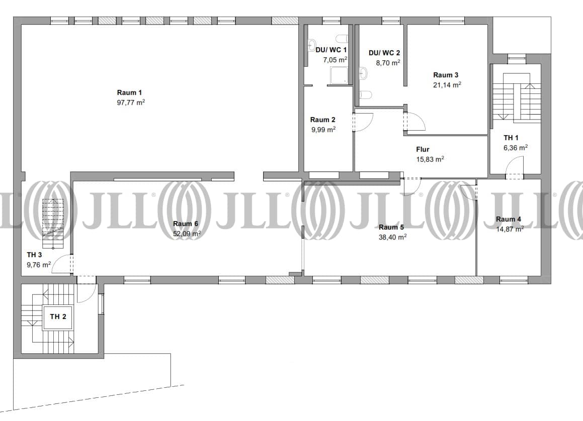
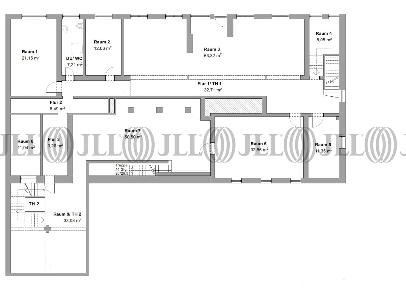
- Fläche547 - 1.055 m²
- VerfügbarkeitSofort
- Objekt
- Ausstattung
- Lage und Verkehrsanbindung
- Grundrisse
- Exposé herunterladen
- Ihr Kontakt
- Anfrage senden
Objekt
Das Objekt verfügt über einen sehr variablen Grundriss und überzeugt so durch seine vielfältigen Nutzungsmöglichkeiten. Die hellen Flächen können für Fitnessstudios, Praxen oder Bürobetriebe genutzt werden.
Verfügbare Fläche
Lage und Verkehrsanbindung
Der Stadtteil Neudorf grenzt im Westen an die Innenstadt, die Büroflächen in Neudorf verteilen sich entlang der Mülheimer Straße und den in südlicher Richtung angrenzenden Nebenstraßen. Die Universität Duisburg-Essen betreibt hier ihren Duisburger Campus mit den bekannten „Keksdosen“-Gebäuden in direkter Nachbarschaft zum Fraunhofer Institut. Im nahegelegenen Technologiezentrum Tectrum haben sich viele Start-Ups und Freiberufler angesiedelt, die aus unterschiedlichsten Bereichen stammen und zu einem gesunden Branchenmix in Neudorf beitragen. Architektonisch zeichnet sich Neudorf durch großvolumige Bürohäuser entlang der Mülheimer Straße aus, zu den besonders bekannten Immobilien zählen das Silberpalais als größtes Bürohaus Duisburgs, das Haus der Wirtschaftsförderung, sowie die Tectrum Bauten. Die Autobahnen A 3 und A 59 umrahmen den Stadtteil und gewährleisten gemeinsam mit der A 40 eine hervorragende Anbindung.
- Hauptbahnhof, Duisburg, Fahrzeit: 9 min
- Straßenbahn/Tram, Schweizer Str. 901, Gehzeit: 1 min
- Bus, Schweizer Str. 926, Gehzeit: 1 min
- Bundesautobahn, A 40, Fahrzeit: 7 min
- Bundesautobahn, A 59, Fahrzeit: 7 min
- Flughafen, Düsseldorf, Fahrzeit: 18 min
Ihr Kontakt

Martin Jahnke
Ihr Kontakt



