Büros
ID D3136Premium JLL
Provisionsfrei
Büroimmobilie - Düsseldorf, Flingern Nord - D3136
Flingern Nord, 40235, Düsseldorf, Nordrhein-Westfalen
Kontaktieren Sie uns für den Preis
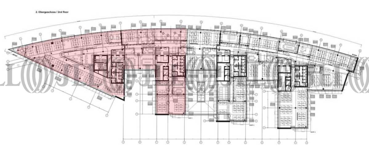
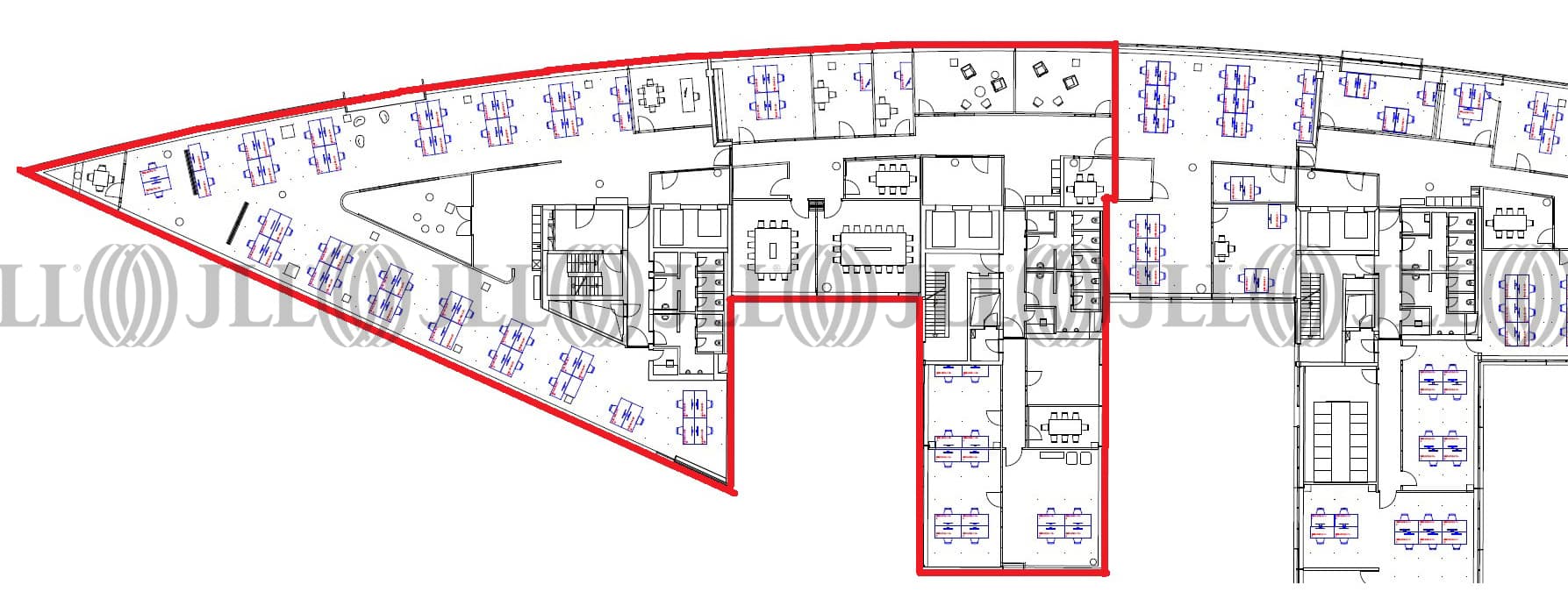
- Fläche687 - 1.299 m²
- VerfügbarkeitSofort
- Objekt
- Ausstattung
- Lage und Verkehrsanbindung
- Grundriss
- Exposé herunterladen
- Ihr Kontakt
- Anfrage senden
Objekt
Bei den angebotenen Mietflächen handelt es sich um Untermietflächen eines bekannten Unternehmens aus der Technologie- und Spielebranche. Die Flächen wurden 2019 / 2020 renoviert, sind hochwertig ausbaut und bieten daher einen hohen Standard. Eine Teilung, die Unterteilung der Mietfläche und die Übernahme von Möbeln sind möglich. Die angebotenen Mietflächen werden mit 100% zertifiziertem Ökostrom betrieben.
Verfügbare Fläche
Lage und Verkehrsanbindung
Das Objekt liegt im östlichen Stadtteil Grafenberg und verfügt über eine sehr gute ÖPNV-Anbindung in Richtung City. Namhafte Unternehmen haben sich bereits im attraktiven Umfeld bestehend aus Büro- und Wohngebieten eingefunden. Der Grafenberger Wald bildet im Osten des Gebiets eine „Grüne Oase“. Dienstleister des täglichen Bedarfs befinden sich in der Nähe.
Ihr Kontakt

Nell Ewert
Ihr Kontakt







