Büros
ID D3128Aktualisiert
Büroimmobilie - Essen - D3128
45128, Essen, Nordrhein-Westfalen
Provisionspflichtig: bei Anmietung 3 Netto-Monatsmieten zzgl. gesetzlicher Umsatzsteuer.** der Wert kann je nach Vertragslaufzeit variieren.
9,37 € - 11,30 € / m²
- Fläche520 - 678 m²
- VerfügbarkeitSofort
- Objekt
- Ausstattung
- Lage und Verkehrsanbindung
- Grundrisse
- Exposé herunterladen
- Ihr Kontakt
- Anfrage senden
Objekt
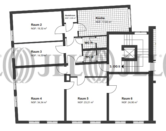
Die Büroräume befinden sich im 2. OG links und werden durch das zentrale Treppenhaus mit dem Aufzug erreicht. Teilweise sind die fünf Büroräume durch interne Türen miteinander verbunden. Flur und Büroräume werden mit Vinylboden in heller Holzoptik und weißen Wänden ausgestattet. Eine Küche ist vorhanden. Es steht 1 Parkplatz auf dem Innenhof, der von der Gärtnerstraße durch eine Hofdurchfahrt erreicht wird, zur Verfügung. Die Gebäudeüberwachung sowie der Winterdienst sind organisiert und werden über die Nebenkosten abgerechnet. Die Mietflächen werden nach Absprache mit dem neuen Nutzer renoviert übergeben.
Verfügbare Fläche
Lage und Verkehrsanbindung
Die Büromarktzone City umfasst die Innenstadt, das Entwicklungsgebiet Grüne Mitte und insbesondere die Fußgängerzone Essens. Sie wird im Norden durch den Viehofer Platz und im Osten durch Bürobebauung entlang der Schützenbahn begrenzt. Die City grenzt direkt an die Büro-marktzonen Weststadt und das Südviertel, die Abgrenzung erfolgt durch die Hindenburgstraße bzw. den Limbecker Platz im Westen sowie die Bahn-schienen des Essener Hbf im Süden. Die zentrale Lage mit ausgezeichneter ÖPNV-Anbindung und Infrastruktur, dazu repräsentative Bestandsbauten haben zahlreiche innovative, kapitalkräftige Firmen aller Branchen hierhergezogen. In der Einkaufsstadt Essen sind viele Banken sowie städtische Einrichtung wie das Rathaus und das zentrale Bürgerbüro angesiedelt. Zu den markantesten Gebäuden zählen die Hochhäuser an der Schützenbahn und Hollestraße sowie die Neubauten in der Grünen Mitte, auf dem Gelände des ehemaligen Güterbahnhofs.
- Flughafen, Düsseldorf, Fahrzeit: 22 min
- Bundesautobahn, A40, Fahrzeit: 5 min
- Bundesautobahn, A52, Fahrzeit: 6 min
- Hauptbahnhof, Essen, Gehzeit: 11 min
- Bus, Kronprinzenstraße 154, 155, Gehzeit: 2 min
Ihr Kontakt

Martin Jahnke
Ihr Kontakt






