Büros
ID D3062Provisionsfrei
Aktualisiert
Büroimmobilie - Düsseldorf, Oberbilk - D3062
Oberbilk, 40227, Düsseldorf, Nordrhein-Westfalen
16 € / m²
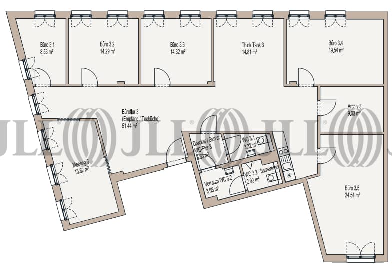
- Fläche106 - 604 m²
- VerfügbarkeitSofort
- Objekt
- Ausstattung
- Lage und Verkehrsanbindung
- Grundrisse
- Exposé herunterladen
- Ihr Kontakt
- Anfrage senden
Objekt
Die hochwertige Neubauentwicklung bietet eine wunderbare Kombination aus Wohnen, Einzelhandel und Büroflächen, sodass ein lebendiges Miteinander garantiert wird. Ein begrünter Innenhof rundet das Angebot ab.
Verfügbare Fläche
Lage und Verkehrsanbindung
Die Mindener Straße ist sehr gut an den öffentlichen Personen- und Nahverkehr angebunden und verfügt über kurze Wege sowohl in Richtung Innenstadt als auch zum Düsseldorfer Hauptbahnhof. Große Mieter wie beispielsweise das Landgericht, Henkel, Nike und die Provinzial haben sich ebenfalls in diesem Teilmarkt niedergelassen. Eine Tankstelle befindet sich in der Nähe.
- Flughafen, Düsseldorf, Fahrzeit: 21 min
- Bundesautobahn, A 46, Fahrzeit: 7 min
- Bundesautobahn, A 52, Fahrzeit: 9 min
- Bus, Markenstraße 732, Gehzeit: 3 min
- U-Bahn, Ellerstraße U47, U77, U79, Gehzeit: 6 min
- Hauptbahnhof, Düsseldorf, Fahrzeit: 8 min
Ihr Kontakt

Frederik VonWirth
Ihr Kontakt













