Büros
ID D3051Büroimmobilie - Duisburg - D3051
47167, Duisburg, Nordrhein-Westfalen
Provisionspflichtig: bei Anmietung 3 Netto-Monatsmieten zzgl. gesetzlicher Umsatzsteuer.** der Wert kann je nach Vertragslaufzeit variieren.
8,90 € / m²
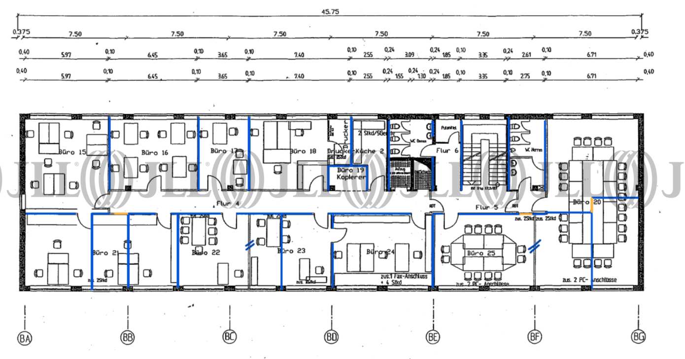
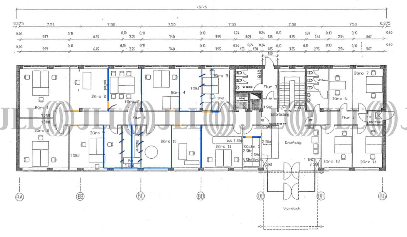
- Fläche497 - 994 m²
- VerfügbarkeitSofort
- Objekt
- Ausstattung
- Lage und Verkehrsanbindung
- Grundrisse
- Exposé herunterladen
- Ihr Kontakt
- Anfrage senden
Objekt
Die modernen Büroflächen überzeugen durch Ihre Helligkeit und Flexibilität in der Grundrissgestaltung. Es können bis zu 56 PKW-Stellplätze angemietet werden, sodass Nutzer jeglicher Größe ausreichend Parkmöglichkeiten am Objekt vorfinden. Die Büroflächen sind verkehrstechnisch gut abgebunden. So sind einige Autobahnauffahrten in weniger als drei Kilometern erreichbar und die nächstgelegene ÖPNV nur fünf Gehminuten entfernet.
Verfügbare Fläche
Lage und Verkehrsanbindung
Die Büromarktzone Duisburg Hamborn erstreckt sich entlang der Duisburger Straße und wird begrenzt von der A 59 im Norden, sowie der Alleestraße im Süden. Hamborn ist ein internationaler, pulsierender Stadtbezirk im Norden Duisburgs. Durch das Autobahnkreuz Hamborn der A 59 und A 42 mit direkter Verbindung zur A 2 und A 3 ist eine optimale Anbindung an das östliche Ruhrgebiet, den Niederrhein und die Landeshauptstadt Düsseldorf gewährleistet.
- Hauptbahnhof, Duisburg, Fahrzeit: 16 min
- Bus, Max-Planck-Str. 909, Gehzeit: 4 min
- Bundesautobahn, A 3, Fahrzeit: 8 min
- Bundesautobahn, A 42, Fahrzeit: 9 min
- Flughafen, Düsseldorf, Fahrzeit: 35 min
Ihr Kontakt

Martin Jahnke
Ihr Kontakt


