Büros
ID D2995Büroimmobilie - Düsseldorf, Friedrichstadt - D2995
Friedrichstadt, 40215, Düsseldorf, Nordrhein-Westfalen
Provisionspflichtig: bei Anmietung 3 Netto-Monatsmieten zzgl. gesetzlicher Umsatzsteuer.** der Wert kann je nach Vertragslaufzeit variieren.
17,50 € / m²
- Fläche165 - 732 m²
- VerfügbarkeitSofort
- Objekt
- Ausstattung
- Lage und Verkehrsanbindung
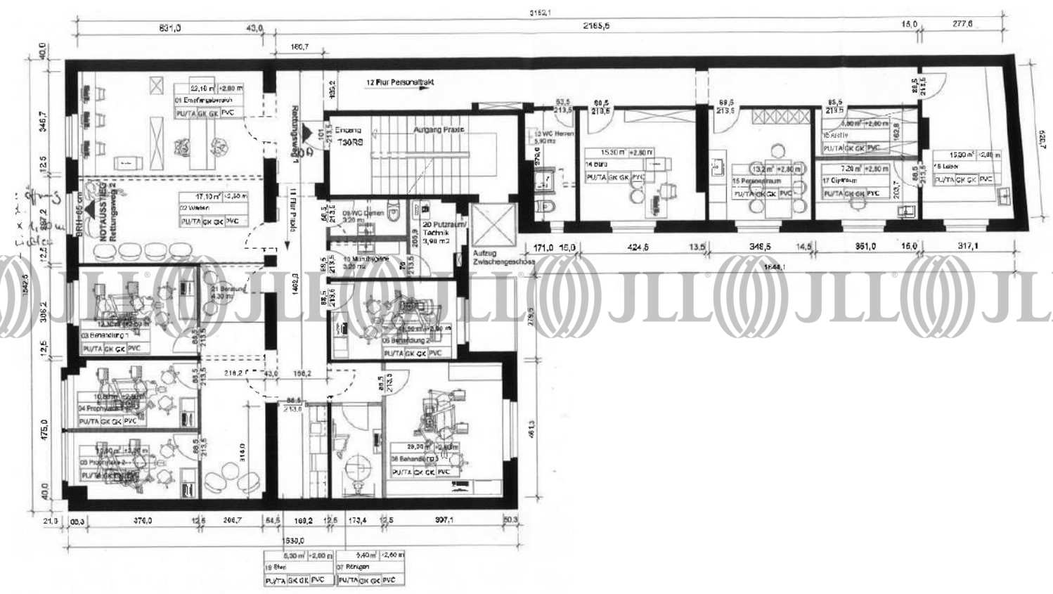
- Grundriss
- Exposé herunterladen
- Ihr Kontakt
- Anfrage senden
Objekt
Das viergeschossige Büro- und Geschäftshaus verfügt über moderne Büroflächen und bietet mit Blick auf die Königsallee eine angenehme Arbeitsatmosphäre. Die lichtdurchfluteten Büroeinheiten überzeugen durch Ihren effizienten Grundriss und bieten eine optimale Raumaufteilung. Die jeweiligen Austritte auf den Etagen runden das Angebot ab.
Verfügbare Fläche
Lage und Verkehrsanbindung
Die Liegenschaft befindet sich in zentraler Innenstadtlage von Düsseldorf. Dieser Standort zeichnet sich besonders durch eine sehr gute Infrastruktur und ÖPNV Anbindung aus. Zahlreiche Einkaufsmöglichkeiten, Geschäfte des alltäglichen Bedarfs sowie Restaurants und Ärzte sind in unmittelbarer Nähe zu finden. Die Altstadt direkt am Rhein gelegen sowie die beliebte Einkaufsmeile Königsallee laden zum Verweilen ein und liegen in fußläufiger Entfernung.
- Hauptbahnhof, Düsseldorf, Fahrzeit: 5 min
- U-Bahn, Graf-Adolf-Platz U71, U72, U73, U83, Gehzeit: 3 min
- Straßenbahn/Tram, Graf-Adolf-Platz 706, 707, 708, 709, Gehzeit: 3 min
- Bus, Graf-Adolf-Platz 726, SB 85, Gehzeit: 3 min
- Bundesautobahn, A 52, Fahrzeit: 7 min
- Bundesautobahn, A 46, Fahrzeit: 7 min
- Flughafen, Düsseldorf International, Fahrzeit: 14 min
Ihr Kontakt

Anna-Louisa Kratochvil
Ihr Kontakt




