
Büros
ID D2993Aktualisiert
Büroimmobilie - Wuppertal, Elberfeld-Mitte - D2993
Elberfeld-Mitte, 42103, Wuppertal, Nordrhein-Westfalen
Provisionspflichtig: bei Anmietung 3 Netto-Monatsmieten zzgl. gesetzlicher Umsatzsteuer.** der Wert kann je nach Vertragslaufzeit variieren.
8,50 € / m²
- Fläche802 - 3.590 m²
- Verfügbarkeit12 Monate ab Vertragsunterzeichnung
- Objekt
- Ausstattung
- Lage und Verkehrsanbindung
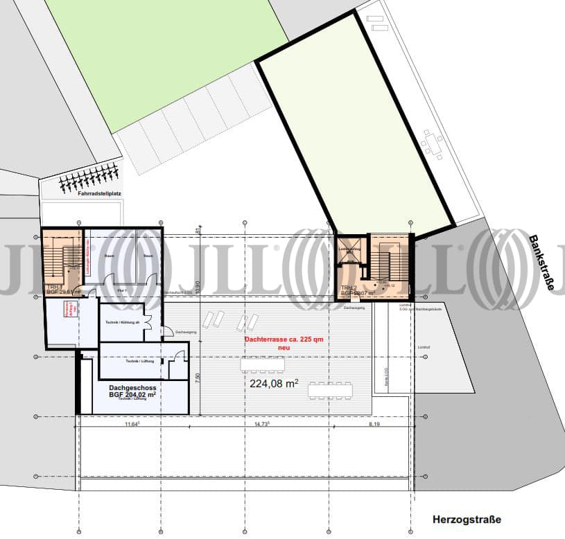
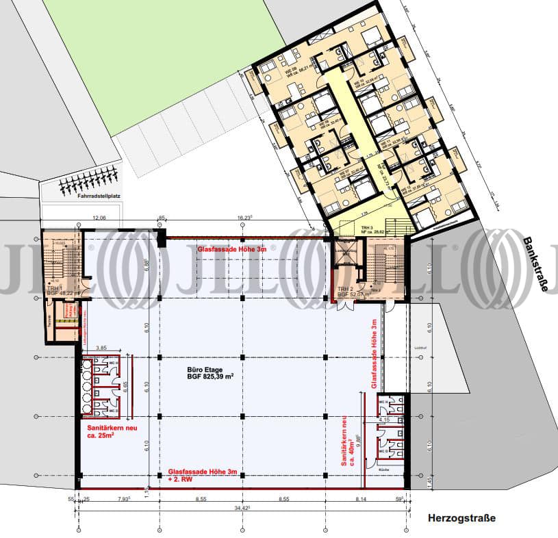
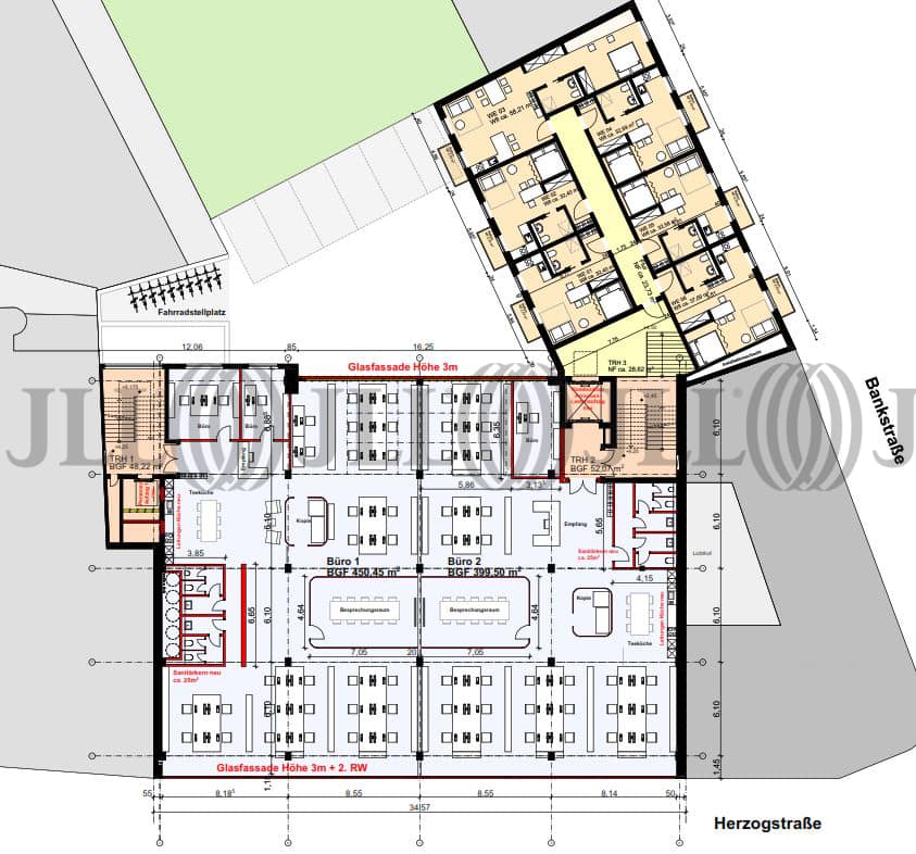
- Grundrisse
- Exposé herunterladen
- Ihr Kontakt
- Anfrage senden
Objekt
Das in bester Innenstadtlage liegende Objekt wird von Grund auf revitalisiert und wird seine Mieter mit den Vorzügen seiner hervorragenden Lage, Anbindung an den ÖPNV und gleichzeitig dem modernen Ausbau begeistern. Flexible Grundrisse und helle Flächen sind ebenso gesetzt wie ein maßgeschneiderter Ausbau der Büros.
Zertifizierungen
Energieausweis
Für diese Liegenschaft liegt ein Bedarfsausweis vom 2017-03-08 vom Eigentümer/Vermieter vor. Die wesentlichen Energieträger der Liegenschaft sind Fernwärme,Nahwärme. Der Endenergiebedarf Strom beträgt 28.70 kWh/(m²*a). Der Endenergiebedarf Wärme beträgt 78.00 kWh/(m²*a).Verfügbare Fläche
Lage und Verkehrsanbindung
Die fast 400.000 Einwohner fassende Stadt Wuppertal liegt südlich des Ruhrgebiets und gilt als Zentrum des Bergischen Landes. Die Universitätsstadt ist vor Allem bekannt für seine Schwebebahn, das Wuppertal Institut für Klima, Umwelt und Energie sowie den zoologischen Garten, die historische Stadthalle und das Sinfonieorchester Wuppertal. Die Stadt liegt in einem Bogen der Wupper entlang der Grenze zum Niederbergischen und den Oberbergischen Hochflächen. Wuppertal ist hervorragend angebunden an die Autobahnen sowie den ÖPNV.
- Flughafen, Düsseldorf, Fahrzeit: 34 min
- Bundesautobahn, A 46, Fahrzeit: 6 min
- Bundesautobahn, A 535, Fahrzeit: 9 min
- Bus, Wall/Museum 612, 622, 623, 643, E885, E892, Gehzeit: 2 min
- Hauptbahnhof, Wuppertal, Fahrzeit: 5 min
Ihr Kontakt

Martin Jahnke
Ihr Kontakt