Büros
ID D2970Provisionsfrei
Büroimmobilie - Essen, Holsterhausen - D2970
Holsterhausen, 45145, Essen, Nordrhein-Westfalen
13,50 € / m²
- Fläche690 m²
- VerfügbarkeitSofort
- Objekt
- Ausstattung
- Lage und Verkehrsanbindung
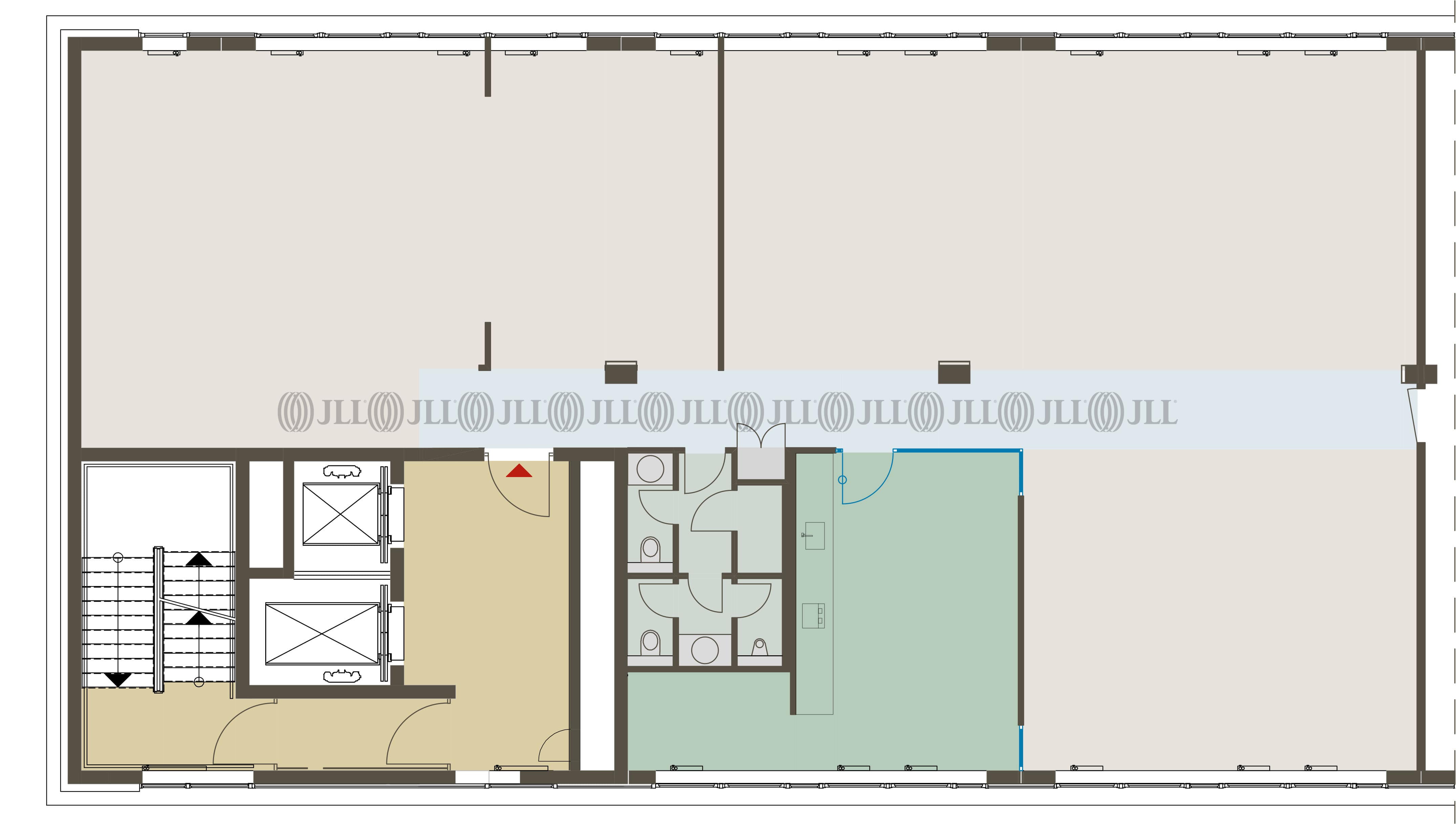
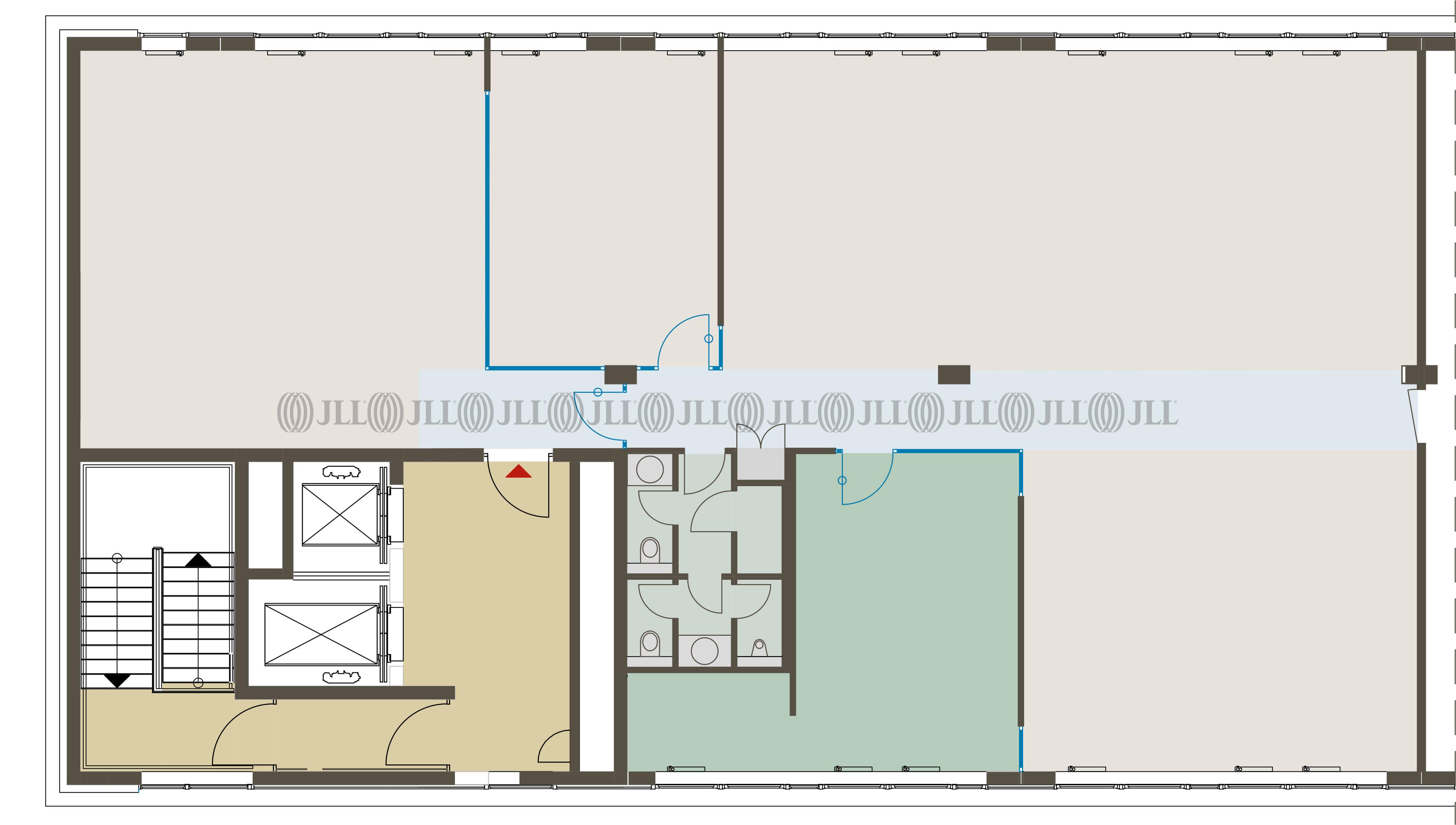
- Grundrisse
- Exposé herunterladen
- Ihr Kontakt
- Anfrage senden
Objekt
Das sehr repräsentative und neuwertige Objekt überzeugt mit seinen hellen und lichtdurchfluteten Flächen. Diese sind mit einem sehr flexiblen und anpassbaren Grundriss ausgestattet und lassen keine Wünsche offen. Auf insgesamt vier Etagen, die sich im 2. Bis ins 5. Obergeschoss befinden, ist eine Fläche von bis zu 1.380 m² flexibel gestaltbare Bürofläche anmietbar. Jede Etage kann aber auch einzeln angemietet werden und verfügt über eine Größe von ca. 344 m². Die freien Flächen können dabei nach Ihren Wünschen gestalten werden. Ein weiteres großes Plus der Flächen ist, dass eine hohe Anzahl an Stellplätzen angeboten werden kann. Diese befinden sich direkt vor dem Gebäude und im nahen gelegenen Parkhaus. Das Gebäude verfügt über eine DGNB Gold Zertifizierung. Damit zeichnet sich das EUROPA-CENTER Trineo als ein nachhaltig errichtetes Gebäude aus. Innovative und moderne Gebäudetechnik sorgt für optimale Arbeitsbedingungen. So ist beispielsweise eine individuelle Steuerung der Raumtemperatur, Beleuchtung und des Sonnenschutzes möglich. Überzeugen Sie sich von diesen modernen und innovativen Büroflächen.
Zertifizierungen
Energieausweis
DGNB: GoldVerfügbare Fläche
Lage und Verkehrsanbindung
Das Süd-West-Viertel grenzt unmittelbar an das Südviertel und erstreckt sich entlang der Autobahn A 40 bis zur Martin-Luther-Straße. Es wird maßgeblich durch das Technologiezentrum ETEC geprägt, in dem sich Mieter aus den verschiedensten Branchen und zahlreiche Neugründungen befinden. Markante Gebäude sind unter anderem die Europacenter-Neubauten direkt an der Autobahnauffahrt zur A 40, sowie der Fernmeldeturm Essen mit den angrenzenden Gebäuden der Deutschen Telekom. Eine Tankstelle befindet sich in der Nähe. Dienstleister des täglichen Bedarfs befinden sich in der Nähe.
- Hauptbahnhof, Essen, Gehzeit: 15 min
- U-Bahn, Bismarckplatz U17, U18, Gehzeit: 5 min
- Bus, Münchener Straße 196, Gehzeit: 2 min
- Bundesautobahn, A 40, Fahrzeit: 1 min
- Bundesautobahn, A 52, Fahrzeit: 8 min
- Flughafen, Düsseldorf, Fahrzeit: 22 min
Ihr Kontakt

Martin Jahnke
Ihr Kontakt
















