Büros
ID D2959Büroimmobilie - Essen, Holsterhausen - D2959
Holsterhausen, 45145, Essen, Nordrhein-Westfalen
Provisionspflichtig: bei Anmietung 3 Netto-Monatsmieten zzgl. gesetzlicher Umsatzsteuer.** der Wert kann je nach Vertragslaufzeit variieren.
7,50 € / m²
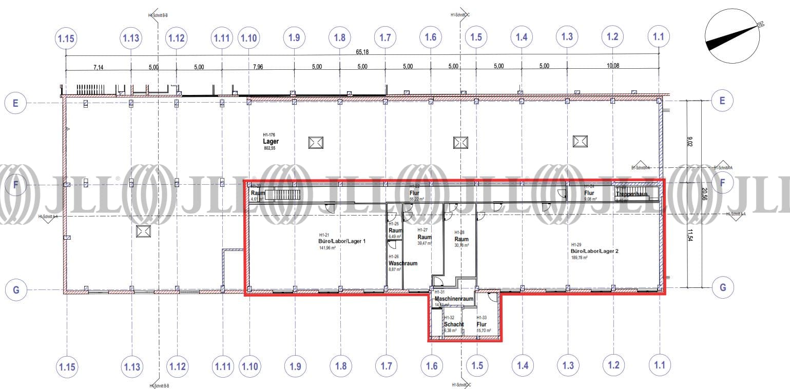
- Fläche480 m²
- VerfügbarkeitAuf Anfrage
- Objekt
- Ausstattung
- Lage und Verkehrsanbindung
- Grundriss
- Exposé herunterladen
- Ihr Kontakt
- Anfrage senden
Objekt
Diese außergewöhnlichen Flächen befinden sich in der ehemaligen Funke-Druckerei und bieten damit eine einzigartige Arbeitsumgebung in einem historischen Gebäude, das mit seinem Mix aus einem ansprechenden und modernen Industriedesign sowie einigen historischen Elementen überzeugt. Das Gebäude hat neben den Produktionsbereichen ansprechende Bürogebäude angegliedert, in denen hochwertige Büroflächen entstehen. Die Mietflächen werden dabei in Absprache mit dem Mieter renoviert übergeben. Die großen Fenster sorgen für eine gute Belichtung der Räume und schaffen eine angenehme Arbeitsatmosphäre. Ein weiteres Highlight ist, das der Lastenaufzug über die Flächen direkt zugänglich ist. Auch eine Andienung im Erdgeschoss ist bei diesem vielseitigen Objekt vorhanden.
Verfügbare Fläche
Lage und Verkehrsanbindung
Das Süd-West-Viertel grenzt unmittelbar an das Südviertel und erstreckt sich entlang der Autobahn A 40 bis zur Martin-Luther-Straße. Es wird maßgeblich durch das Technologiezentrum ETEC geprägt, in dem sich Mieter aus den verschiedensten Branchen und zahlreiche Neugründungen befinden. Markante Gebäude sind unter anderem die Europacenter-Neubauten direkt an der Autobahnauffahrt zur A 40, sowie der Fernmeldeturm Essen mit den angrenzenden Gebäuden der Deutschen Telekom.
- Flughafen, Düsseldorf, Fahrzeit: 23 min
- Bundesautobahn, A40, Fahrzeit: 3 min
- Bundesstraße, B224, Fahrzeit: 2 min
- Bundesautobahn, A52, Fahrzeit: 7 min
- Bus, Harkortstr. 196, Gehzeit: 8 min
Ihr Kontakt

Martin Jahnke
Ihr Kontakt





