Büros
ID D2934Provisionsfrei
Aktualisiert
Büroimmobilie - Düsseldorf, Stockum - D2934
Stockum, 40468, Düsseldorf, Nordrhein-Westfalen
23,50 € / m²
- Fläche246 - 5.793 m²
- VerfügbarkeitIV quartal 2026
- Objekt
- Ausstattung
- Lage und Verkehrsanbindung
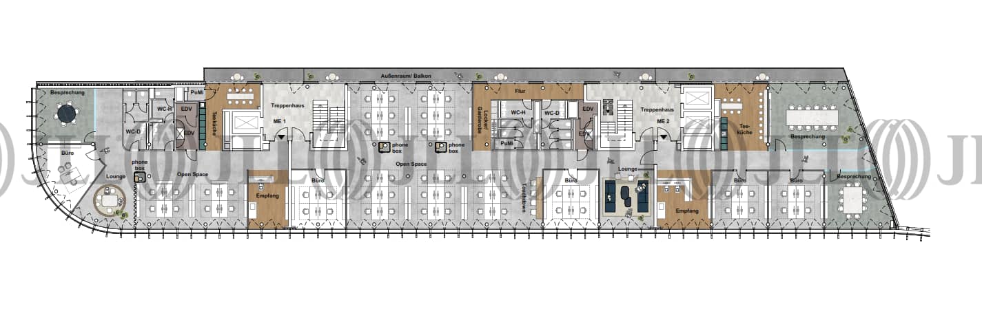
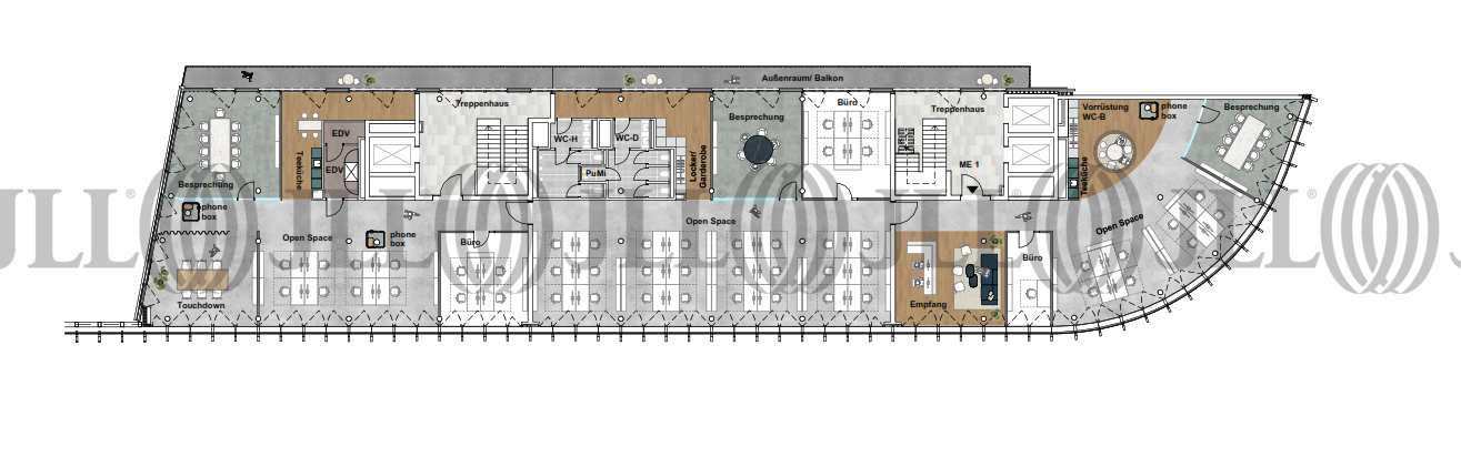
- Grundrisse
- Exposé herunterladen
- Ihr Kontakt
- Anfrage senden
Objekt
Die Büroräume der Deiker Höfe zeichnen sich aus durch ein Höchstmaß an Qualität und Flexibilität. Der individuelle Zuschnitt der Büros und die Ausbauleistungen lassen sich exakt an Ihre Wünsche anpassen. Hier finden Sie jede Menge Raum für die Umsetzung moderner, zukunftsweisender Arbeitsplatzkonzepte und für die Verwirklichung Ihrer eigenen Vorstellungen.
Zertifizierungen
Energieausweis
DGNB: GoldVerfügbare Fläche
Lage und Verkehrsanbindung
Die Liegenschaft befindet sich in direkter Nähe des Düsseldorfer Flughafens und bietet damit, besonders international tätigen Unternehmen, beste Voraussetzungen. Auch das Umland ist durch die gute Anbindung an das Autobahnnetz schnell erreichbar. Der Airport Düsseldorf-International sowie der naheliegende Kennedydamm bieten zudem zahlreiche Einkaufsmöglichkeiten und ein breites Angebot an Gastronomie
- U-Bahn, Messe Ost / Stockum U79, Gehzeit: 7 min
- Bundesautobahn, A44, Fahrzeit: 3 min
- Bundesautobahn, A52, Fahrzeit: 8 min
- Hauptbahnhof, Düsseldorf, Fahrzeit: 15 min
- Flughafen, Düsseldorf, Fahrzeit: 5 min
- Bus, Birkhahnweg SB51, 721, Gehzeit: 1 min
Ihr Kontakt

Bernd Giesbert
Ihr Kontakt











