Büros
ID D2924Büroimmobilie - Langenfeld (Rhld.) - D2924
40764, Langenfeld (Rhld.), Nordrhein-Westfalen
Provisionspflichtig: bei Anmietung 3 Netto-Monatsmieten zzgl. gesetzlicher Umsatzsteuer.** der Wert kann je nach Vertragslaufzeit variieren.
8 € / m²
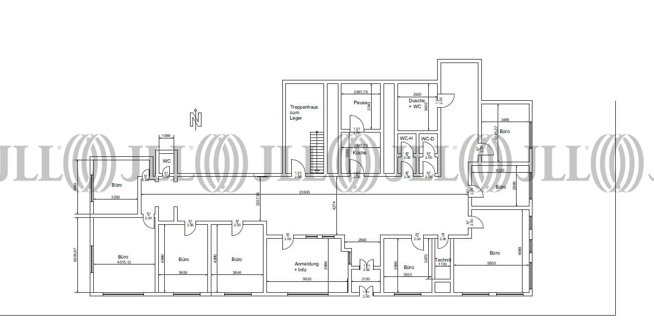
- Fläche298 - 436 m²
- VerfügbarkeitSofort
- Objekt
- Ausstattung
- Lage und Verkehrsanbindung
- Grundriss
- Exposé herunterladen
- Ihr Kontakt
- Anfrage senden
Objekt
Die Lager- und Produktionsflächen wurden im Jahre 1984 errichtet. Das Gelände ist vollständig umzäunt und ist über die Hans-Böckler-Straße befahrbar.
Verfügbare Fläche
Lage und Verkehrsanbindung
Die Stadt Langenfeld mit seinen ca. 60.000 Einwohnern zeichnet sich durch seine optimale Lage zwischen den Rheinmetropolen Köln und Düsseldorf aus. Über die Autobahnkreuze Düsseldorf-Süd und Hilden sind Fernverbindungen in alle Richtungen vorhanden. Eine Tankstelle befindet sich in der Nähe. Dienstleister des täglichen Bedarfs befinden sich in der Nähe.
- Flughafen, Düsseldorf, Fahrzeit: 27 min
- Bundesautobahn, A 59, Fahrzeit: 3 min
- Bundesautobahn, A 542, Fahrzeit: 8 min
- Bundesautobahn, A 3, Fahrzeit: 10 min
- Bus, Bushaltestelle Langenfeld Fuhrkamp Buslinien 787, Gehzeit: 2 min
Ihr Kontakt

Anna-Louisa Kratochvil
Ihr Kontakt


