Büros
ID D2912Provisionsfrei
Aktualisiert
Büroimmobilie - Neuss - D2912
41460, Neuss, Nordrhein-Westfalen
10,50 € / m²
- Fläche262 - 3.881 m²
- VerfügbarkeitAuf Anfrage
- Objekt
- Ausstattung
- Lage und Verkehrsanbindung
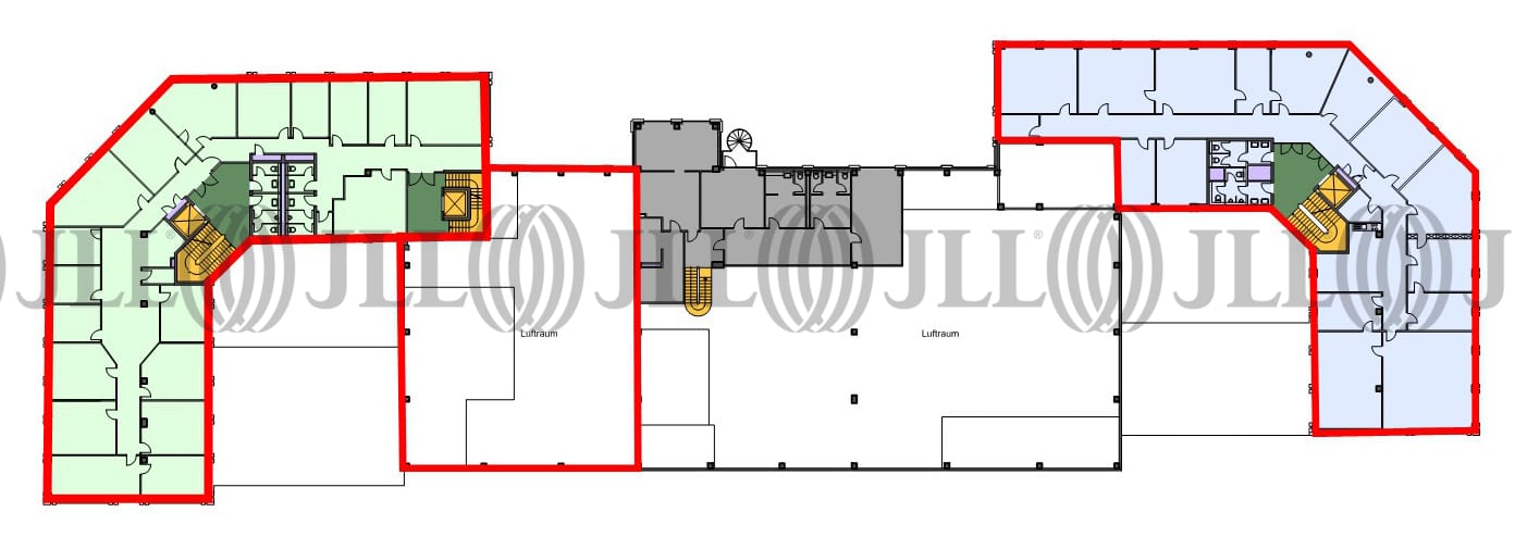
- Grundrisse
- Exposé herunterladen
- Ihr Kontakt
- Anfrage senden
Objekt
Die Liegenschaft verfügt über helle und modern ausgestattete Büroflächen. Die Mieteinheit kann flexibel aufgeteilt werden, sodass die Räumlichkeiten ganz nach den Wünschen des Mieters gestaltet werden können.
Zertifizierungen
Energieausweis
Für diese Liegenschaft liegt ein Bedarfsausweis vom 03.01.2022 vom Eigentümer/Vermieter vor. Die wesentlichen Energieträger der Liegenschaft sind Erdgas leicht, Strom. Der Endenergiebedarf Strom beträgt 24 kWh/(m²*a). Der Endenergiebedarf Wärme beträgt 204 kWh/(m²*a).Verfügbare Fläche
Lage und Verkehrsanbindung
Eine Mischung aus modernen Gewerbeparks und attraktivem Wohnumfeld prägen den Standort Neuss, in welchem sich bereits namhafte Unternehmen niedergelassen haben. Durch die Autobahnen A 46 / A 52 / A 57 und ein gutes ÖPNV-Netz ist eine optimale Anbindung nach Düsseldorf und in das Umland gegeben.
- Flughafen, Düsseldorf, Fahrzeit: 17 min
- Bundesautobahn, A 52, Fahrzeit: 4 min
- Bundesautobahn, A 57, Fahrzeit: 7 min
- Bus, Graf-Landsberg-Straße Linien 841, 862, 863, Gehzeit: 3 min
- U-Bahn, Handweiser Linie U75, Gehzeit: 13 min
- Bahnhof, Bahnhof, Fahrzeit: 9 min
Ihr Kontakt

Janice Lehmann
Ihr Kontakt










