Büros
ID D2906Büroimmobilie - Essen, Südviertel - D2906
Südviertel, 45128, Essen, Nordrhein-Westfalen
Provisionspflichtig: bei Anmietung 3 Netto-Monatsmieten zzgl. gesetzlicher Umsatzsteuer.** der Wert kann je nach Vertragslaufzeit variieren.
15 € / m²
- Fläche665 - 5.048 m²
- VerfügbarkeitSofort
- Objekt
- Ausstattung
- Lage und Verkehrsanbindung
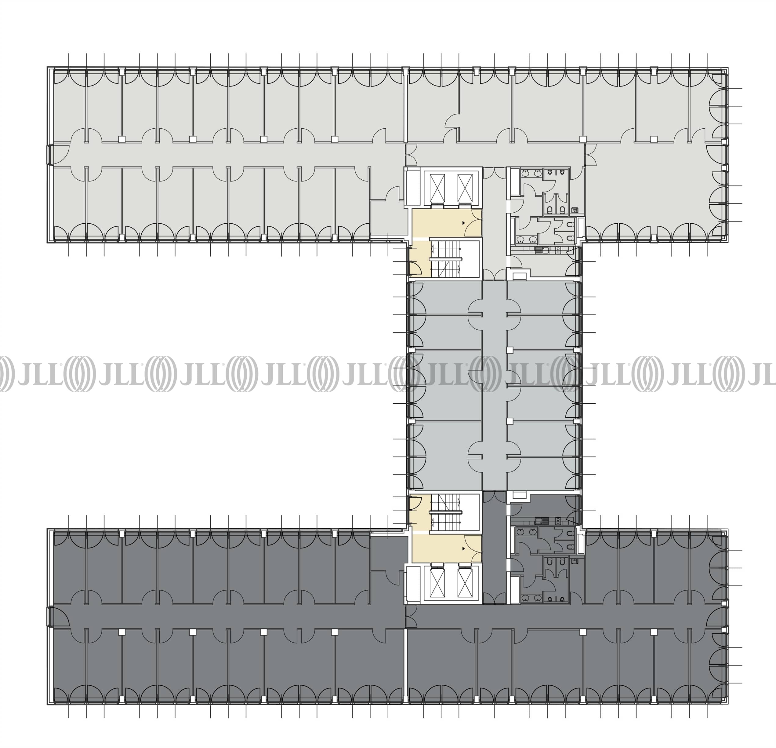
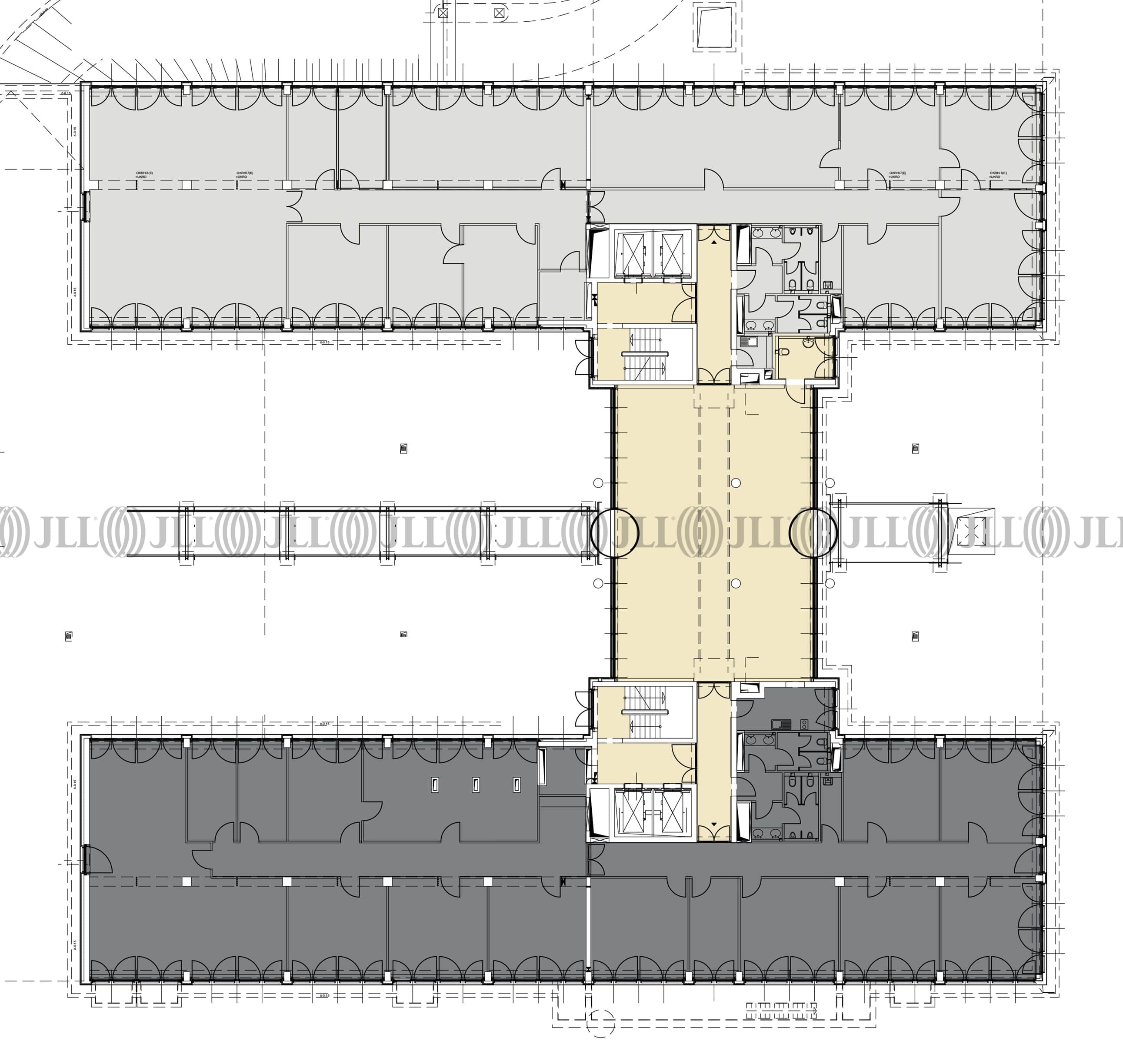
- Grundrisse
- Exposé herunterladen
- Ihr Kontakt
- Anfrage senden
Objekt
Das modernsten Anforderungen entsprechende Objekt überzeugt neben seinem gepflegten und repräsentativen äußeren Erscheinungsbild auch mit seinen sehr flexiblen und hellen Flächen. So verkehrsgünstig und zentral das Objekt gelegen ist, so flexibel ist der Mieter auch mit der Gestaltung seiner Wunschfläche.
Verfügbare Fläche
Lage und Verkehrsanbindung
Die Büromarktzone City umfasst die Innenstadt, das Entwicklungsgebiet Grüne Mitte und insbesondere die Fußgängerzone Essens. Sie wird im Norden durch den Viehofer Platz und im Osten durch Bürobebauung entlang der Schützenbahn begrenzt. Die City grenzt direkt an die Büromarktzonen Weststadt und das Südviertel. Die Abgrenzung erfolgt durch die Hindenburgstraße bzw. den Limbecker Platz im Westen sowie die Bahnschienen des Essener Hauptbahnhofs im Süden. Aufgrund der zentralen Lage mit ausgezeichneter ÖPNV-Anbindung und Infrastruktur, dazu repräsentative Bestandsbauten haben sich zahlreiche innovative, kapitalkräftige Firmen aller Branchen angesiedelt. Zu den markantesten Gebäuden zählen die Hochhäuser an der Schützenbahn und Hollestraße sowie die Neubauten in der Grünen Mitte, auf dem Gelände des ehemaligen Güterbahnhofs.
- Flughafen, Düsseldorf, Fahrzeit: 21 min
- Bundesautobahn, A 40, Fahrzeit: 5 min
- Bundesautobahn, A 52, Fahrzeit: 7 min
- Bus, Cäcilienstraße 145, Gehzeit: 4 min
- Hauptbahnhof, Essen, Fahrzeit: 4 min
- U-Bahn, Philharmonie U11, Gehzeit: 8 min
- Straßenbahn/Tram, Philharmonie 107, 108, Gehzeit: 8 min
Ihr Kontakt

Martin Jahnke
Ihr Kontakt





