Büros
ID D2901Aktualisiert
Büroimmobilie - Dortmund, Innenstadt-Ost - D2901
Innenstadt-Ost, 44139, Dortmund, Nordrhein-Westfalen
Provisionspflichtig: bei Anmietung 3 Netto-Monatsmieten zzgl. gesetzlicher Umsatzsteuer.** der Wert kann je nach Vertragslaufzeit variieren.
Kontaktieren Sie uns für den Preis
- Fläche455 - 4.265 m²
- VerfügbarkeitIII quartal 2026
- Objekt
- Ausstattung
- Lage und Verkehrsanbindung
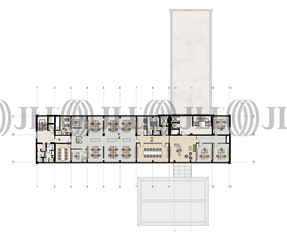
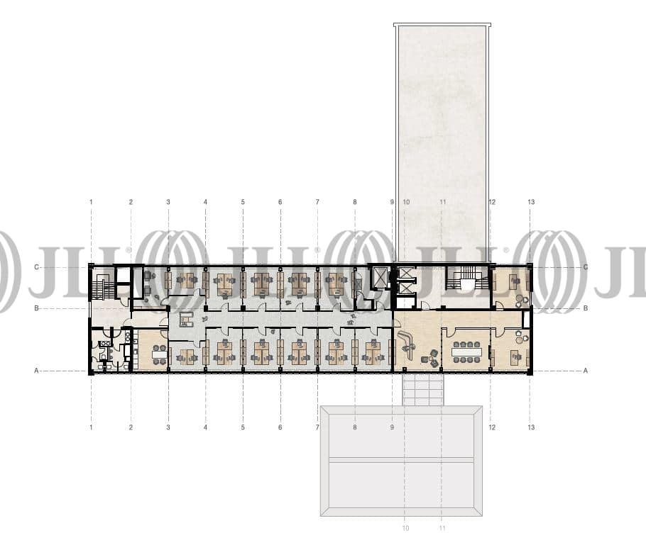
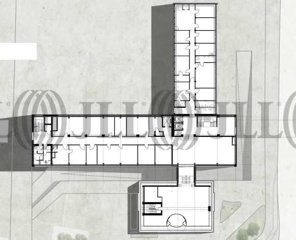
- Grundrisse
- Exposé herunterladen
- Ihr Kontakt
- Anfrage senden
Objekt
Das in Dortmund durch seine exponierte Lage bekannte Objekt besticht mit seiner hervorragenden Anbindung an die Innenstadt sowie die Autobahn. Die Flächen werden ganz individuell für und mit dem Mieter ausgebaut und dank des sehr flexiblen Grundrisses perfekt an die Wünsche des Selbigen angepasst.
Verfügbare Fläche
Lage und Verkehrsanbindung
Der Standort kennzeichnet wie kein zweiter den wirtschaftlichen Wandel der einstigen Industriestadt hin zu einem Zentrum für Dienstleistungen und Zukunftstechnologien. Der Mix aus geschichtsträchtigen Altbauvillen und großen Bürokomplexen machen ihn einzigartig. Er hat sich zu einer der bevorzugten Adressen in Dortmund etabliert und ist mit seiner direkten Anbindung an die Innenstadt und Autobahn perfekt zu erreichen. Durch die Lage an der Hauptverkehrsader B 1 bieten die Gebäude eine hervorragende Visibilität und nicht selten Weitblick über die Region. Eine Tankstelle befindet sich in der Nähe. Dienstleister des täglichen Bedarfs befinden sich in der Nähe.
- Hauptbahnhof, Dortmund, Fahrzeit: 8 min
- U-Bahn, Markgrafenstraße U41, U45, U47, U49, Gehzeit: 7 min
- Bundesautobahn, A 40, Fahrzeit: 3 min
- Bundesautobahn, A 45, Fahrzeit: 8 min
- Flughafen, Düsseldorf, Fahrzeit: 44 min
Ihr Kontakt

Martin Jahnke
Ihr Kontakt






