Büros
ID D2851Büroimmobilie - Duisburg, Alt-Hamborn - D2851
Alt-Hamborn, 47166, Duisburg, Nordrhein-Westfalen
Provisionspflichtig: bei Anmietung 3 Netto-Monatsmieten zzgl. gesetzlicher Umsatzsteuer.** der Wert kann je nach Vertragslaufzeit variieren.
9,50 € / m²
- Fläche200 m²
- VerfügbarkeitSofort
- Objekt
- Ausstattung
- Lage und Verkehrsanbindung
- Grundrisse
- Exposé herunterladen
- Ihr Kontakt
- Anfrage senden
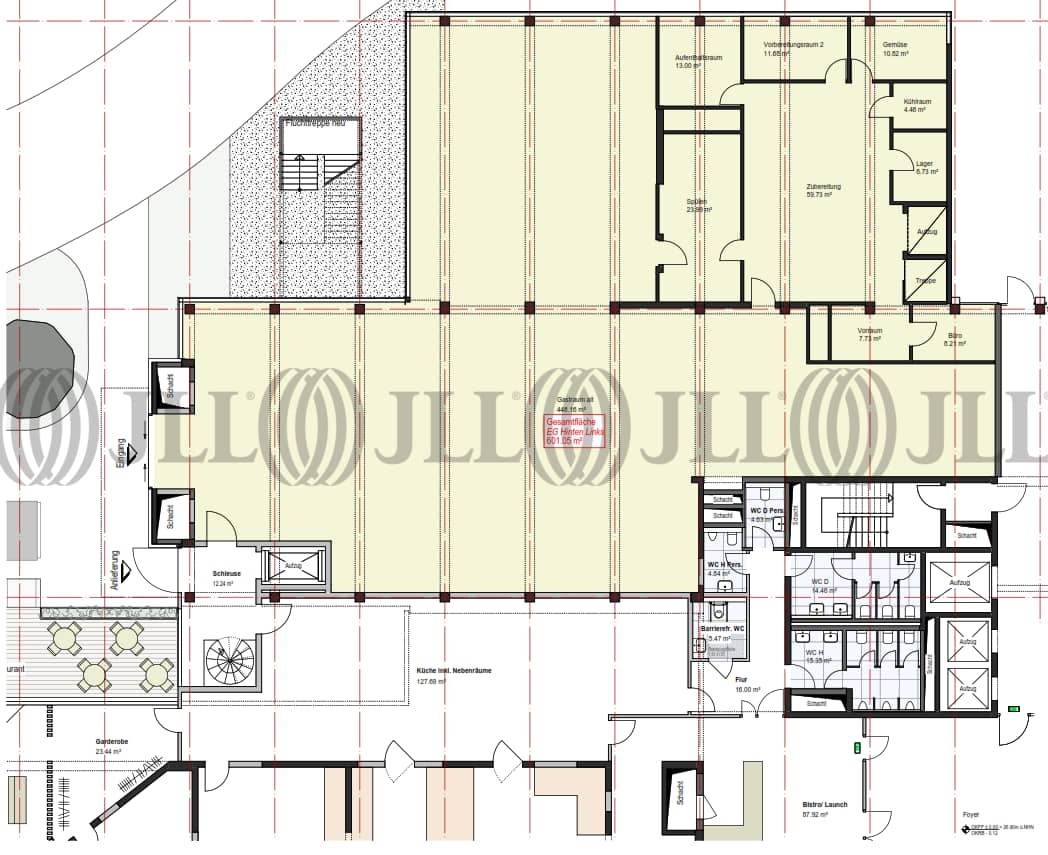
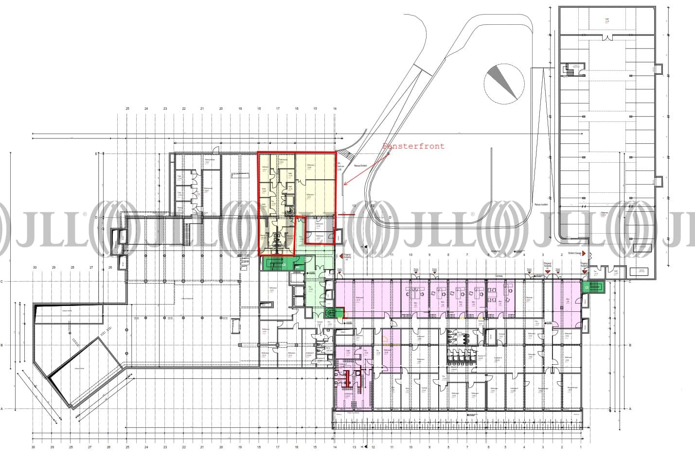
Objekt
Das Objekt verfügt über eine vielfältige Anzahl an Gestaltungsmöglichkeiten. Die Grundrisse sind absolut flexibel. Die großen Fensterfronten sorgen für eine helle und lichtdurchflutete Atmosphäre.
Verfügbare Fläche
Lage und Verkehrsanbindung
Die Büromarktzone Duisburg Hamborn erstreckt sich entlang der Duisburger Straße und wird begrenzt von der A 59 im Norden, sowie der Alleestraße im Süden. Hamborn ist ein internationaler, pulsierender Stadtbezirk im Norden Duisburgs. Durch das Autobahnkreuz Hamborn der A 59 und A 42 mit direkter Verbindung zur A 2 und A 3 ist eine optimale Anbindung an das östliche Ruhrgebiet, den Niederrhein und die Landeshauptstadt Düsseldorf gewährleistet. Eine Tankstelle befindet sich in der Nähe. Dienstleister des täglichen Bedarfs befinden sich in der Nähe.
- Hauptbahnhof, Duisburg, Fahrzeit: 14 min
- Straßenbahn/Tram, Hamborn Rathaus 903, Gehzeit: 4 min
- Bus, Hamborn Rathaus 907, 908, 909, 910, 935, Gehzeit: 4 min
- Bundesautobahn, A 42, Fahrzeit: 4 min
- Bundesautobahn, A 59, Fahrzeit: 8 min
- Flughafen, Düsseldorf, Fahrzeit: 22 min
Ihr Kontakt

Martin Jahnke
Ihr Kontakt










