Büros
ID D2843Büroimmobilie - Düsseldorf, Düsseltal - D2843
Düsseltal, 40237, Düsseldorf, Nordrhein-Westfalen
Provisionspflichtig: bei Anmietung 3 Netto-Monatsmieten zzgl. gesetzlicher Umsatzsteuer.** der Wert kann je nach Vertragslaufzeit variieren.
Kontaktieren Sie uns für den Preis
- Fläche540 m²
- VerfügbarkeitAuf Anfrage
- Objekt
- Ausstattung
- Lage und Verkehrsanbindung
- Grundrisse
- Exposé herunterladen
- Ihr Kontakt
- Anfrage senden
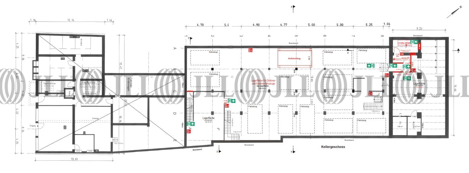
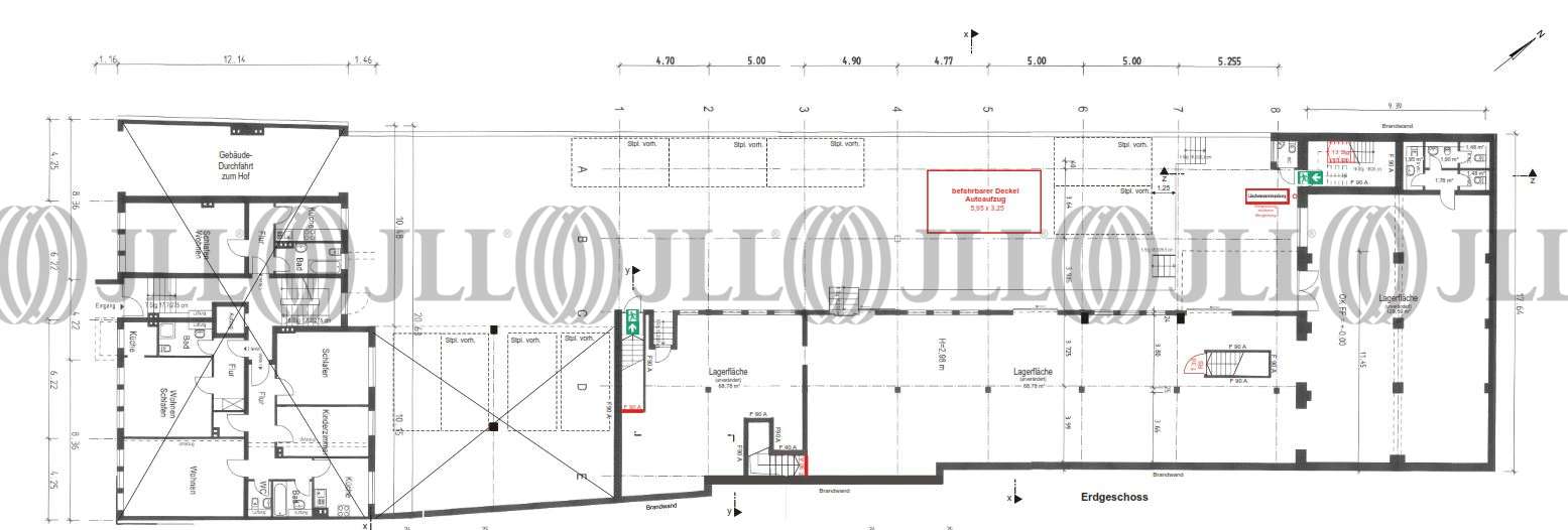
Objekt
Die Erdgeschossbereiche des rückwärtigen Hofgebäude werden (wie die Kellergeschossbereiche auch) derzeit als gewerbliche Lagerflächen genutzt. Die beiden Obergeschosse des dreigeschossigen Hofgebäudes werden zu Wohnzwecken genutzt. Es wird derzeit eine Nutzungsänderung beantragt.
Verfügbare Fläche
Lage und Verkehrsanbindung
Das Objekt befindet sich im renommierten Düsseldorfer Zooviertel. Die ruhige Lage in unmittelbarer City-Nähe ist überwiegend durch Wohnnutzung geprägt. Über das „Mörsenbroicher Ei“ ist eine schnelle Anbindung in Richtung Norden und Flughafen gegeben. Dienstleister des täglichen Bedarfs befinden sich in der Nähe.
- Hauptbahnhof, Düsseldorf, Fahrzeit: 9 min
- S-Bahn, Wehrhahn S S1, S6, S11, Gehzeit: 4 min
- U-Bahn, Wehrhahn S U71, U72, U73, U83, Gehzeit: 4 min
- Bus, Wehrhahn S 737, 812, Gehzeit: 4 min
- Bundesautobahn, A 52, Fahrzeit: 11 min
- Bundesautobahn, A 44, Fahrzeit: 12 min
- Flughafen, Düsseldorf, Fahrzeit: 15 min
Ihr Kontakt

Anna-Louisa Kratochvil
Ihr Kontakt












