Büros
ID D2799Premium JLL
Provisionsfrei
Büroimmobilie - Düsseldorf, Heerdt - D2799
Heerdt, 40549, Düsseldorf, Nordrhein-Westfalen
Kontaktieren Sie uns für den Preis
- Fläche1.007 - 6.852 m²
- VerfügbarkeitSofort
- Objekt
- Ausstattung
- Lage und Verkehrsanbindung
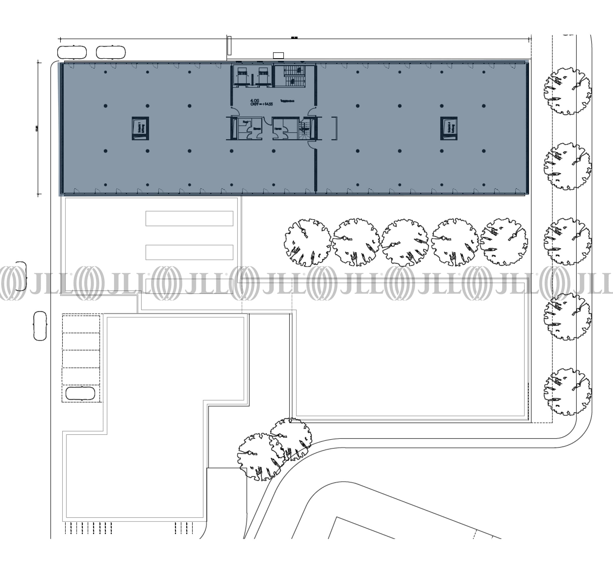
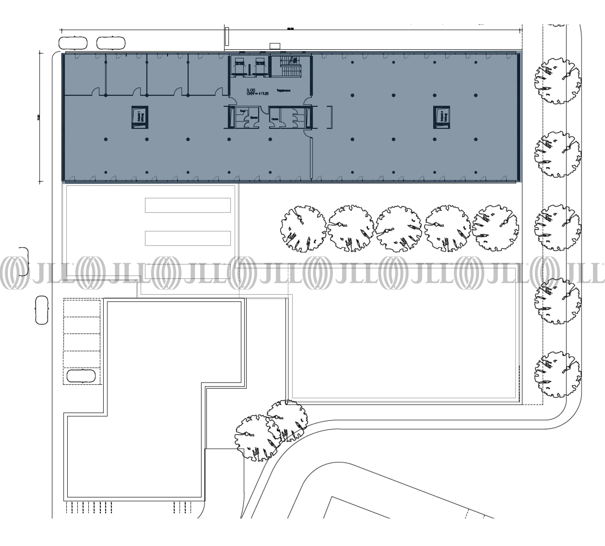
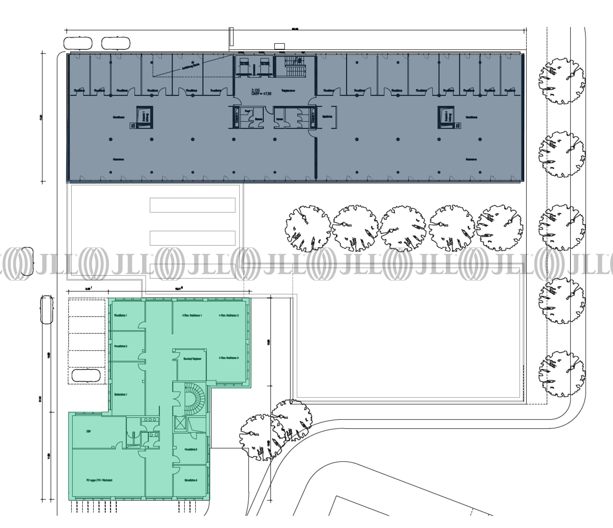
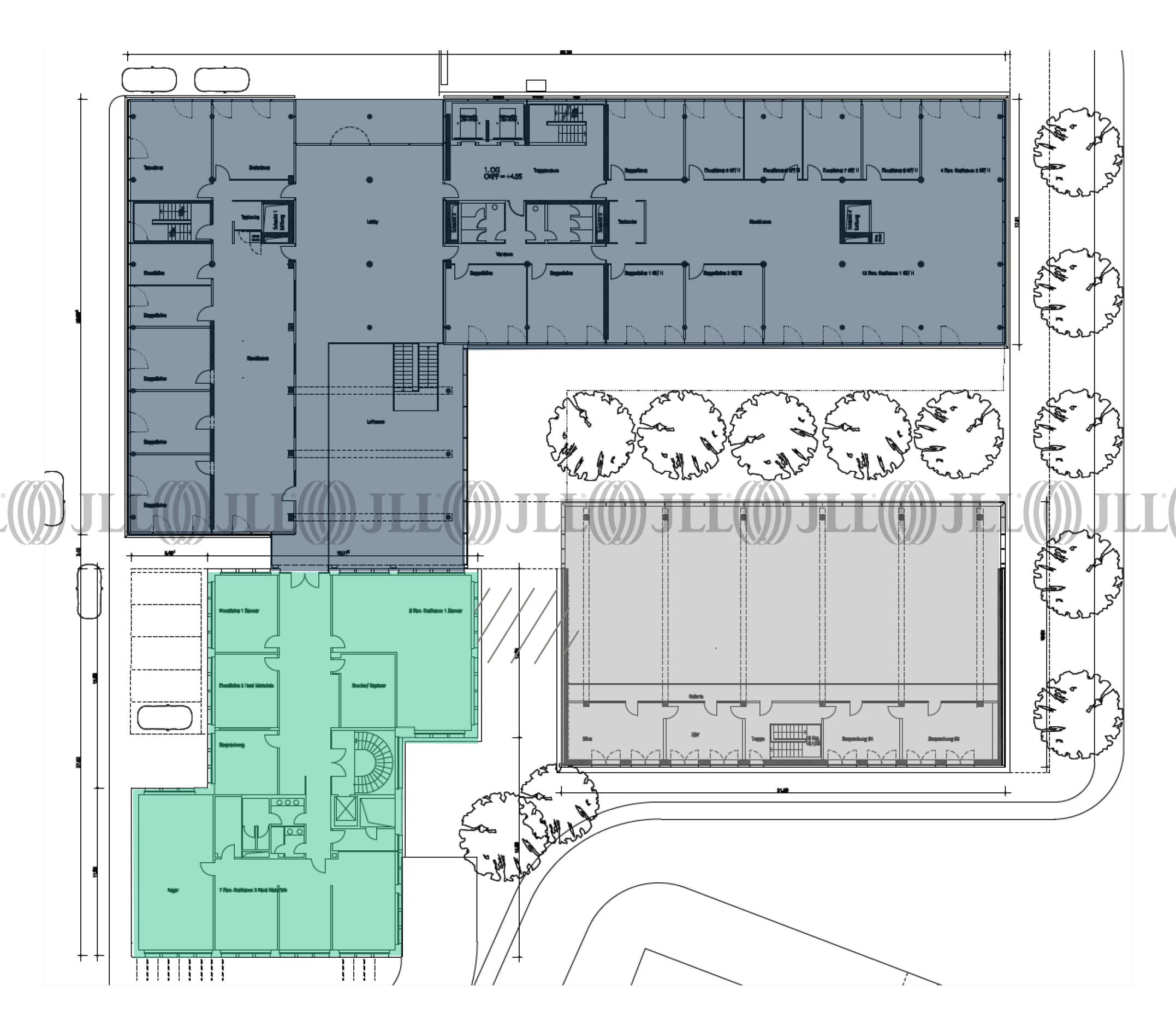
- Grundrisse
- Exposé herunterladen
- Ihr Kontakt
- Anfrage senden
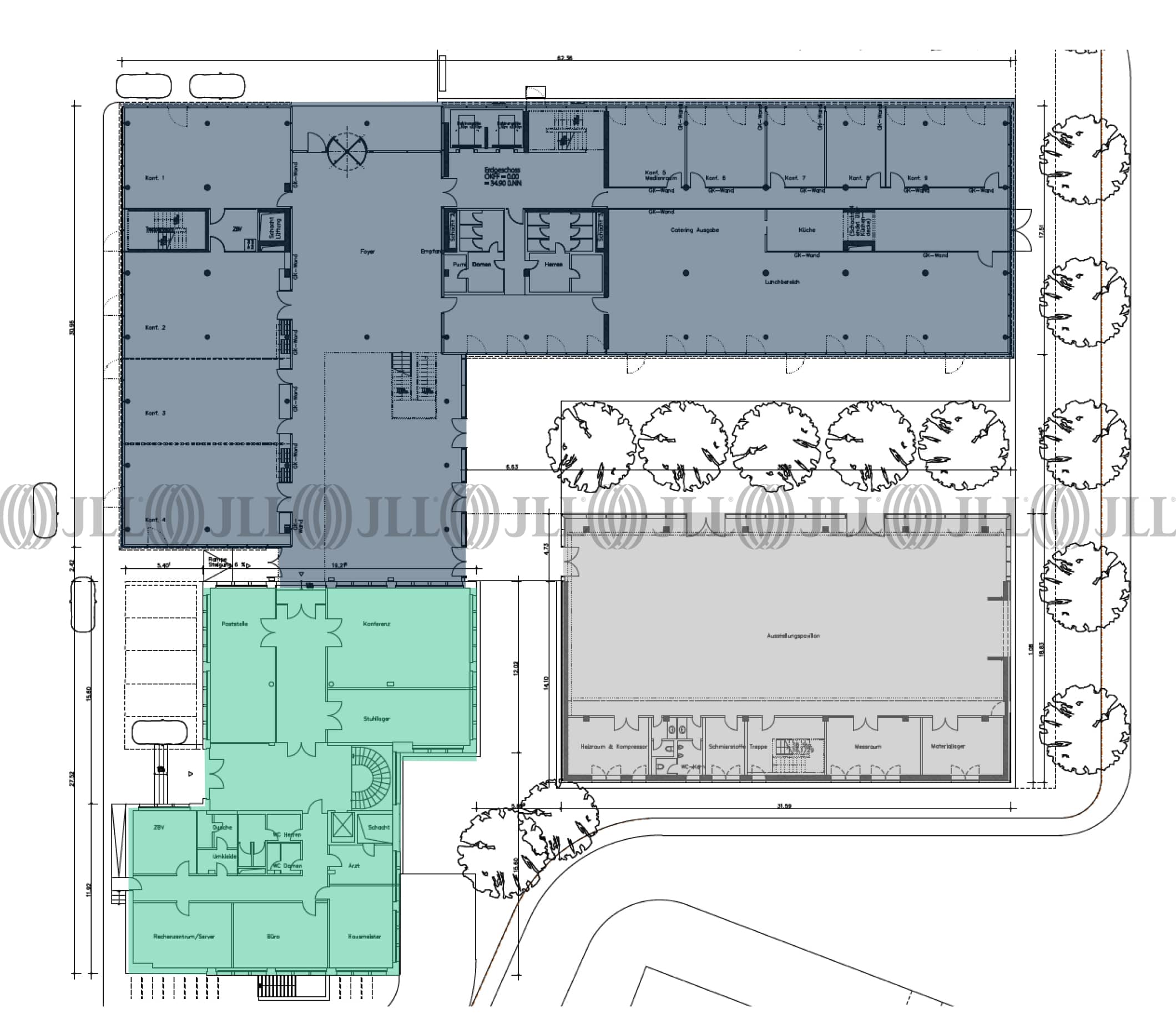
Objekt
Die Optionen aus Altbau, Neubau und Halle bietet in Heerdt eine flexible Nutzung von modernen und lichtdurchfluteten Büroflächen. Hochwertige Ausstattung, sowie individuelle Gestaltung des Raumlayouts zeichnen das Ensemble auf der Heerdter Landstraße 243 aus. Das Foyer verbindet alle Gebäudeteile miteinander und kann als zentraler Treffpunkt des Ensembles eingesetzt werden. Eine ebenerdige Anlieferung incl. eigener Zufahrt sind vorhanden.
Zertifizierungen
Energieausweis
DGNB: BronzeFür diese Liegenschaft liegt ein Verbrauchsausweis vom 19.01.2022 vom Eigentümer/Vermieter vor. Die wesentlichen Energieträger der Liegenschaft sind Erdgas leicht, Strom. Der Endenergieverbrauch Strom beträgt 84.80 kWh/(m²*a). Der Endenergieverbrauch Wärme beträgt 39.70 kWh/(m²*a).
Verfügbare Fläche
Lage und Verkehrsanbindung
Das Objekt ist im linksrheinischen Düsseldorf-Heerdt gelegen und verfügt über eine sehr gute Verkehrsanbindung in Richtung City sowie stadtauswärts. Die ehemals dort herrschende Industriebranche ist einem bunten Mix aus Bürogebäuden, Großhandel und Wohnnutzung gewichen.
- Hauptbahnhof, Düsseldorf, Fahrzeit: 14 min
- U-Bahn, Handweiser U75, Gehzeit: 1 min
- Bus, Handweiser 862, 863, Gehzeit: 3 min
- Bundesautobahn, A 52, Fahrzeit: 3 min
- Bundesautobahn, A 44, Fahrzeit: 13 min
- Flughafen, Düsseldorf, Fahrzeit: 13 min
Ihr Kontakt

Frederik VonWirth
Ihr Kontakt











