Büros
ID D2756Büroimmobilie - Essen, Stadtkern - D2756
Stadtkern, 45127, Essen, Nordrhein-Westfalen
Provisionspflichtig: bei Anmietung 3 Netto-Monatsmieten zzgl. gesetzlicher Umsatzsteuer.** der Wert kann je nach Vertragslaufzeit variieren.
Kontaktieren Sie uns für den Preis
- Fläche486 - 10.784 m²
- VerfügbarkeitSofort
- Objekt
- Ausstattung
- Lage und Verkehrsanbindung
- Grundrisse
- Exposé herunterladen
- Ihr Kontakt
- Anfrage senden
Objekt
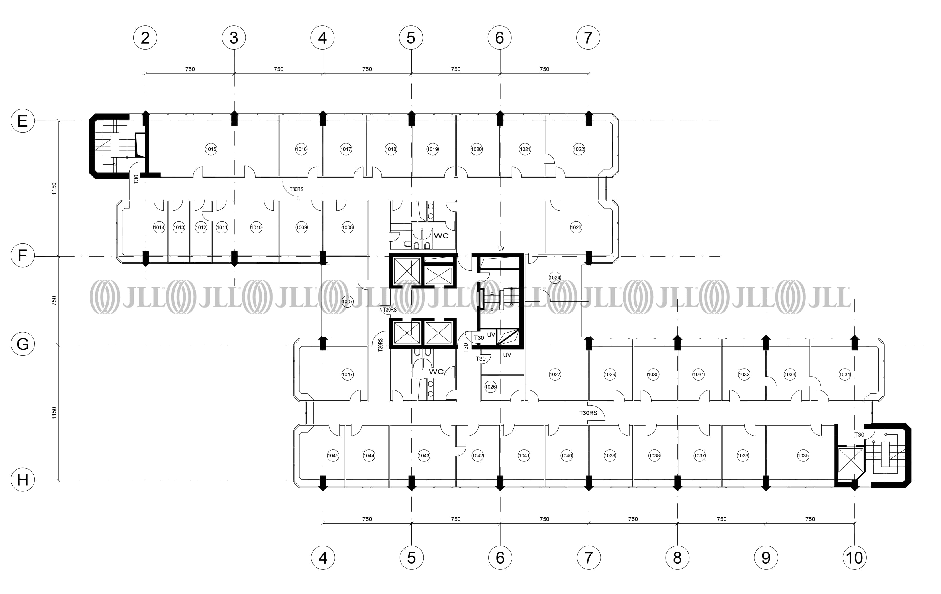
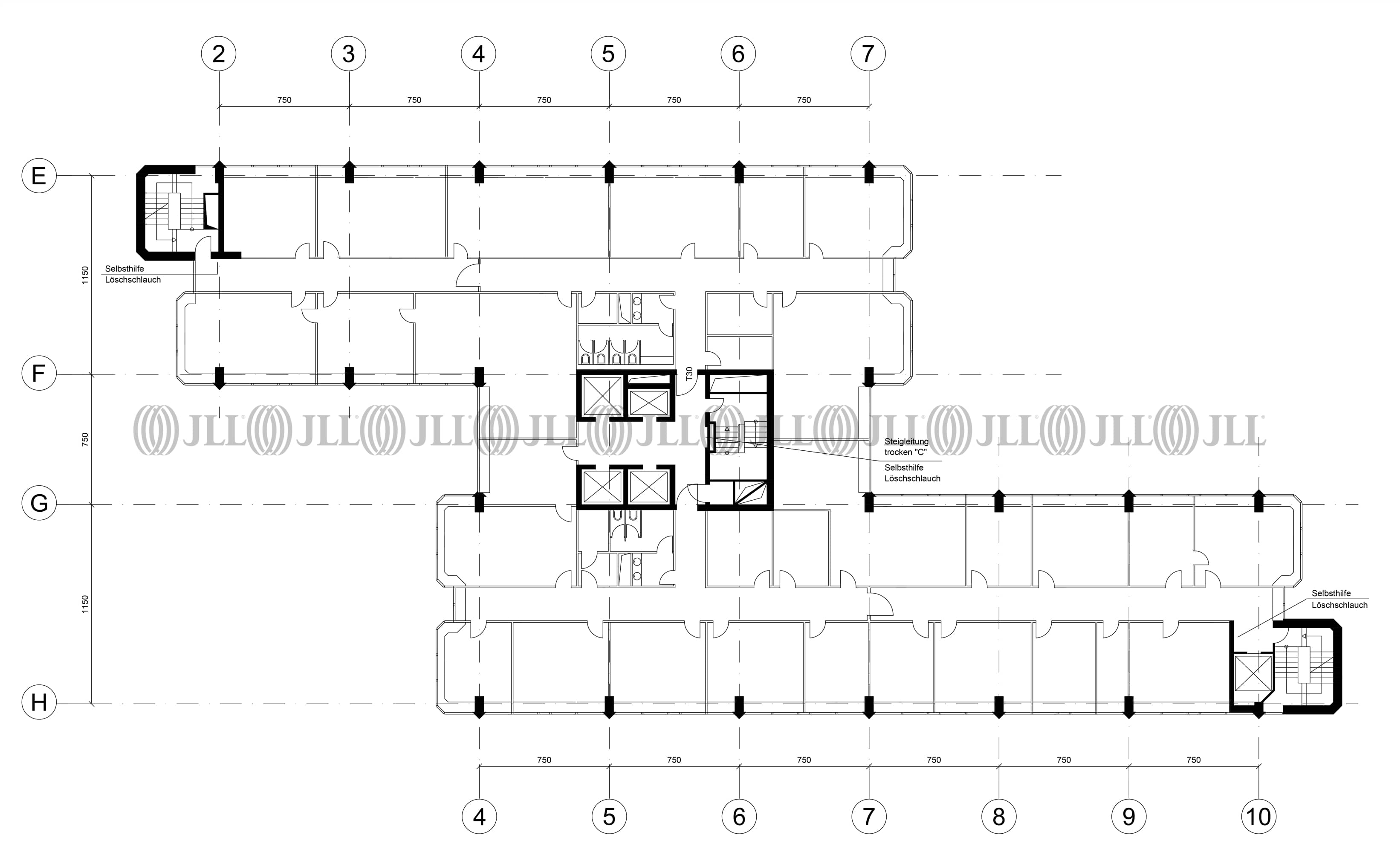
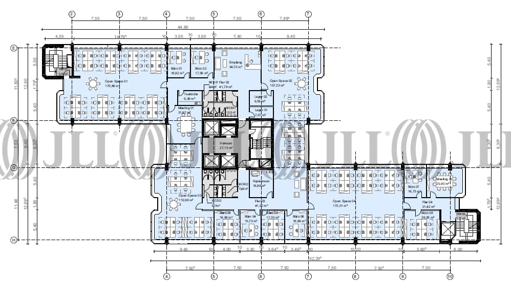
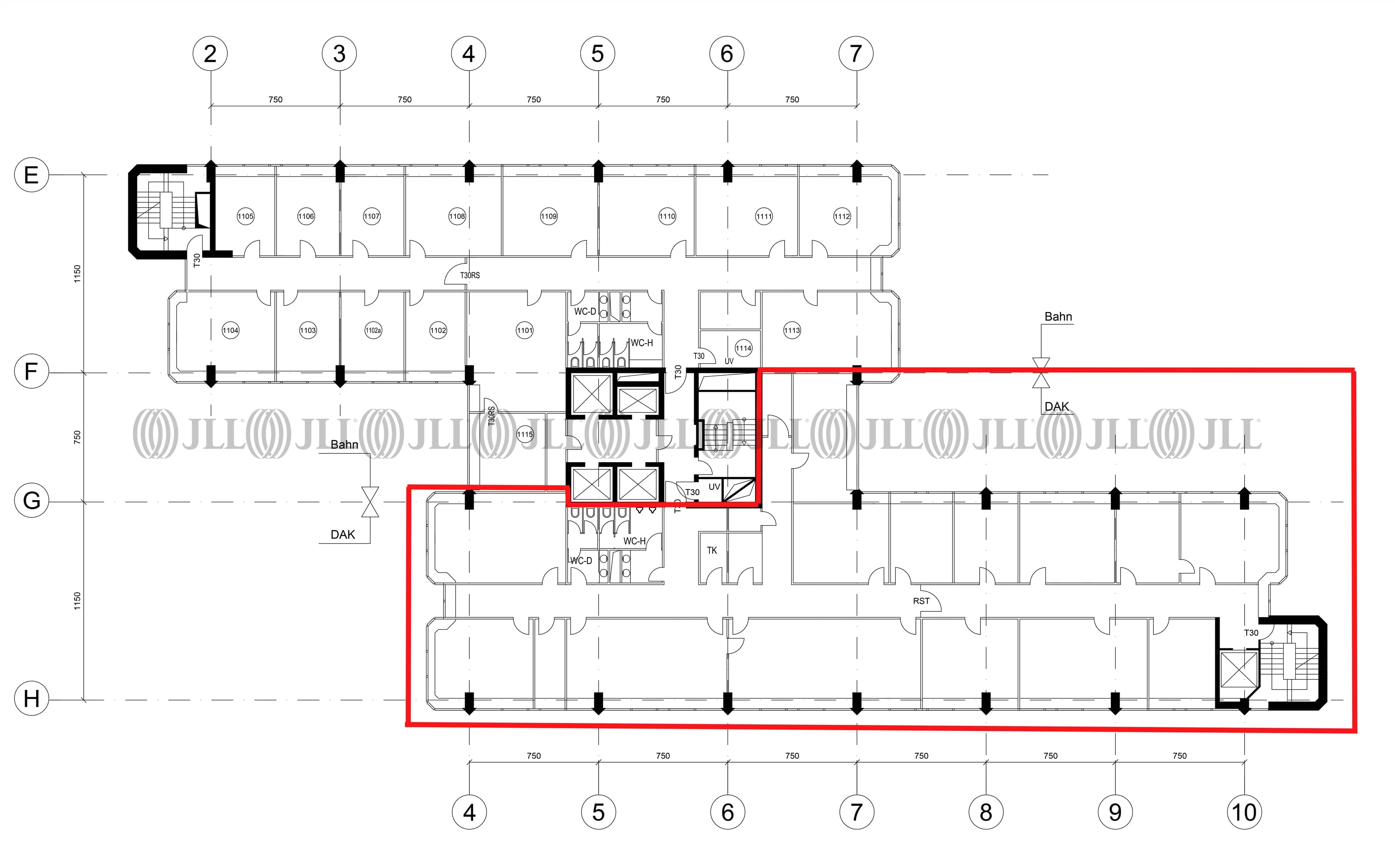
Der 14-geschossige Büroturm bietet mit seiner Regelgeschossgröße von ca. 1.120 m² pro Etage optimale Bedingungen, moderne Bürokonzepte auf einer Etage zu vereinen.
Zertifizierungen
Energieausweis
Für diese Liegenschaft liegt ein Verbrauchsausweis vom 19.03.2020 vom Eigentümer/Vermieter vor. Die wesentlichen Energieträger der Liegenschaft sind Fernwärme, Strom. Der Endenergieverbrauch Strom beträgt 32.00 kWh/(m²*a). Der Endenergieverbrauch Wärme beträgt 130.00 kWh/(m²*a).Verfügbare Fläche
Lage und Verkehrsanbindung
Die Büromarktzone City umfasst die Innenstadt, das Entwicklungsgebiet Grüne Mitte und insbesondere die Fußgängerzone Essens. Sie wird im Norden durch den Viehofer Platz und im Osten durch Bürobebauung entlang der Schützenbahn begrenzt. Die City grenzt direkt an die Büromarktzonen Weststadt und das Südviertel, die Abgrenzung erfolgt durch die Hindenburgstraße bzw. den Limbecker Platz im Westen sowie die Bahnschienen des Essener Hauptbahnhof im Süden. Die zentrale Lage mit ausgezeichneter ÖPNV-Anbindung und Infrastruktur, dazu repräsentative Bestandsbauten haben zahlreiche innovative, kapitalkräftige Firmen aller Branchen hierhergezogen. In der Einkaufsstadt Essen sind viele Banken sowie städtische Einrichtung wie das Rathaus und das zentrale Bürgerbüro angesiedelt. Zu den markantesten Gebäuden zählen die Hochhäuser an der Schützenbahn und Hollestraße sowie die Neubauten in der Grünen Mitte, auf dem Gelände des ehemaligen Güterbahnhofs.
- Flughafen, Düsseldorf, Fahrzeit: 22 min
- Bundesautobahn, A 40, Fahrzeit: 2 min
- Bundesautobahn, A 52, Fahrzeit: 7 min
- Hauptbahnhof, Essen, Gehzeit: 5 min
- Straßenbahn/Tram, Hollestraße 103, 109, Gehzeit: 5 min
- Bus, Hollestraße 145, 146, 154, 155, 166, 196, Gehzeit: 5 min
Ihr Kontakt

Martin Jahnke
Ihr Kontakt















