Büros
ID D2669Aktualisiert
Büroimmobilie - Wuppertal, Friedrich-Engels-Allee - D2669
Friedrich-Engels-Allee, 42283, Wuppertal, Nordrhein-Westfalen
Provisionspflichtig: bei Anmietung 3 Netto-Monatsmieten zzgl. gesetzlicher Umsatzsteuer.** der Wert kann je nach Vertragslaufzeit variieren.
11 € / m²
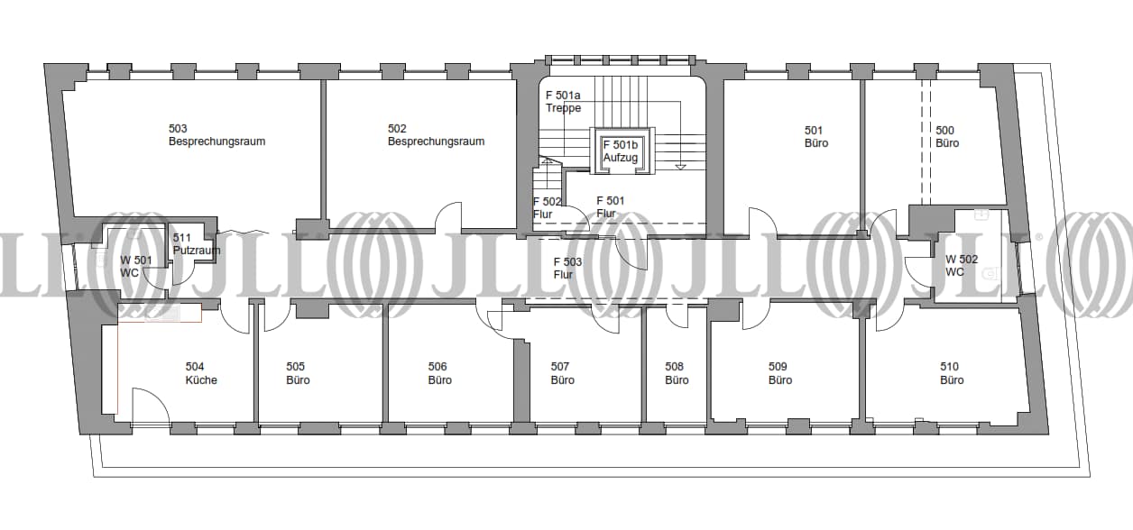
- Fläche260 - 520 m²
- VerfügbarkeitSofort
- Objekt
- Ausstattung
- Lage und Verkehrsanbindung
- Grundrisse
- Exposé herunterladen
- Ihr Kontakt
- Anfrage senden
Objekt
Das repräsentative Objekt wurde zuletzt im Jahr 2017 saniert und überzeugt unter anderem durch seine hervorragende Anbindung an den ÖPNV sowie das regionale wie überregionale Straßennetz. Die Renovierung sowie der Um-/Ausbau erfolgt nach Mieterwunsch. Somit sind die Flächen flexibel gestaltbar. Stellplätze und Lager-/Archivflächen im Keller können bei Bedarf zusätzlich angemietet werden.
Zertifizierungen
Energieausweis
Für diese Liegenschaft liegt ein Verbrauchsausweis vom 2018-08-20 vom Eigentümer/Vermieter vor. Der wesentliche Energieträger der Liegenschaft ist KWK. Der Endenergieverbrauch Strom beträgt 26.00 kWh/(m²*a). Der Endenergieverbrauch Wärme beträgt 78.00 kWh/(m²*a).Verfügbare Fläche
Lage und Verkehrsanbindung
Die Fußgängerzone befindet sich in unmittelbarer Nähe zum Gebäude. Dort befinden sich auch zahlreiche Einkaufsmöglichkeiten sowie ein breites Gastronomieangebot. Besonders attraktiv ist die Nähe zu dem gut ausgebauten Schienen-und Straßenbahnnetz. Die Wuppertaler Schwebebahn ist fußläufig in 3 min erreichbar. Auch die Nähe zur Autobahn ist sehr attraktiv. Dies macht das hochwertige Gebäude zu einem sehr attraktiven Standort. Eine Tankstelle befindet sich in der Nähe. Dienstleister des täglichen Bedarfs befinden sich in der Nähe.
- Flughafen, Düsseldorf, Fahrzeit: 34 min
- Bundesautobahn, A 46, Fahrzeit: 5 min
- Bundesautobahn, A 1, Fahrzeit: 11 min
- Bus, Loher Straße 611, 640, Gehzeit: 2 min
- Hauptbahnhof, Wuppertal, Fahrzeit: 9 min
- S-Bahn, Wuppertal Barmen Bf S7, S8, S9, Gehzeit: 8 min
Ihr Kontakt

Martin Jahnke
Ihr Kontakt




