
Büros
ID D2636Büroimmobilie - Essen, Westviertel - D2636
Westviertel, 45127, Essen, Nordrhein-Westfalen
Provisionspflichtig: bei Anmietung 3 Netto-Monatsmieten zzgl. gesetzlicher Umsatzsteuer.** der Wert kann je nach Vertragslaufzeit variieren.
11,94 € / m²
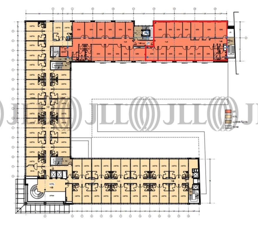
- Fläche291 m²
- VerfügbarkeitSofort
- Objekt
- Ausstattung
- Lage und Verkehrsanbindung
- Grundriss
- Exposé herunterladen
- Ihr Kontakt
- Anfrage senden
Objekt
Das repräsentative und äußerst vorteilhaft gelegene Objekt besticht mit seinen hellen und flexiblen Büroflächen. Die „U“-förmig angelegten Räumlichkeiten entsprechen modernen Anforderungen und versprechen dem Nutzer ein angenehmes Arbeitsumfeld.
Zertifizierungen
Energieausweis
Für diese Liegenschaft liegt ein Verbrauchsausweis vom 29.09.2021 vom Eigentümer/Vermieter vor. Die wesentlichen Energieträger der Liegenschaft sind Fernwärme, Strom. Der Endenergieverbrauch Strom beträgt 52,8 kWh/(m²*a). Der Endenergieverbrauch Wärme beträgt 44,8 kWh/(m²*a).Verfügbare Fläche
Lage und Verkehrsanbindung
Die Büromarktzone Weststadt erstreckt sich vom Limbecker Platz im Osten bis hin zum Berthold-Beitz-Boulevard im Westen. Nördlich wird die Weststadt durch das neue Thyssen-Krupp-Areal mit seinen Verwaltungsgebäuden begrenzt und geprägt, südlich durch die Trasse der Deutschen Bahn Richtung Hauptbahnhof. Über das Einkaufszentrum Limbecker Platz ist die Innenstadt innerhalb weniger Gehminuten erreichbar. Die Weststadt zeichnet sich durch überwiegend hochwertige Flächen in Objekten neuerer Baujahre aus. Zudem verfügt die Weststadt über Grundstücke, die für weitere Projektentwicklung zur Verfügung stehen. Markante Gebäude sind die Weststadttürme, das Iduna-/GFKL-Hochhaus, das Weststadtkarree, sowie der GNS-Neubau.
- Hauptbahnhof, Essen Hbf, Fahrzeit: 5 min
- U-Bahn, Berliner Platz U11, U17, U18, Gehzeit: 4 min
- Straßenbahn/Tram, Berliner Platz 101, 103, 105, 106, 109, Gehzeit: 4 min
- Bus, Thea-Leymann-Straße 145, Gehzeit: 2 min
- Bundesautobahn, A 40, Fahrzeit: 4 min
- Bundesautobahn, A 52, Fahrzeit: 9 min
- Flughafen, Düsseldorf, Fahrzeit: 24 min
Ihr Kontakt

Martin Jahnke
Ihr Kontakt