Büros
ID D2608Büroimmobilie - Düsseldorf, Hassels - D2608
Hassels, 40599, Düsseldorf, Nordrhein-Westfalen
Provisionspflichtig: bei Anmietung 3 Netto-Monatsmieten zzgl. gesetzlicher Umsatzsteuer.** der Wert kann je nach Vertragslaufzeit variieren.
6,50 € / m²
- Fläche351 - 714 m²
- VerfügbarkeitSofort
- Objekt
- Ausstattung
- Lage und Verkehrsanbindung
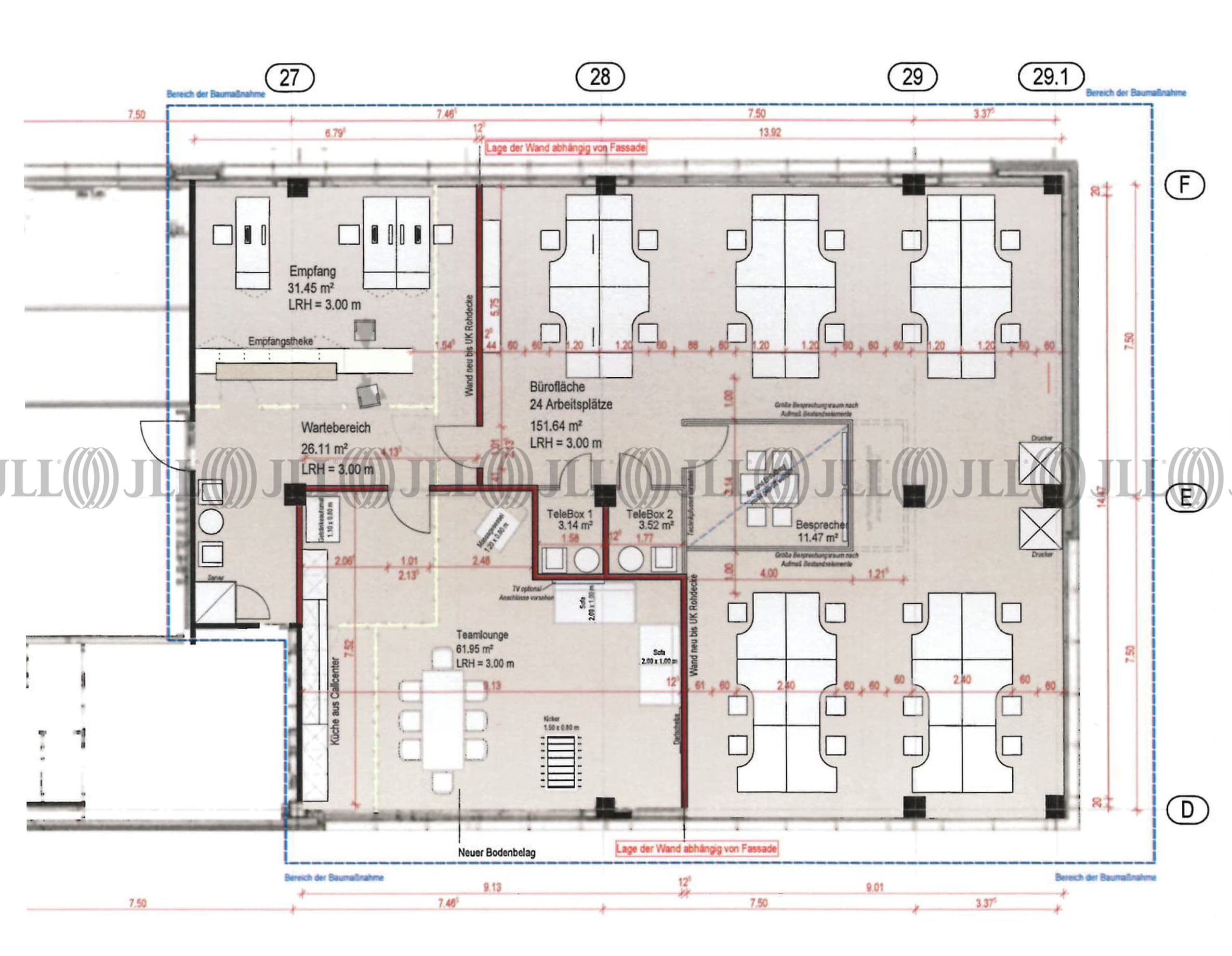
- Grundrisse
- Exposé herunterladen
- Ihr Kontakt
- Anfrage senden
Objekt
Das Objekt wird zu großen Teilen als Rechenzentrum genutzt. In Teilbereichen werden die Flächen als Hallen- / Büroflächen von namhaften Unternehmen genutzt.
Zertifizierungen
Energieausweis
Für diese Liegenschaft liegt ein Bedarfsausweis vom 2009-07-30 vom Eigentümer/Vermieter vor. Die wesentlichen Energieträger der Liegenschaft sind Strom,Erdgas schwer. Endenergiebedarf: 333.70000 kWh/(m²*a).Verfügbare Fläche
Lage und Verkehrsanbindung
Die Liegenschaft befindet sich im südlichen Teil der Landeshauptstadt. Geprägt durch Firmen wie die Henkel AG und Provinzial Versicherung verfügt das Gewerbegebiet über einen guten Autobahnanschluss. Die Nähe zur Heinrich-Heine-Universität sowie zahlreiche Parkanlagen verleihen dem Standort einen besonderen Charme.
- Flughafen, Düsseldorf, Fahrzeit: 15 min
- Bundesautobahn, A 59, Fahrzeit: 5 min
- Bundesautobahn, A 46, Fahrzeit: 5 min
- Bus, In der Steele 835, Gehzeit: 4 min
- Hauptbahnhof, Düsseldorf, Fahrzeit: 12 min
Ihr Kontakt

Katharina Ufelmann
Ihr Kontakt










