Büros
ID D2492Büroimmobilie - Düsseldorf, Lichtenbroich - D2492
Lichtenbroich, 40472, Düsseldorf, Nordrhein-Westfalen
Provisionspflichtig: bei Anmietung 3 Netto-Monatsmieten zzgl. gesetzlicher Umsatzsteuer.** der Wert kann je nach Vertragslaufzeit variieren.
6,50 € / m²
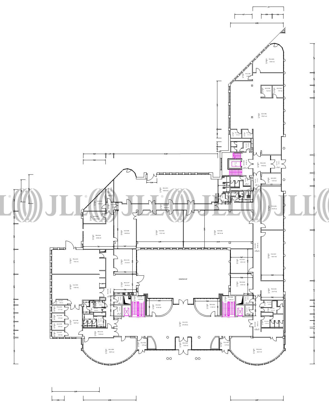
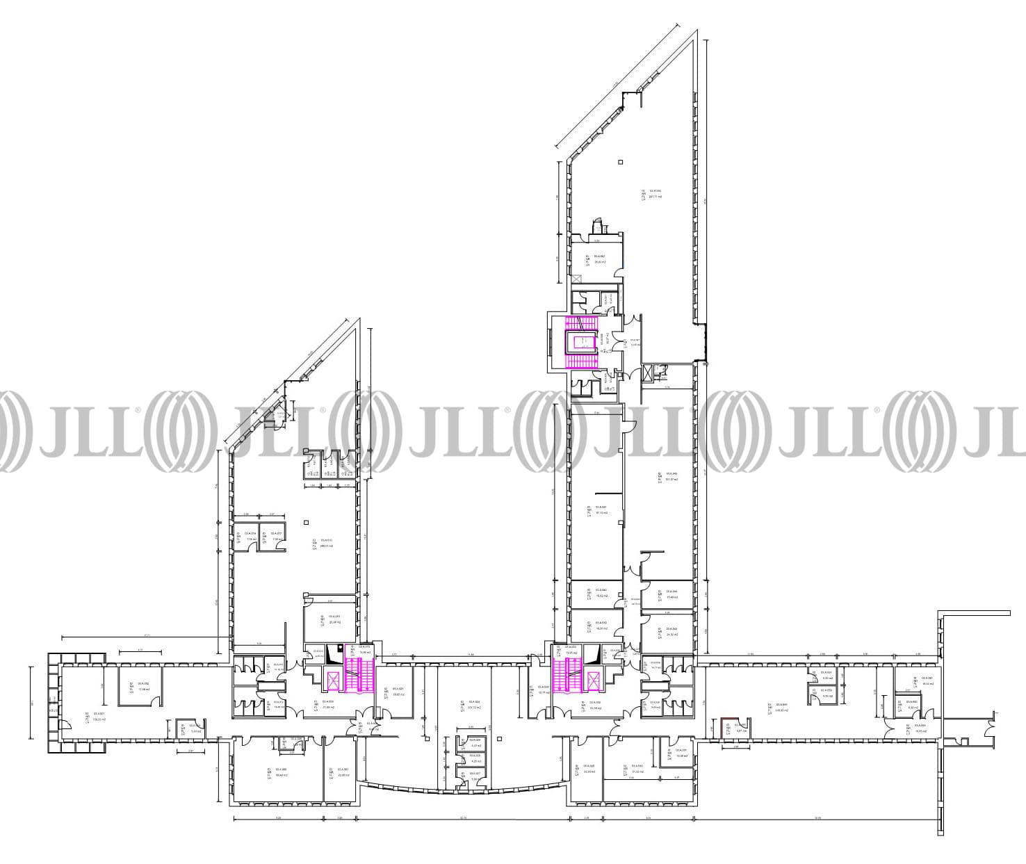
- Fläche176 - 5.965 m²
- VerfügbarkeitSofort
- Objekt
- Ausstattung
- Lage und Verkehrsanbindung
- Grundrisse
- Exposé herunterladen
- Ihr Kontakt
- Anfrage senden
Objekt
Das repräsentative 5-geschossige Bürohaus verfügt über ein zentrales Foyer. Die effizienten Büroetagen erreicht man barrierefrei über die drei Aufzüge. Durch die moderne Ausstattung und die flexiblen Achsraster können viele Mieterwünsche berücksichtigt werden.
Zertifizierungen
Energieausweis
Für diese Liegenschaft liegt ein Bedarfsausweis vom 2013-07-06 vom Eigentümer/Vermieter vor. Die wesentlichen Energieträger der Liegenschaft sind Erdgas schwer,Strom. Endenergiebedarf: 141.40000 kWh/(m²*a).Verfügbare Fläche
Lage und Verkehrsanbindung
Die Liegenschaft befindet sich in direkter Nähe des Düsseldorfer Flughafens und bietet damit, besonders international tätigen Unternehmen, beste Voraussetzungen. Auch das Umland ist durch die gute Anbindung an das Autobahnnetz schnell erreichbar. Der Airport Düsseldorf-International bietet zudem zahlreiche Einkaufsmöglichkeiten und ein breites Angebot an Gastronomie.
- Hauptbahnhof, Düsseldorf, Fahrzeit: 25 min
- Bus, Wanheimer Straße 729, 759, 766, Gehzeit: 4 min
- Bundesautobahn, A 44, Fahrzeit: 6 min
- Bundesautobahn, A 52, Fahrzeit: 6 min
- Bundesautobahn, A 3, Fahrzeit: 10 min
- Flughafen, Düsseldorf, Fahrzeit: 9 min
Ihr Kontakt

Richard Steimel
Ihr Kontakt








