Büros
ID D2457Aktualisiert
Büroimmobilie - Wuppertal, Barmen-Mitte - D2457
Barmen-Mitte, 42275, Wuppertal, Nordrhein-Westfalen
Provisionspflichtig: bei Anmietung 3 Netto-Monatsmieten zzgl. gesetzlicher Umsatzsteuer.** der Wert kann je nach Vertragslaufzeit variieren.
10 € / m²
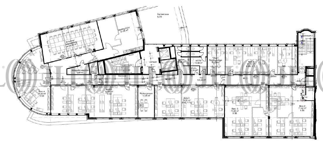
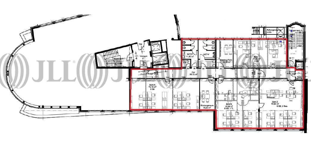
- Fläche416 - 3.114 m²
- VerfügbarkeitSofort
- Objekt
- Ausstattung
- Lage und Verkehrsanbindung
- Grundrisse
- Exposé herunterladen
- Ihr Kontakt
- Anfrage senden
Objekt
Die Flächen befinden sich in einem stilvollen Büro-und Geschäftshaus, dass sich in unmittelbarer Nähe zur Fußgängerzone in Wuppertal befindet. Modernste Deckenbeleuchtungen sorgen für eine qualitativ hohe Ausleuchtung.
Zertifizierungen
Energieausweis
Für diese Liegenschaft liegt ein Verbrauchsausweis vom 2019-06-17 vom Eigentümer/Vermieter vor. Die wesentlichen Energieträger der Liegenschaft sind Strom,Fernwärme. Der Endenergieverbrauch Strom beträgt 56.00 kWh/(m²*a). Der Endenergieverbrauch Wärme beträgt 97.20 kWh/(m²*a).Verfügbare Fläche
Lage und Verkehrsanbindung
Die Fußgängerzone befindet sich in unmittelbarer Nähe zum Gebäude. Dort befinden sich auch zahlreiche Einkaufsmöglichkeiten sowie ein breites Gastronomieangebot. Besonders attraktiv ist die Nähe zu dem gut ausgebauten Schienen-und Straßenbahnnetz. Die Wuppertaler Schwebebahn ist fußläufig in 3 min erreichbar. Auch die Nähe zur Autobahn ist sehr attraktiv. Dies macht das hochwertige Gebäude zu einem sehr attraktiven Standort.
- Flughafen, Düsseldorf, Fahrzeit: 36 min
- Bundesautobahn, A 46, Fahrzeit: 7 min
- Bus, Alter Markt 604, 614, 628, 632, 634, 644, Gehzeit: 2 min
- Hauptbahnhof, Wuppertal, Fahrzeit: 9 min
Ihr Kontakt

Martin Jahnke
Ihr Kontakt






