Büros
ID D2448Aktualisiert
Büroimmobilie - Herne - D2448
44623, Herne, Nordrhein-Westfalen
Provisionspflichtig: bei Anmietung 3 Netto-Monatsmieten zzgl. gesetzlicher Umsatzsteuer.** der Wert kann je nach Vertragslaufzeit variieren.
8 € / m²
- Fläche186 - 20.724 m²
- VerfügbarkeitSofort
- Objekt
- Ausstattung
- Lage und Verkehrsanbindung
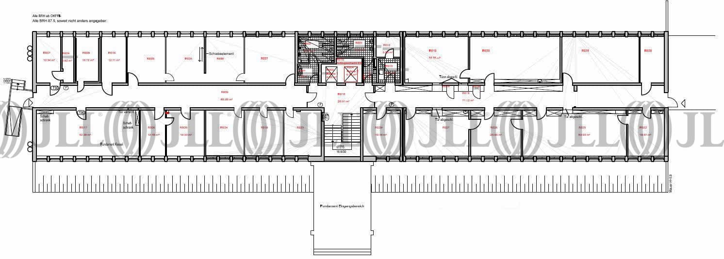
- Grundrisse
- Exposé herunterladen
- Ihr Kontakt
- Anfrage senden
Objekt
Das repräsentative Bürogebäude mit einer Gesamtmietfläche von ca. 32.600 m² bietet hochwertig ausgestattete Büroflächen in zentraler Lage in Herne. Die großzügigen und hellen Büroflächen sind individuell gestaltbar, befinden sich in einem guten Zustand, können kurzfristig bezogen werden und bieten dem zukünftigen Mieter somit ein hohes Maß an Effizienz und Flexibilität. Dank des flexiblen Grundrisses sind individuelle Arbeitsplatzkonzepte darstellbar.
Verfügbare Fläche
Lage und Verkehrsanbindung
Herne liegt mitten in der Metropole Ruhr. Das Objekt liegt zentrumsnah im Stadtteil Herne-Mitte. Dieser Teilmarkt zeichnet sich durch eine sehr gute Nahversorgung, Einkaufsmöglichkeiten und Anbindung an das ÖPNV-Netz aus. Durch die unmittelbare Nähe zur Autobahn A 42 sind die Autobahnen A 2, A 40, A 43 und A 45 innerhalb kürzester Zeit erreichbar, wodurch eine sehr gute nationale Anbindung gewährleistet ist.
- Flughafen, Düsseldorf, Fahrzeit: 43 min
- Bundesautobahn, A 43, Fahrzeit: 4 min
- Bundesautobahn, A 42, Fahrzeit: 6 min
- Hauptbahnhof, Herne, Fahrzeit: 4 min
- Bus, Shamrockring 390, 391, Gehzeit: 1 min
Ihr Kontakt

Martin Jahnke
Ihr Kontakt




