Büros
ID D2431Büroimmobilie - Gelsenkirchen, Rotthausen - D2431
Rotthausen, 45884, Gelsenkirchen, Nordrhein-Westfalen
Provisionspflichtig: bei Anmietung 3 Netto-Monatsmieten zzgl. gesetzlicher Umsatzsteuer.** der Wert kann je nach Vertragslaufzeit variieren.
Kontaktieren Sie uns für den Preis
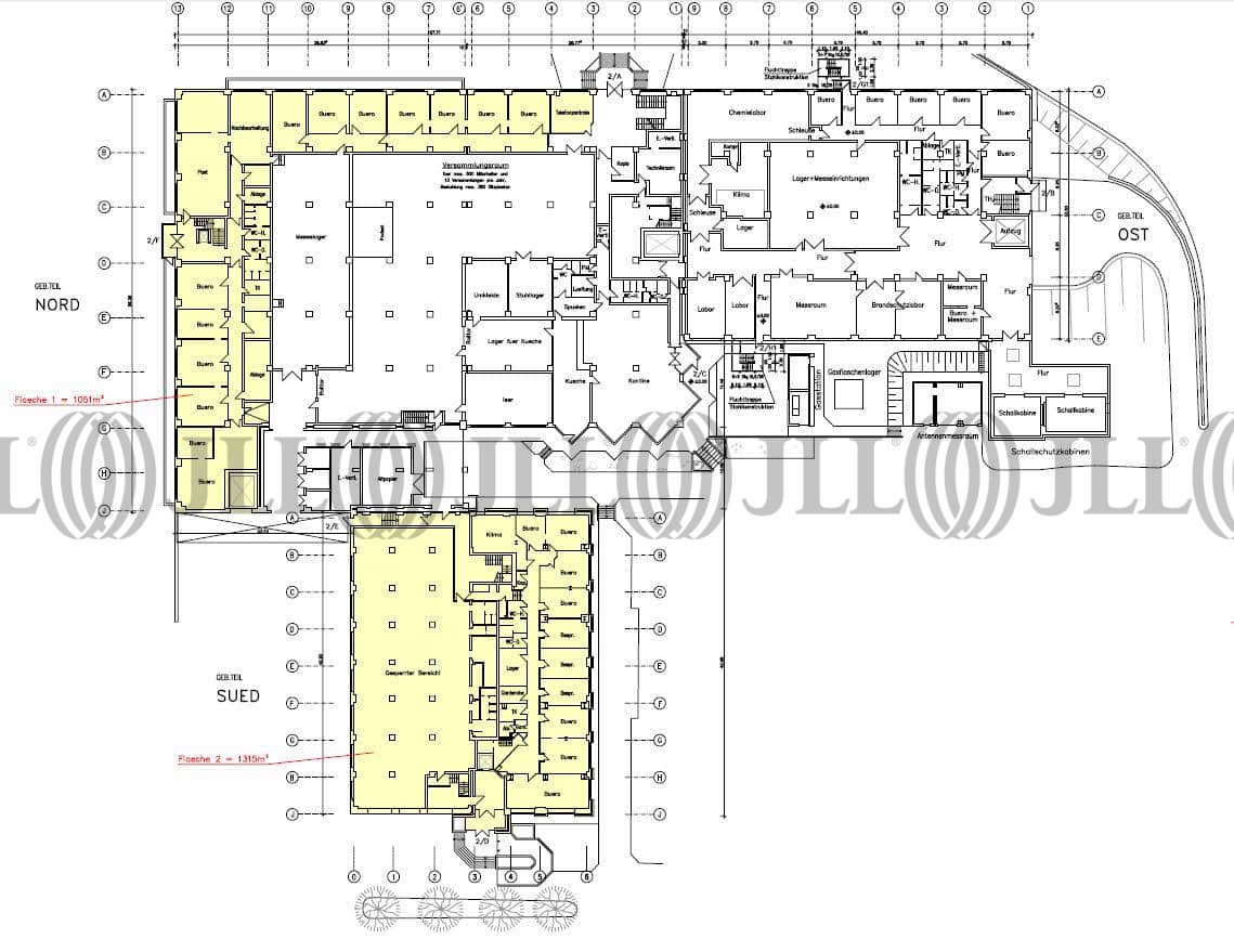
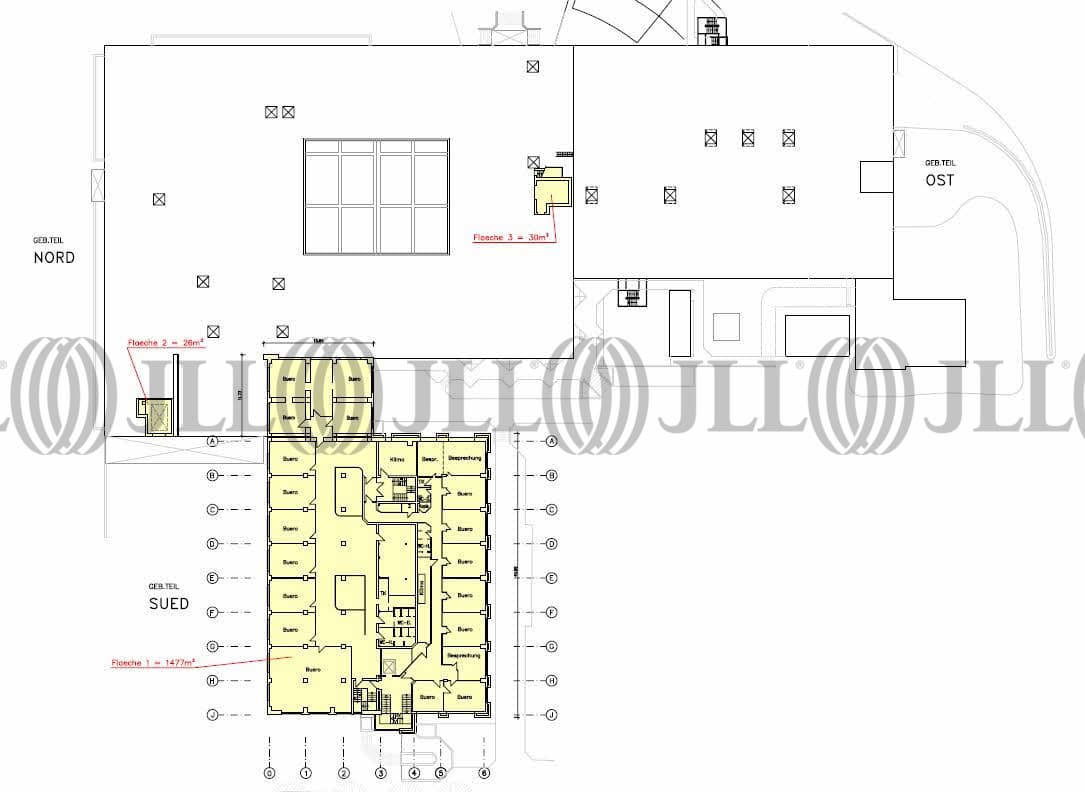
- Fläche688 - 14.182 m²
- VerfügbarkeitAuf Anfrage
- Objekt
- Ausstattung
- Lage und Verkehrsanbindung
- Grundrisse
- Exposé herunterladen
- Ihr Kontakt
- Anfrage senden
Objekt
Die Mietflächen befinden sich in einem sanierungsbedürftigen Zustand und können individuell durch den zukünftigen Nutzer gestaltet werden. Die großzügigen Flächen sind ideal für eine Openspace-Nutzung geeignet.
Verfügbare Fläche
Lage und Verkehrsanbindung
Das Objekt liegt zentral in einem gemischt genutzten Gebiet in unmittelbarer Nähe des S-Bahnhofs Gelsenkirchen Rotthausen. Die Entfernung zur Altstadt beträgt ca. 2 km, dort ist ein vielfältiges Angebot an Cafés, Restaurants und Einkaufsmöglichkeiten verfügbar. Eine Tankstelle befindet sich in der Nähe. Dienstleister des täglichen Bedarfs befinden sich in der Nähe.
- Hauptbahnhof, Gelsenkirchen, Fahrzeit: 8 min
- S-Bahn, Rotthausen Bf S2, Gehzeit: 7 min
- Bus, Auf der Reihe 38, 340, 348, Gehzeit: 6 min
- Bundesautobahn, A 40, Fahrzeit: 7 min
- Bundesautobahn, A 42, Fahrzeit: 11 min
- Flughafen, Düsseldorf, Fahrzeit: 34 min
Ihr Kontakt

Martin Jahnke
Ihr Kontakt

