Büros
ID D2393Büroimmobilie - Hilden - D2393
40724, Hilden, Nordrhein-Westfalen
Provisionspflichtig: bei Anmietung 3 Netto-Monatsmieten zzgl. gesetzlicher Umsatzsteuer.** der Wert kann je nach Vertragslaufzeit variieren.
10,50 € - 13,50 € / m²
- Fläche72 - 3.999 m²
- VerfügbarkeitSofort
- Objekt
- Ausstattung
- Lage und Verkehrsanbindung
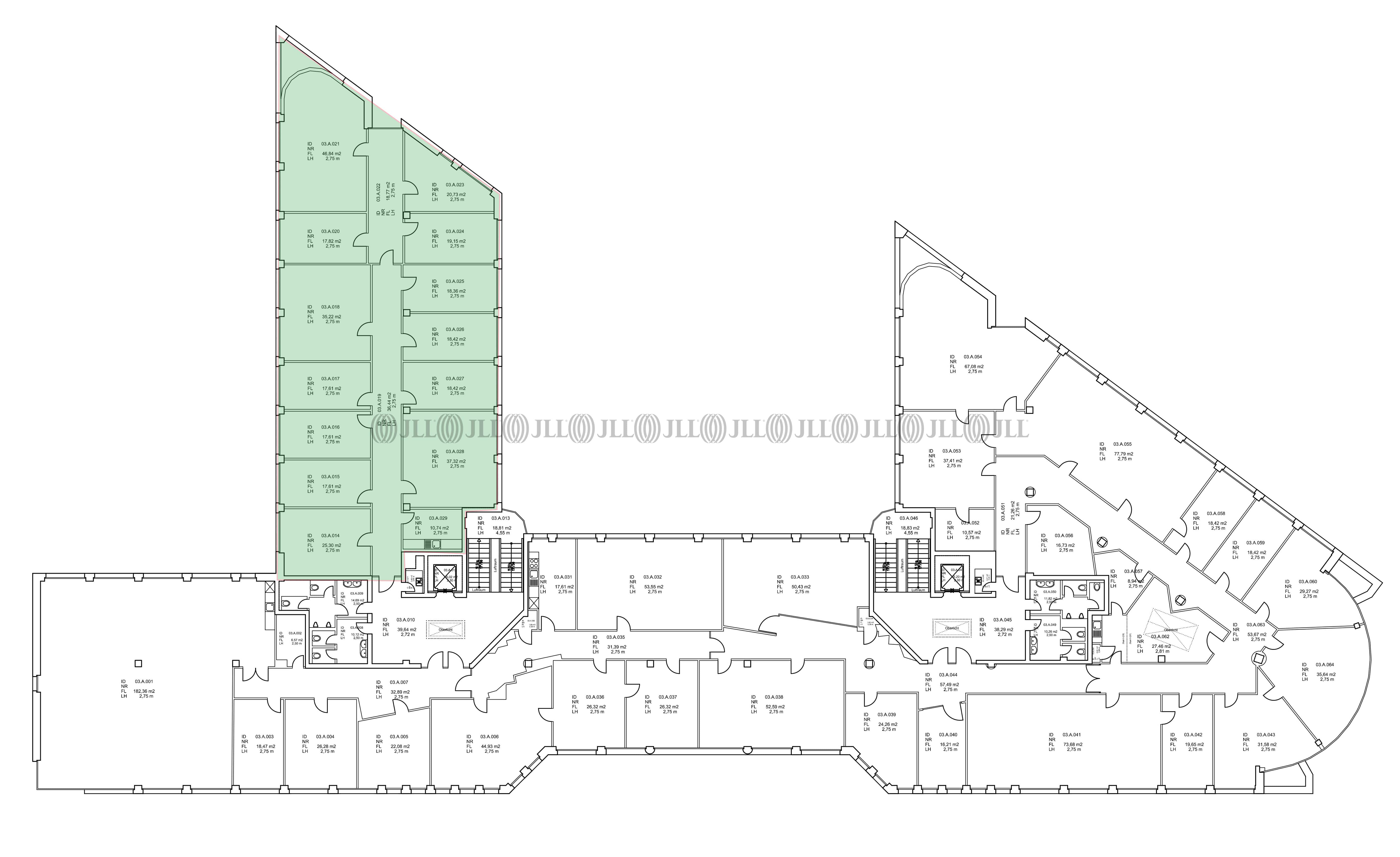
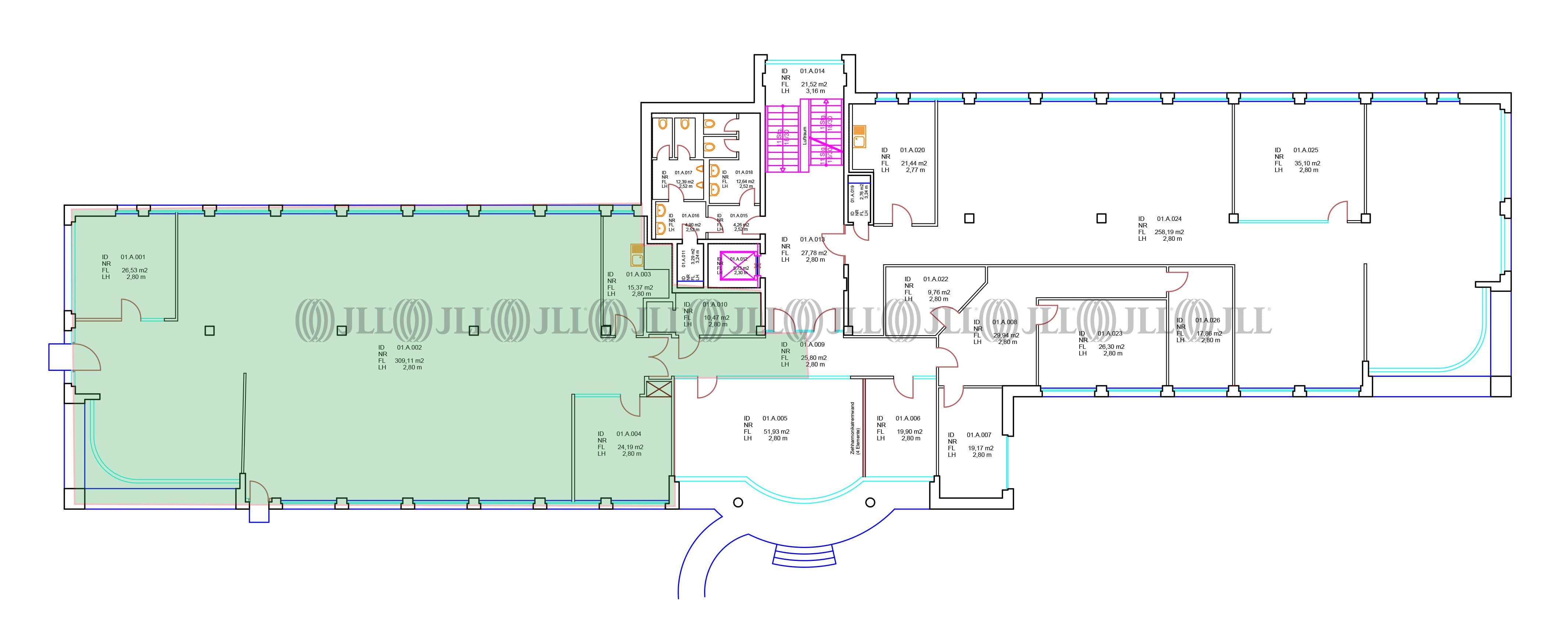
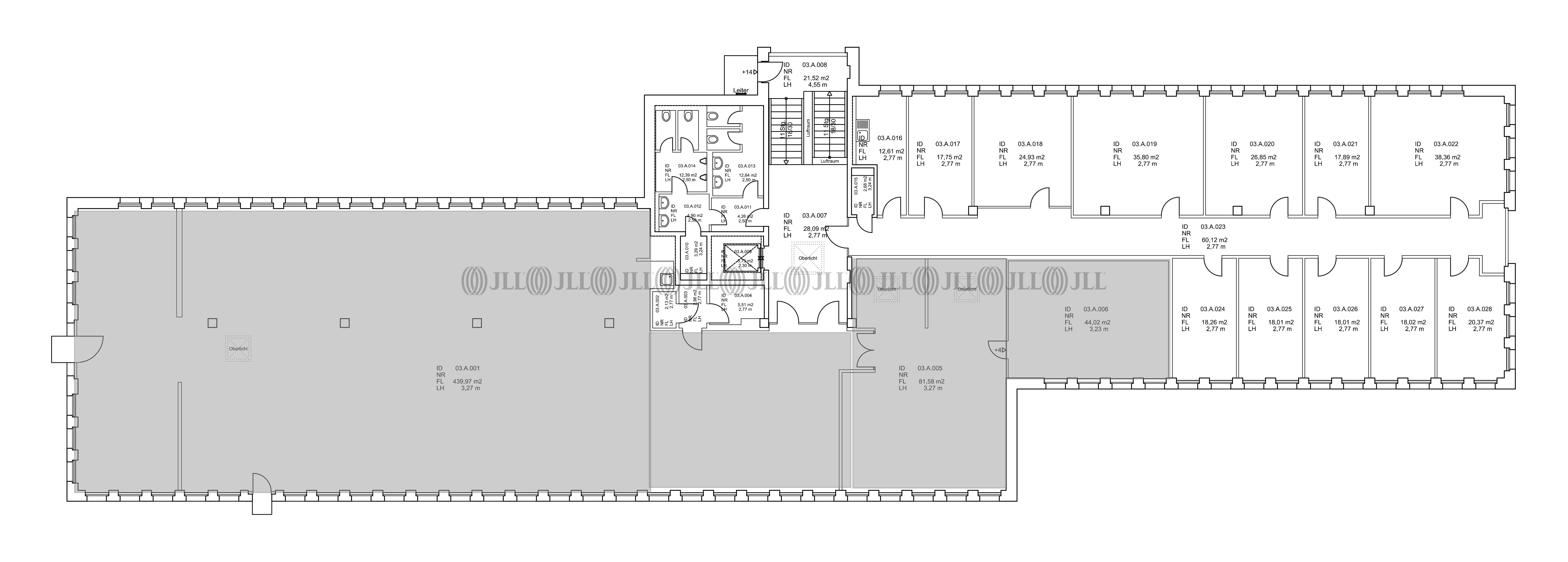
- Grundrisse
- Exposé herunterladen
- Ihr Kontakt
- Anfrage senden
Objekt
Auf dem ca. 45.000 m² umfassenden Grundstücksgelände befindet sich ein Gewerbepark mit ansprechender Architektur und parkähnlicher Umgebungsgestaltung. Zur Vermietung stehen Büro- und Hallenflächen an, die teilweise auch kombiniert anzumieten sind.
Zertifizierungen
Energieausweis
Für diese Liegenschaft liegt ein Verbrauchsausweis vom 2019-12-05 vom Eigentümer/Vermieter vor. Der wesentliche Energieträger der Liegenschaft ist Gas. Der Endenergieverbrauch Strom beträgt 31.20 kWh/(m²*a). Der Endenergieverbrauch Wärme beträgt 55.00 kWh/(m²*a).Verfügbare Fläche
Lage und Verkehrsanbindung
Hilden liegt südlich von Düsseldorf und verfügt mit Anschlüssen an die A 3, A 46 und A 59 über eine hervorragende Anbindung. Schnell ist man auf vorgenannten Autobahnen oder an der S-Bahn. Und mit dem Düsseldorfer Flughafen gibt es einen weiteren wichtigen Verkehrskotenpunkt, der in kurzer Zeit erreicht werden kann.
- Flughafen, Düsseldorf, Fahrzeit: 22 min
- Bundesautobahn, A 46, Fahrzeit: 7 min
- Bundesautobahn, A 59, Fahrzeit: 12 min
- Bus, Krankenhaus 741, 781, 782, 783, 784, Gehzeit: 4 min
- S-Bahn, Hilden-Süd Linie S1, Gehzeit: 15 min
- Hauptbahnhof, Hilden, Fahrzeit: 6 min
Ihr Kontakt

Richard Steimel
Ihr Kontakt

























