Büros
ID D2359Provisionsfrei
Büroimmobilie - Düsseldorf, Golzheim - D2359
Golzheim, 40474, Düsseldorf, Nordrhein-Westfalen
23 € - 24 € / m²
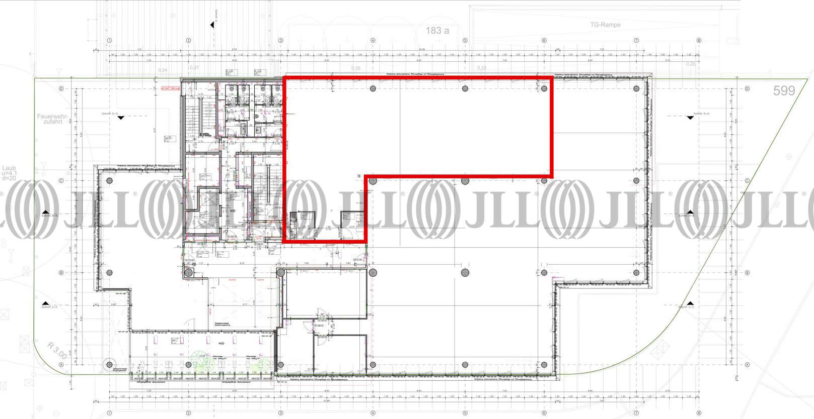
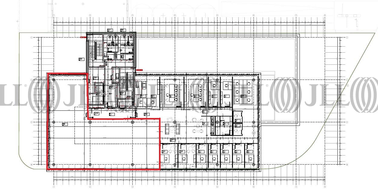
- Fläche296 - 625 m²
- VerfügbarkeitAuf Anfrage
- Objekt
- Ausstattung
- Lage und Verkehrsanbindung
- Grundrisse
- Exposé herunterladen
- Ihr Kontakt
- Anfrage senden
Objekt
Mit gläserner Fassade und auskragenden Terrassen steht das Bürohaus in Düsseldorf-Golzheim für Transparenz, Kommunikation und Dynamik. Eine offene Architektursprache und hohe Ausstattungsqualität fördern das Arbeiten der Zukunft: agil und kollaborativ, in vielseitigen, flexiblen Raumkonzepten. Die begrünten Fassadenelemente im Entree und an Terrassen bilden optische Highlights und unterstreichen den nachhaltigen Anspruch des Hauses – LEED Gold.
Zertifizierungen
Energieausweis
LEED: GoldFür diese Liegenschaft liegt ein Bedarfsausweis vom 27.11.2023 vom Eigentümer/Vermieter vor. Die wesentlichen Energieträger der Liegenschaft sind Fernwärme, KWK. Der Endenergiebedarf Strom beträgt 27 kWh/(m²*a). Der Endenergiebedarf Wärme beträgt 91 kWh/(m²*a).
Verfügbare Fläche
Lage und Verkehrsanbindung
Die Liegenschaft befindet sich nahe der Düsseldorfer City in unmittelbarer Nachbarschaft vieler namhafter Unternehmen. Der Kennedydamm zeichnet sich durch die Nähe zum Rheinufer und der optimalen Verkehrsanbindung in Richtung City und Umland aus. Auch der Flughafen ist in wenigen Minuten erreichbar.
- Flughafen, Düsseldorf, Fahrzeit: 12 min
- Bundesautobahn, A 52, Fahrzeit: 6 min
- Bundesautobahn, A 44, Fahrzeit: 6 min
- Bus, Theodor-Heuss-Brücke SB51, 729, 756, 758, Gehzeit: 6 min
- U-Bahn, Golzheimer Platz U78, U79, Gehzeit: 1 min
- Hauptbahnhof, Düsseldorf, Fahrzeit: 9 min
Ihr Kontakt

Richard Steimel
Ihr Kontakt







