Büros
ID D2233Büroimmobilie - Krefeld, Fischeln - D2233
Fischeln, 47805, Krefeld, Nordrhein-Westfalen
Provisionspflichtig: bei Anmietung 3 Netto-Monatsmieten zzgl. gesetzlicher Umsatzsteuer.** der Wert kann je nach Vertragslaufzeit variieren.
Kontaktieren Sie uns für den Preis
- Fläche665 - 4.918 m²
- VerfügbarkeitAuf Anfrage
- Objekt
- Ausstattung
- Lage und Verkehrsanbindung
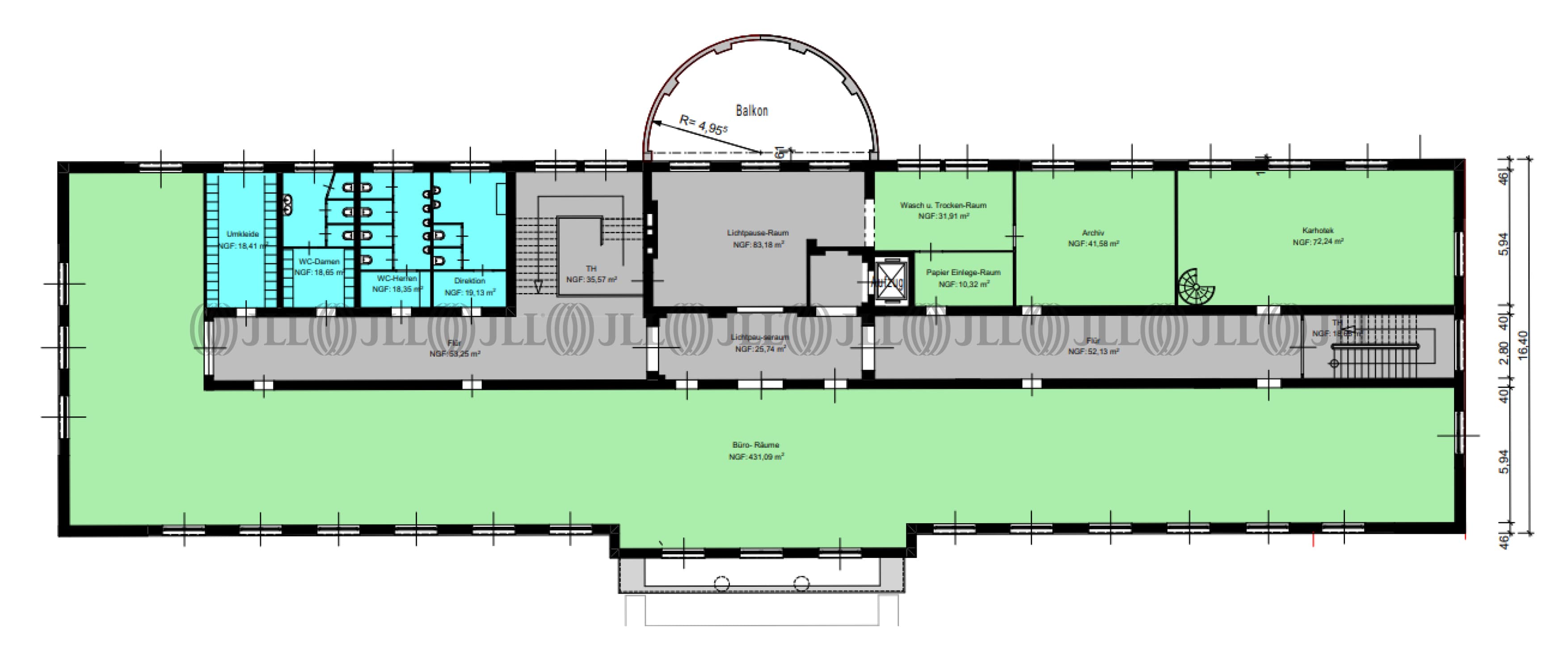
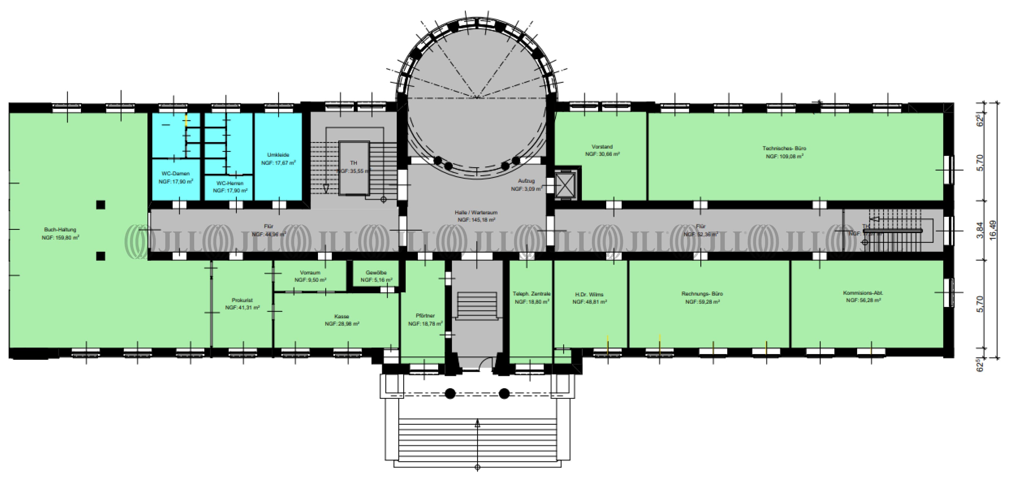
- Grundrisse
- Exposé herunterladen
- Ihr Kontakt
- Anfrage senden
Objekt
Der 5-geschossige Verwaltungsbau aus dem Jahr 1929 überzeugt durch seine repräsentative und gleichzeitig effiziente Architektur. Die Büroflächen verfügen teilweise über Verzierungen an den 3,30 m hohen Decken und große Fensterfronten.
Verfügbare Fläche
Lage und Verkehrsanbindung
Das Objekt befindet sich in direkter Nähe zum Europark Fichtenhain und somit direkt an der A44. Die ÖPNV-Anbindung ist über die gegenüberliegende Bahnhaltestelle gewährleistet. Eine Tankstelle befindet sich in der Nähe.
- Hauptbahnhof, Krefeld, Fahrzeit: 8 min
- Straßenbahn/Tram, Tackheide 043, Gehzeit: 9 min
- Bus, Tackheide 054, 069, Gehzeit: 4 min
- Bundesautobahn, A 44, Fahrzeit: 7 min
- Bundesautobahn, A 57, Fahrzeit: 10 min
- Flughafen, Düsseldorf, Fahrzeit: 21 min
Ihr Kontakt

Janice Lehmann
Ihr Kontakt





