Büros
ID D2212Büroimmobilie - Düsseldorf, Pempelfort - D2212
Pempelfort, 40479, Düsseldorf, Nordrhein-Westfalen
Provisionspflichtig: bei Anmietung 3 Netto-Monatsmieten zzgl. gesetzlicher Umsatzsteuer.** der Wert kann je nach Vertragslaufzeit variieren.
13 € / m²
- Fläche110 m²
- VerfügbarkeitSofort
- Objekt
- Ausstattung
- Lage und Verkehrsanbindung
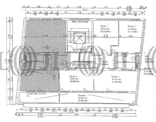
- Grundriss
- Exposé herunterladen
- Ihr Kontakt
- Anfrage senden
Objekt
Die in dem 5-geschossigen Bürohaus vakanten Flächen bestechen durch ihre Helligkeit und optimale Flächennutzung. Die Büros sind flexibel auf die Bedürfnisse der Mieter anpassbar und ermöglichen ein produktives Arbeitsumfeld.
Zertifizierungen
Energieausweis
Für diese Liegenschaft liegt ein Verbrauchsausweis vom 2014-10-17 vom Eigentümer/Vermieter vor. Der wesentliche Energieträger der Liegenschaft ist Erdgas schwer. Der Endenergieverbrauch Strom beträgt 33.20 kWh/(m²*a). Der Endenergieverbrauch Wärme beträgt 190.20 kWh/(m²*a).Verfügbare Fläche
Lage und Verkehrsanbindung
Das repräsentative Bürohaus liegt in unmittelbarer Nähe des Hofgartens am nördlichen Rand des Stadtzentrums. Die Entfernung zum Jan-Wellem-Platz, dem zentralen Verkehrsknotenpunkt für Busse und Straßenbahnen, beträgt nur wenige Gehminuten.
- Hauptbahnhof, Düsseldorf, Fahrzeit: 8 min
- Straßenbahn/Tram, Sternstraße 701, 705, 706, Gehzeit: 3 min
- Bus, Marienhospital 722, Gehzeit: 6 min
- Bundesautobahn, A 52, Fahrzeit: 9 min
- Bundesautobahn, A 44, Fahrzeit: 10 min
- Flughafen, Düsseldorf, Fahrzeit: 15 min
Ihr Kontakt

Anna-Louisa Kratochvil
Ihr Kontakt

