Büros
ID D2211Büroimmobilie - Düsseldorf, Friedrichstadt - D2211
Friedrichstadt, 40212, Düsseldorf, Nordrhein-Westfalen
Provisionspflichtig: bei Anmietung 3 Netto-Monatsmieten zzgl. gesetzlicher Umsatzsteuer.** der Wert kann je nach Vertragslaufzeit variieren.
14 € - 14,50 € / m²
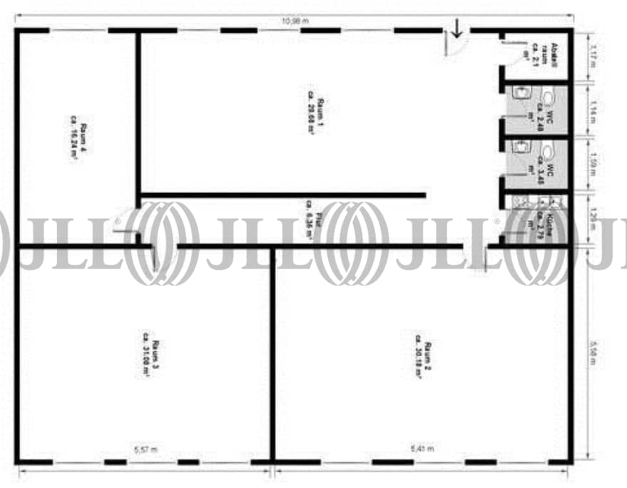
- Fläche105 - 436 m²
- VerfügbarkeitSofort
- Objekt
- Ausstattung
- Lage und Verkehrsanbindung
- Grundriss
- Exposé herunterladen
- Ihr Kontakt
- Anfrage senden
Objekt
Die Büroflächen sind flexibel aufteilbar und werden nach Mieterwunsch hergerichtet. Durch die moderne Fassade sowie durch den großzügigen Eingangsbereich, hinterlässt das Objekt einen repräsentativen Eindruck.
Zertifizierungen
Energieausweis
Für diese Liegenschaft liegt ein Bedarfsausweis vom 01.08.2024 vom Eigentümer/Vermieter vor. Die wesentlichen Energieträger der Liegenschaft sind Fernwärme, Strom. Der Endenergiebedarf Strom beträgt 15.4 kWh/(m²*a). Der Endenergiebedarf Wärme beträgt 137.8 kWh/(m²*a).Verfügbare Fläche
Lage und Verkehrsanbindung
Das Objekt befindet sich in zentraler Innenstadtlage und verfügt durch die Nähe zum Düsseldorfer Hauptbahnhof über eine ideale ÖPNV-Verbindung. Zahlreiche Einkaufsmöglichkeiten des täglichen Bedarfs sind fußläufig schnell zu erreichen.
- Flughafen, Düsseldorf, Fahrzeit: 20 min
- Bundesautobahn, A 46, Fahrzeit: 6 min
- Bundesautobahn, A 52, Fahrzeit: 6 min
- Hauptbahnhof, Düsseldorf, Fahrzeit: 4 min
- Straßenbahn/Tram, Berliner Allee 701, 705, 706, 708, 709, Gehzeit: 1 min
- Bus, Berliner Allee SB50, 780, 782, 785 , Gehzeit: 1 min
Ihr Kontakt

Nell Ewert
Ihr Kontakt




