Büros
ID D2210Büroimmobilie - Düsseldorf, Stadtmitte - D2210
Stadtmitte, 40210, Düsseldorf, Nordrhein-Westfalen
Provisionspflichtig: bei Anmietung 3 Netto-Monatsmieten zzgl. gesetzlicher Umsatzsteuer.** der Wert kann je nach Vertragslaufzeit variieren.
16 € / m²
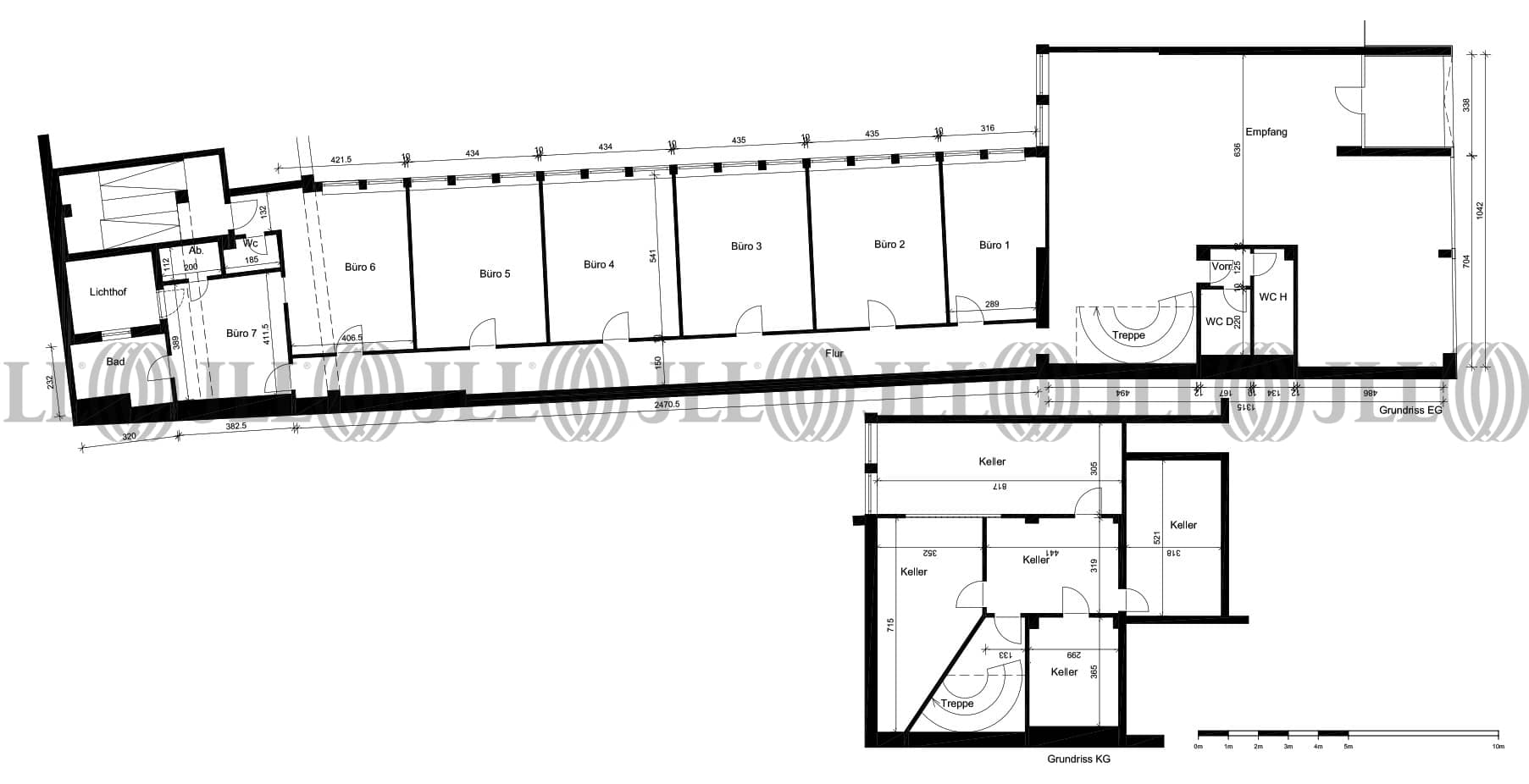
- Fläche250 - 627 m²
- VerfügbarkeitAuf Anfrage
- Objekt
- Ausstattung
- Lage und Verkehrsanbindung
- Grundrisse
- Exposé herunterladen
- Ihr Kontakt
- Anfrage senden
Objekt
Das 6-geschossige Bürogebäude besticht durch ein repräsentatives Erscheinungsbild. Die hellen Büroräume bieten einen flexiblen Grundriss.
Verfügbare Fläche
Lage und Verkehrsanbindung
Das Objekt befindet sich in Zentraler Innenstadtlage, in Nähe zur berühmten Düsseldorfer Einkaufsmeile Königsallee. Zahlreiche Einzelhändler sowie Restaurants sind in wenigen Gehminuten zu erreichen. Des Weiteren überzeugt der Standort durch seine Nähe zum Düsseldorfer Hauptbahnhof, der den idealen Anschluss an den Nah- und Fernverkehr bietet.
- Flughafen, Düsseldorf, Fahrzeit: 12 min
- Bundesautobahn, A 52, Fahrzeit: 8 min
- Bundesautobahn, A 44, Fahrzeit: 9 min
- Hauptbahnhof, Düsseldorf, Fahrzeit: 5 min
- Bus, Steinstraße / Königsallee SB50, 780, 782, 785, Gehzeit: 3 min
- U-Bahn, Steinstraße / Königsallee U70, U74, U75, U76, U77, U78, U79, Gehzeit: 3 min
- Straßenbahn/Tram, Steinstraße / Königsallee 701, 705, 706, Gehzeit: 3 min
Ihr Kontakt

Katharina Ufelmann
Ihr Kontakt




















