Büros
ID D2202Aktualisiert
Büroimmobilie - Düsseldorf, Stadtmitte - D2202
Stadtmitte, 40212, Düsseldorf, Nordrhein-Westfalen
Provisionspflichtig: bei Anmietung 3 Netto-Monatsmieten zzgl. gesetzlicher Umsatzsteuer.** der Wert kann je nach Vertragslaufzeit variieren.
24 € - 25 € / m²
- Fläche143 - 818 m²
- VerfügbarkeitAuf Anfrage
- Objekt
- Ausstattung
- Lage und Verkehrsanbindung
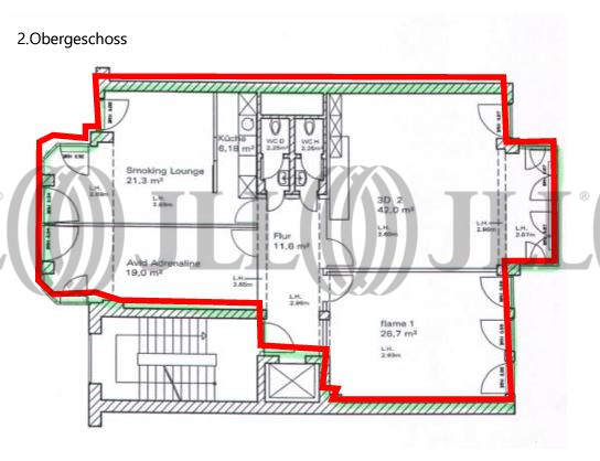
- Grundrisse
- Exposé herunterladen
- Ihr Kontakt
- Anfrage senden
Objekt
Das 6-geschossige Büro- und Geschäftshaus wurde 2005 saniert und besticht durch ein modernes Erscheinungsbild. Die Büroflächen werden über einen repräsentativen Eingangsbereich erschlossen und bieten eine helle Arbeitsatmosphäre. Der Grundriss ist flexibel an die Bedürfnisse des jeweiligen Mieters anpassbar.
Zertifizierungen
Energieausweis
Für diese Liegenschaft liegt ein Verbrauchsausweis vom 2020-01-07 vom Eigentümer/Vermieter vor. Der wesentliche Energieträger der Liegenschaft ist Heizwerk, fossil. Der Endenergieverbrauch Strom beträgt 39.40 kWh/(m²*a). Der Endenergieverbrauch Wärme beträgt 106.80 kWh/(m²*a).Verfügbare Fläche
Lage und Verkehrsanbindung
Das Objekt befindet sich in renommierter Lage mitten im Düsseldorfer CBD. Der CBD wird im Süden vom Gap 15 und im Norden vom Dreischeibenhaus begrenzt. Die Berliner Allee sowie Kasernenstraße/Heinrich-Heine-Allee bilden östlich und westlich die Grenze. Herzstück ist somit die berühmte Königsallee. Zahlreiche namhafte Unternehmen am Standort profitieren von der idealen ÖPNV-Anbindung sowie der hervorragenden Infrastruktur in Bezug auf die tägliche Nahversorgung. Dienstleister des täglichen Bedarfs befinden sich in der Nähe.
- Flughafen, Düsseldorf, Fahrzeit: 19 min
- Bundesautobahn, A 46, Fahrzeit: 8 min
- Bundesautobahn, A 52, Fahrzeit: 9 min
- Bundesautobahn, A 44, Fahrzeit: 10 min
- Bundesautobahn, A 57, Fahrzeit: 14 min
- Bus, Steinstraße / Königsallee 780, 782, 785, 805, 817, SB50, Gehzeit: 3 min
- U-Bahn, Steinstraße / Königsallee U70, U74, U75, U76, U77, U78, U79, Gehzeit: 4 min
- Hauptbahnhof, Düsseldorf, Fahrzeit: 6 min
- Straßenbahn/Tram, Steinstraße / Königsallee 701, 705, 706, Gehzeit: 4 min
Ihr Kontakt

Anna-Louisa Kratochvil
Ihr Kontakt









