Büros
ID D2185Provisionsfrei
Büroimmobilie - Düsseldorf, Stadtmitte - D2185
Stadtmitte, 40213, Düsseldorf, Nordrhein-Westfalen
35 € / m²
- Fläche484 - 1.110 m²
- VerfügbarkeitAuf Anfrage
- Objekt
- Ausstattung
- Lage und Verkehrsanbindung
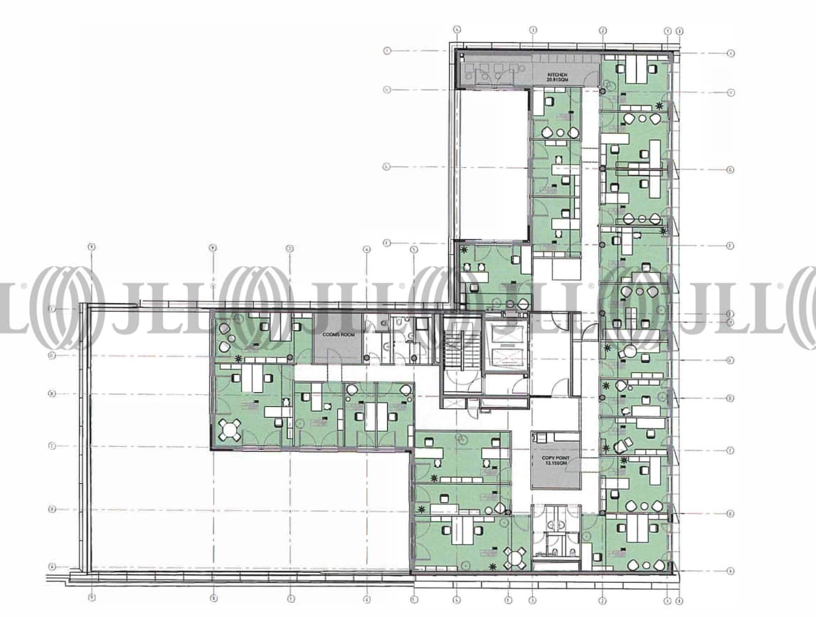
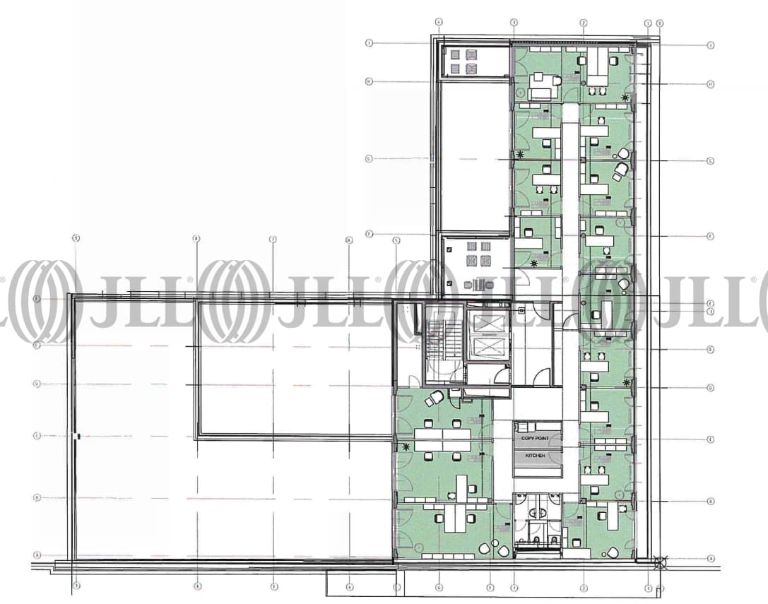
- Grundrisse
- Exposé herunterladen
- Ihr Kontakt
- Anfrage senden
Objekt
Das 3hoch5 ist die ideale Immobilie für anspruchsvolle Nutzer. Über das exklusive Foyer gelangt man zu den Aufzügen und auf die Büroetagen. Effiziente Grundrisse sowie eine hochwertige Ausstattung erwarten den neuen Mieter. Exklusive Terrassenflächen runden das Flächenangebot ab.
Zertifizierungen
Energieausweis
Für diese Liegenschaft liegt ein Verbrauchsausweis vom 23.01.2026 vom Eigentümer/Vermieter vor. Die wesentlichen Energieträger der Liegenschaft sind Fernwärme, Strom. Der Endenergieverbrauch Strom beträgt 34.6 kWh/(m²*a). Der Endenergieverbrauch Wärme beträgt 92.8 kWh/(m²*a).Verfügbare Fläche
Lage und Verkehrsanbindung
Das Objekt befindet sich an der Breite Straße mitten im Herzen des CBD. Gelegen zwischen Königsallee und Altstadt verfügt dieser Standort die optimale Infrastruktur. Dienstleister des täglichen Bedarfs befinden sich in der Nähe.
- Hauptbahnhof, Düsseldorf, Fahrzeit: 7 min
- U-Bahn, Benrather Straße U71, U72, U73, U83, Fahrzeit: 2 min
- Bus, Benrather Straße SB50, 780, 782, 785, 805, 817, Gehzeit: 1 min
- Bundesautobahn, A 44, Fahrzeit: 10 min
- Bundesautobahn, A 52, Fahrzeit: 12 min
- Flughafen, Düsseldorf, Fahrzeit: 11 min
Ihr Kontakt

Anna-Louisa Kratochvil
Ihr Kontakt





