Büros
ID D2180Provisionsfrei
Büroimmobilie - Essen, Rüttenscheid - D2180
Rüttenscheid, 45130, Essen, Nordrhein-Westfalen
Kontaktieren Sie uns für den Preis
- Fläche593 - 1.068 m²
- VerfügbarkeitSofort
- Objekt
- Ausstattung
- Lage und Verkehrsanbindung
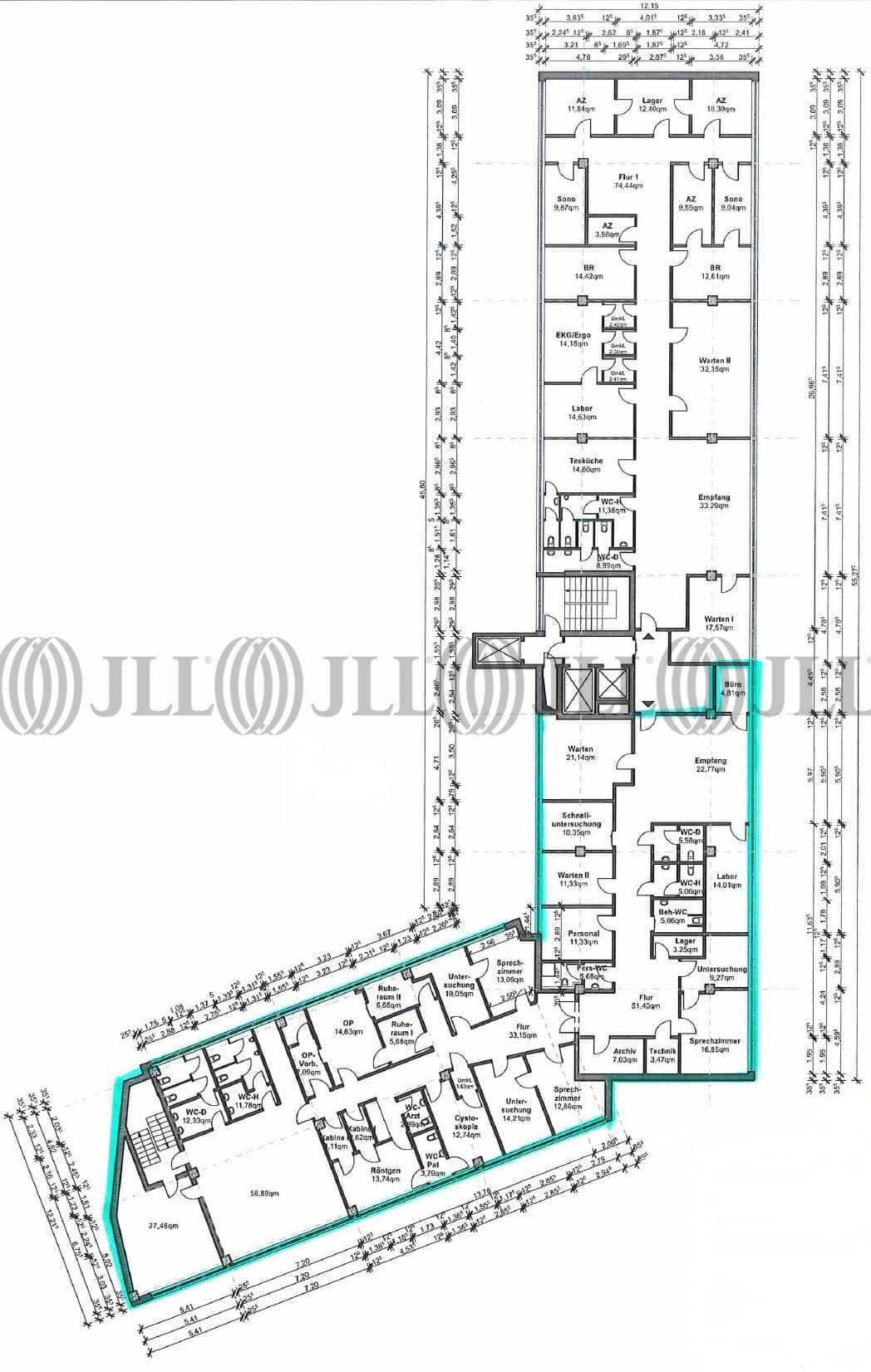
- Grundrisse
- Exposé herunterladen
- Ihr Kontakt
- Anfrage senden
Objekt
Das Geschäftshaus, dass sich direkt am Rüttenscheider Stern befindet, überzeugt vor allem durch seine herausragende Lage und den einzigartigen Ausblick über die Stadt Essen. Dank des flexiblen Grundrisses können individuelle Arbeitsplatzkonzepte der zukünftigen Mieter dargestellt werden. Stellplätze sind in der objekteigenen Tiefgarage anmietbar. Die Mietflächen sind sowohl über ein Treppenhaus als auch einen Personenaufzug erschlossen. Darüber hinaus haben Mieter die Möglichkeit sich über eine große Werbetafel, die sich in der Fensterfront des Eingangsbereichs befindet, werbewirksam darzustellen.
Verfügbare Fläche
Lage und Verkehrsanbindung
Die Büromarktzone Rüttenscheid erstreckt sich entlang der bekannten Rüttenscheider Straße und verbindet die Teilmärkte City Süd im Norden und Bredeney im Süden. Begrenzt wird sie durch die Hohenzollernstraße im Norden und der A52 im Süden. Das Gerichtsviertel rund um die Zweigertstraße stellt die westliche Begrenzung dar. Der Teilmarkt zeichnet sich durch eine sehr gute Nahversorgung, Einkaufsmöglichkeiten und Anbindung an das ÖPNV-Netz aus, über die Autobahn A52 ist die überregionale Anbindung sichergestellt. Zentral im Teilmarkt liegt der Knotenpunkt Rüttenscheider Stern, der das Stadtteilzentrum ebenso prägt wie der Büro- und Dienstleistungskomplex rund um das Giradet Haus. In Rüttenscheid sind wichtige staatliche Einrichtungen beheimatet, wie z.B. das Polizeipräsidium, das Amt-, Land-, Arbeits- und Landesozialgericht. In direkter Nachbarschaft zum Messgelände wurden und werden hochwertige Neubauten errichtet, die den neueren Teil dieser Büromarktzone auszeichnen. Dienstleister des täglichen Bedarfs befinden sich in der Nähe.
- Flughafen, Düsseldorf, Fahrzeit: 22 min
- Bundesautobahn, A 40, Fahrzeit: 6 min
- Bundesautobahn, A 52, Fahrzeit: 6 min
- Bus, Martinstraße 142, 160, 161, Gehzeit: 7 min
- U-Bahn, Rüttenscheider Stern U11, Gehzeit: 2 min
- Straßenbahn/Tram, Rüttenscheider Stern 101, 106, 107, Gehzeit: 2 min
- Hauptbahnhof, Essen, Fahrzeit: 7 min
Ihr Kontakt

Martin Jahnke
Ihr Kontakt









