Büros
ID D2167Büroimmobilie - Dortmund, Innenstadt-West - D2167
Innenstadt-West, 44137, Dortmund, Nordrhein-Westfalen
Provisionspflichtig: bei Anmietung 3 Netto-Monatsmieten zzgl. gesetzlicher Umsatzsteuer.** der Wert kann je nach Vertragslaufzeit variieren.
13 € - 14 € / m²
- Fläche500 - 1.184 m²
- VerfügbarkeitAuf Anfrage
- Objekt
- Ausstattung
- Lage und Verkehrsanbindung
- Grundrisse
- Exposé herunterladen
- Ihr Kontakt
- Anfrage senden
Objekt
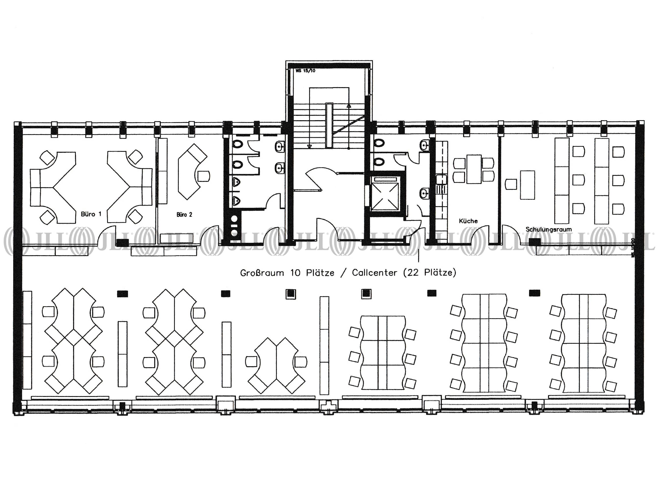
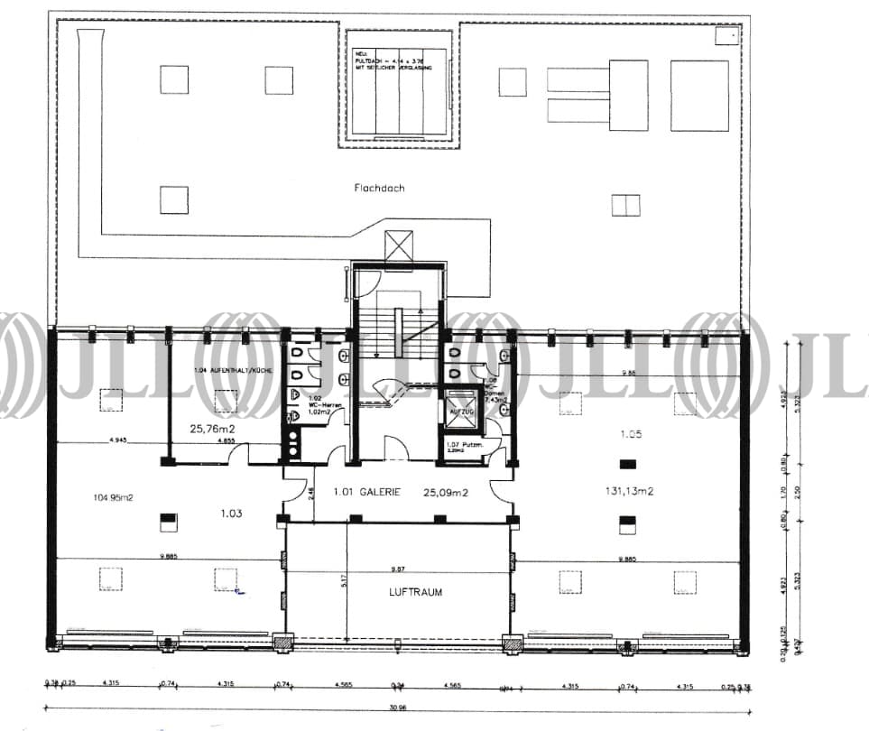
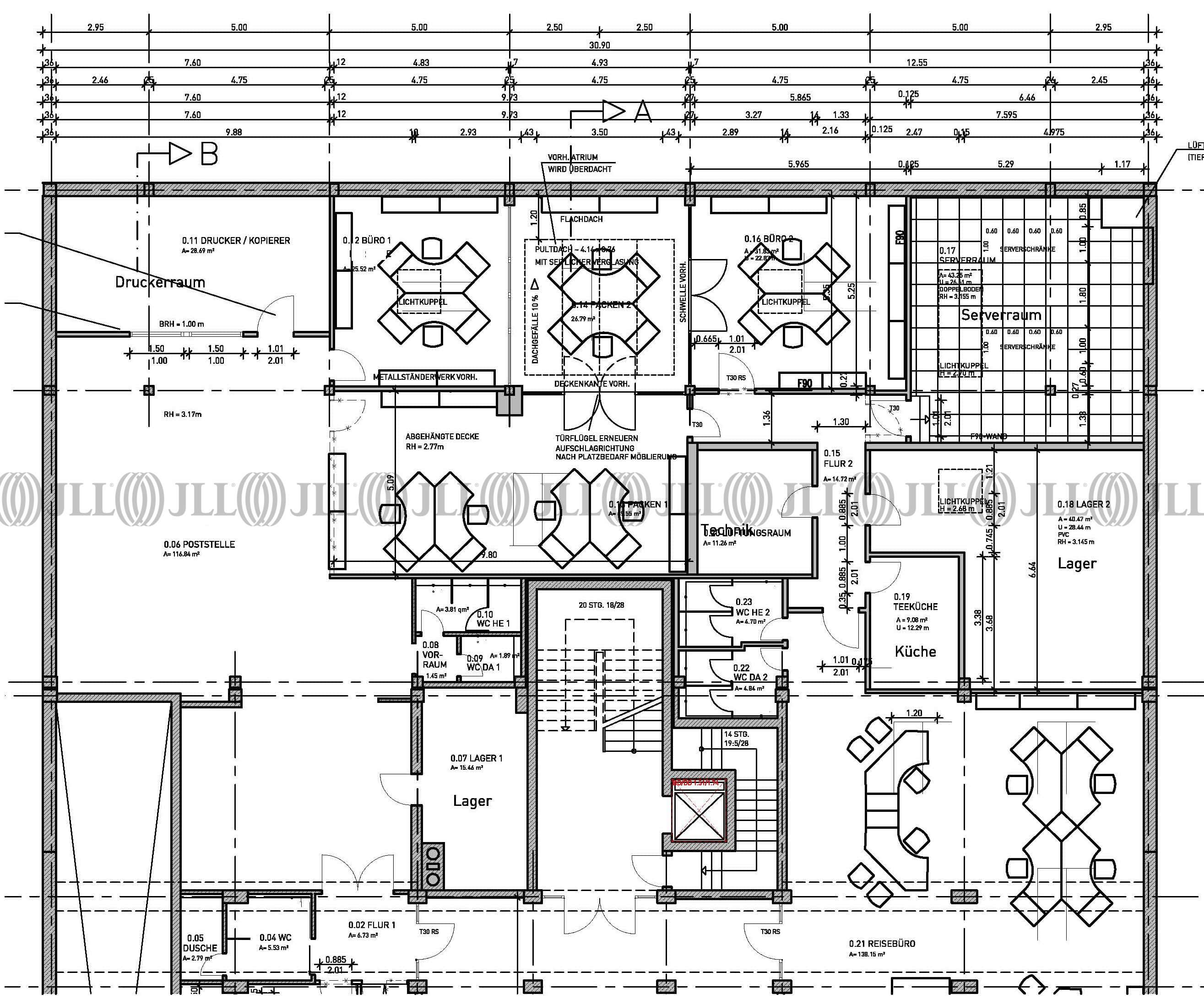
Es handelt sich um eine 1960 erbaute und stetig modernisierte Liegenschaft in der Dortmunder-Innenstadt nahe dem Hauptbahnhof. Die Liegenschaft befindet sich in einem sehr gepflegten und modernen Zustand und überzeugt neben der hochwertigen Marmor-Hausfassade auch durch helle und freundliche Büroräume. Der flexible Grundriss des Objektes bietet darüber hinaus optimale Aufteilungsmöglichkeiten, sodass vom Einzelbüro bis zum Großraumbüro alles darstellbar ist.
Verfügbare Fläche
Lage und Verkehrsanbindung
Die Büromarktzone City umfasst die Grenzen der historischen Stadt Dortmund innerhalb der Wallanlagen. Sie wird von West nach Ost durch die Einkaufsstraßen Westenhellweg und Ostenhellweg durchzogen. Der Westenhellweg beginnt nahe der Reinoldikirche und erstreckt sich in Richtung Westen. Der Ostenhellweg beginnt zwischen der Reinoldikirche und führt nach Osten hin zum Wall. Die zentrale Lage mit ausgezeichneter ÖPNV-Anbindung und Infrastruktur hat zahlreiche umsatzstarke Firmen jeglicher Branche hergezogen. Auch bekannte Modeketten, Gastronomien, Parfümerien oder Elektronik Märkte sind zahlreich vertreten. Markante Gebäude sind die Corso Passage sowie das Krügerhaus. Dienstleister des täglichen Bedarfs befinden sich in der Nähe.
- Hauptbahnhof, Dortmund, Gehzeit: 4 min
- U-Bahn, Hauptbahnhof U41, U45, U47, U49, Gehzeit: 4 min
- Bundesautobahn, A 40, Fahrzeit: 11 min
- Bundesautobahn, A 45, Fahrzeit: 14 min
- Flughafen, Düsseldorf, Fahrzeit: 50 min
Ihr Kontakt

Martin Jahnke
Ihr Kontakt





