Büros
ID D2166Büroimmobilie - Essen, Kettwig - D2166
Kettwig, 45219, Essen, Nordrhein-Westfalen
Provisionspflichtig: bei Anmietung 3 Netto-Monatsmieten zzgl. gesetzlicher Umsatzsteuer.** der Wert kann je nach Vertragslaufzeit variieren.
9,50 € / m²
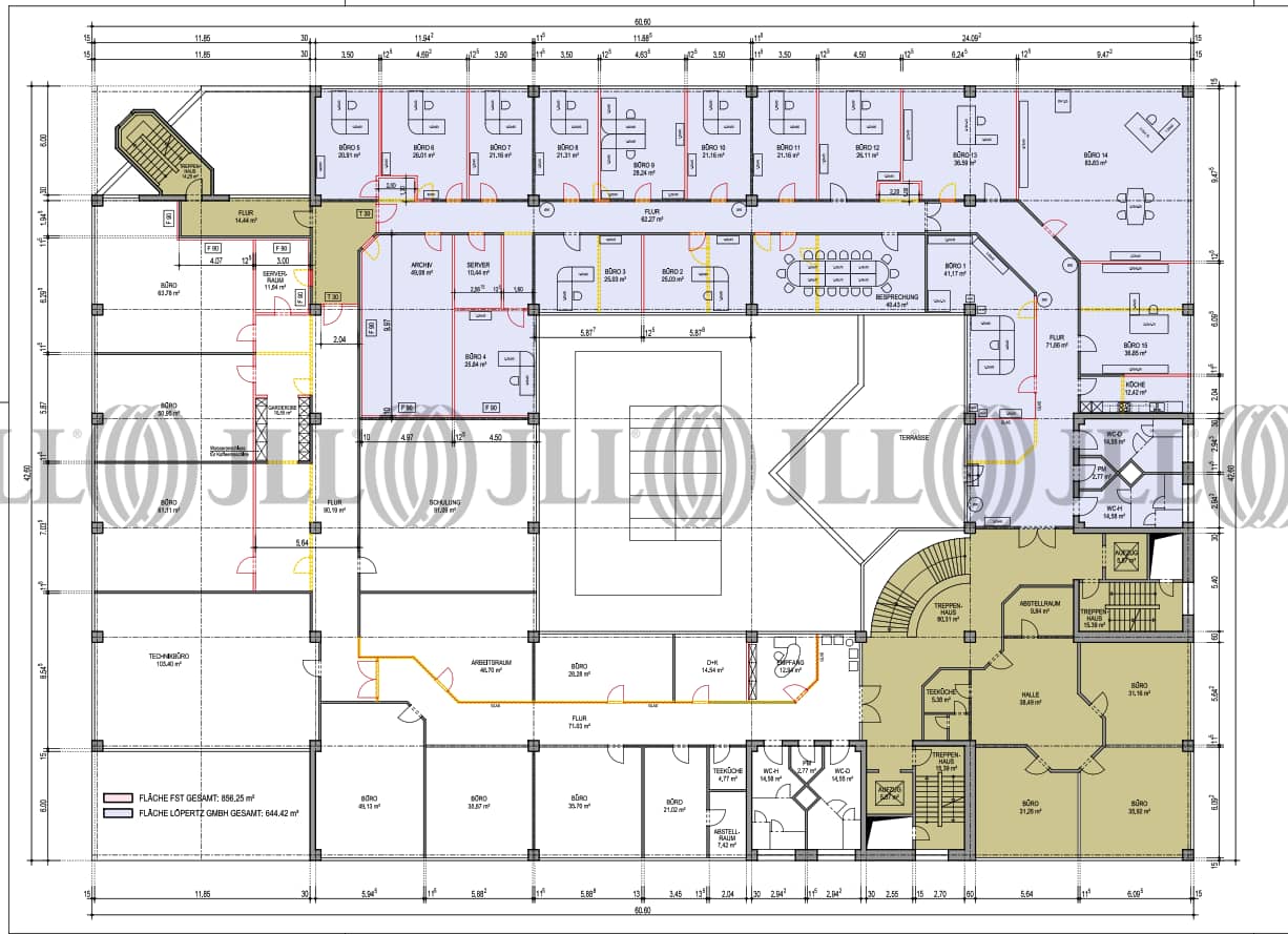
- Fläche700 - 880 m²
- VerfügbarkeitSofort
- Objekt
- Ausstattung
- Lage und Verkehrsanbindung
- Grundriss
- Exposé herunterladen
- Ihr Kontakt
- Anfrage senden
Objekt
Es handelt sich um eine im Jahre 1994 erbaute und vollständig modernisierte Liegenschaft im „Gewerbegebiet Im Tellbruch“ in Essen-Kettwig. Die Liegenschaft befindet sich in einem hochmodernen und äußerst gepflegten Zustand und überzeugt durch die Vielzahl individueller Aufteilungsmöglichkeiten. So sind nicht nur Einzelbüros, sondern auch Gruppenbüros problemlos darstellbar. Neben den hellen und freundlichen Büroräumen bietet die Liegenschaft die Möglichkeit zur Nutzung einer (Dach-)Terrasse. Stellplätze für Kraftfahrzeuge können nach Absprache mit dem Vermieter sowohl in der hauseigenen Tiefgarage, als auch auf den Außenstellplätzen angemietet werden.
Zertifizierungen
Energieausweis
Für diese Liegenschaft liegt ein Bedarfsausweis vom 2011-05-23 vom Eigentümer/Vermieter vor. Die wesentlichen Energieträger der Liegenschaft sind Erdgas leicht,Strom. Endenergiebedarf: 218.00000 kWh/(m²*a).Verfügbare Fläche
Lage und Verkehrsanbindung
Das Gewerbegebiet im Teelbruch befindet sich in Kettwig und liegt unweit der A52 an der Meisenburgstraße. Neben produzierendem Gewerbe haben sich viele Dienstleistungsunternehmen im Teelbruch angesiedelt. Für Pendler aus dem Süden ist dieser Standort besonders gut erreichbar.
- Hauptbahnhof, Essen, Fahrzeit: 17 min
- Bus, Im Teelbruch 142, Gehzeit: 1 min
- Bundesautobahn, A 52, Fahrzeit: 4 min
- Bundesautobahn, A 3, Fahrzeit: 10 min
- Flughafen, Düsseldorf, Fahrzeit: 21 min
Ihr Kontakt

Martin Jahnke
Ihr Kontakt




