Büros
ID D2044Büroimmobilie - Düsseldorf, Stadtmitte - D2044
Stadtmitte, 40210, Düsseldorf, Nordrhein-Westfalen
Provisionspflichtig: bei Anmietung 3 Netto-Monatsmieten zzgl. gesetzlicher Umsatzsteuer.** der Wert kann je nach Vertragslaufzeit variieren.
28 € / m²
- Fläche409 m²
- VerfügbarkeitSofort
- Objekt
- Ausstattung
- Lage und Verkehrsanbindung
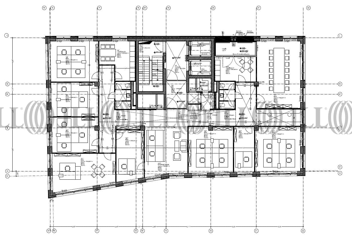
- Grundriss
- Exposé herunterladen
- Ihr Kontakt
- Anfrage senden
Objekt
Das ehemalige Franziskanerkloster wird das neue Landmark Building auf der Immermannstraße. Die Kombination aus Wohnen und einer gewerblichen Hochhausentwicklung werden diese Lage weiter aufwerten. Kompakte Etagengrößen und eine effiziente Gebäudestruktur bieten maximale Flexibilität.
Zertifizierungen
Energieausweis
DGNB: GoldFür diese Liegenschaft liegt ein Bedarfsausweis vom 15.09.2021 vom Eigentümer/Vermieter vor. Die wesentlichen Energieträger der Liegenschaft sind Fernwärme, KWK. Der Endenergiebedarf Strom beträgt 32.00 kWh/(m²*a). Der Endenergiebedarf Wärme beträgt 76.00 kWh/(m²*a).
Verfügbare Fläche
Lage und Verkehrsanbindung
Die Liegenschaft befindet sich in zentraler Innenstadtlage von Düsseldorf. Dieser Standort zeichnet sich besonders durch eine sehr gute Infrastruktur und ÖPNV Anbindung aus. Zahlreiche Einkaufsmöglichkeiten, Geschäfte des alltäglichen Bedarfs sowie Restaurants und Ärzte sind in unmittelbarer Nähe zu finden. Die Altstadt direkt am Rhein gelegen sowie die beliebte Einkaufsmeile Königsallee laden zum Verweilen ein und liegen in fußläufiger Entfernung.
- Hauptbahnhof, Düsseldorf Hbf, Fahrzeit: 4 min
- U-Bahn, Oststraße U70, U74, U75, U76, U77, U78, U79, Gehzeit: 3 min
- Bus, Oststraße SB55, 737, 752, 754, 805, 817, Gehzeit: 3 min
- Bundesautobahn, A 44, Fahrzeit: 9 min
- Bundesautobahn, A 52, Fahrzeit: 11 min
- Flughafen, Düsseldorf, Fahrzeit: 12 min
Ihr Kontakt

Nell Ewert
Ihr Kontakt







