Büros
ID D2019Aktualisiert
Büroimmobilie - Essen, Stadtkern - D2019
Stadtkern, 45127, Essen, Nordrhein-Westfalen
Provisionspflichtig: bei Anmietung 3 Netto-Monatsmieten zzgl. gesetzlicher Umsatzsteuer.** der Wert kann je nach Vertragslaufzeit variieren.
Kontaktieren Sie uns für den Preis
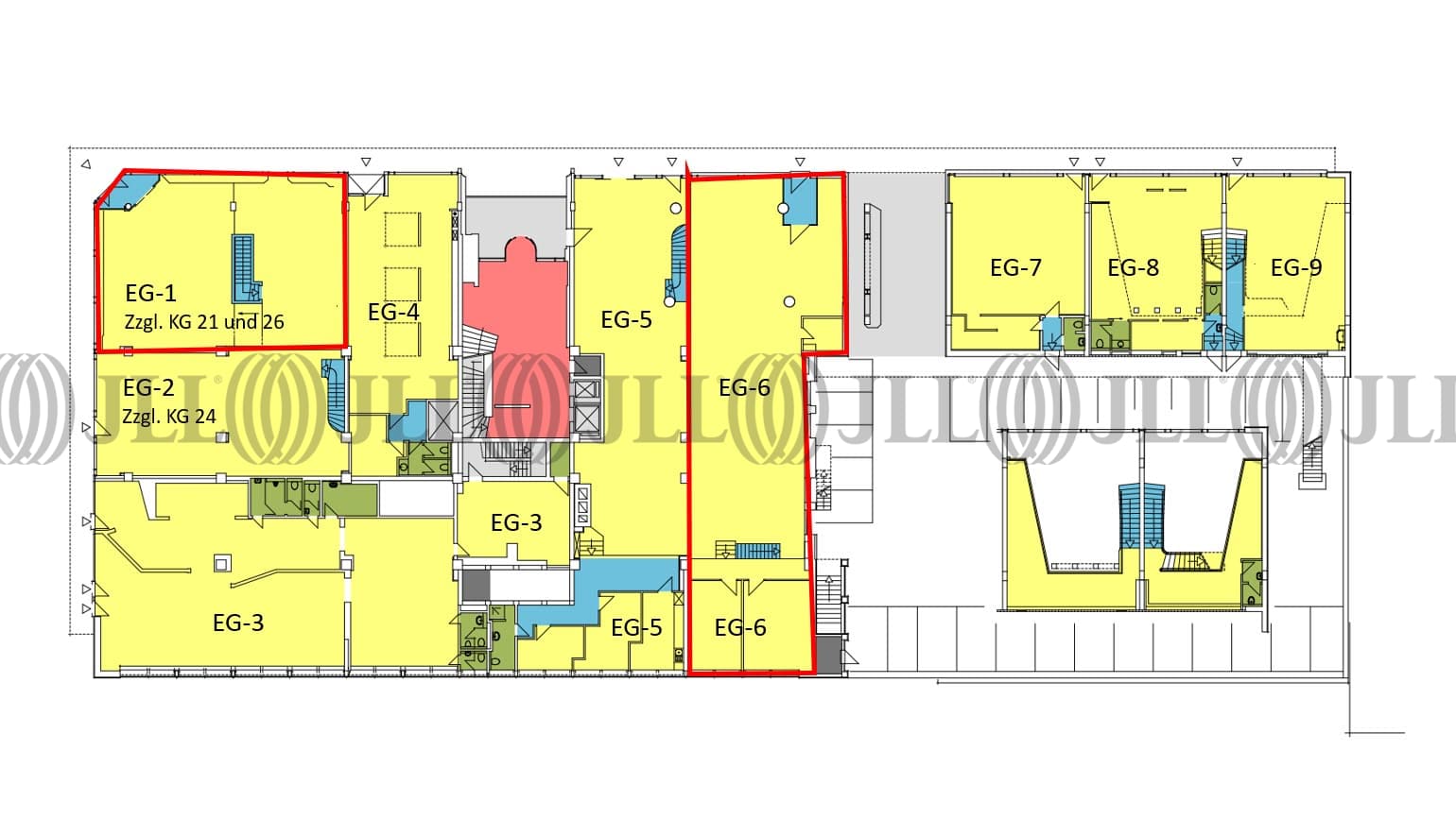
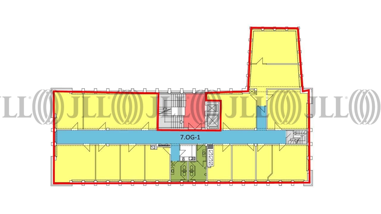
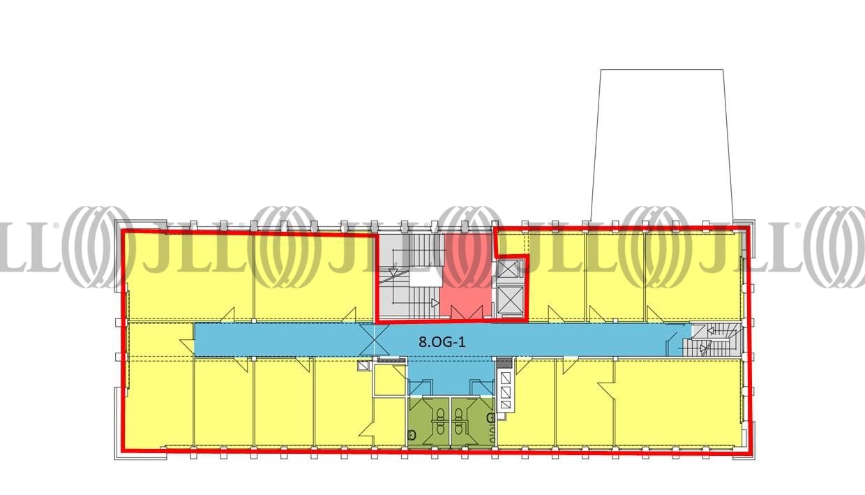
- Fläche537 - 1.689 m²
- VerfügbarkeitSofort
- Objekt
- Ausstattung
- Lage und Verkehrsanbindung
- Grundrisse
- Exposé herunterladen
- Ihr Kontakt
- Anfrage senden
Objekt
Das Büro- und Geschäftshaus ist durch seine exponierte Lage unweit des Essener Hauptbahnhofs über die Stadtgrenzen hinaus bekannt. Es zeichnet sich besonders durch seinen repräsentativen Eingangsbereich aus. Die Büroflächen werden saniert, somit hat der Mieter die Möglichkeit, auf die Ausstattung sowie den Grundriss Einfluss zu nehmen.
Zertifizierungen
Energieausweis
Für diese Liegenschaft liegt ein Verbrauchsausweis vom 2009-10-09 vom Eigentümer/Vermieter vor. Die wesentlichen Energieträger der Liegenschaft sind Fernwärme,Heizwerk, fossil,Nahwärme. Der Endenergieverbrauch Strom beträgt 43.20 kWh/(m²*a). Der Endenergieverbrauch Wärme beträgt 264.40 kWh/(m²*a).Verfügbare Fläche
Lage und Verkehrsanbindung
Die Büromarktzone City umfasst die Innenstadt, das Entwicklungsgebiet Grüne Mitte und insbesondere die Fußgängerzone Essens. Sie wird im Norden durch den Viehofer Platz und im Osten durch Bürobebauung entlang der Schützenbahn begrenzt. Die City grenzt direkt an die Büromarktzonen Weststadt und das Südviertel. Die Abgrenzung erfolgt durch die Hindenburgstraße bzw. den Limbecker Platz im Westen sowie die Bahnschienen des Essener Hauptbahnhofs im Süden. Aufgrund der zentralen Lage mit ausgezeichneter ÖPNV-Anbindung und Infrastruktur, dazu repräsentative Bestandsbauten haben sich zahlreiche innovative, kapitalkräftige Firmen aller Branchen angesiedelt. Zu den markantesten Gebäuden zählen die Hochhäuser an der Schützenbahn und Hollestraße sowie die Neubauten in der Grünen Mitte, auf dem Gelände des ehemaligen Güterbahnhofs.
- Hauptbahnhof, Essen, Gehzeit: 1 min
- U-Bahn, Hauptbahnhof U11, U17, U18, 101, 105, 106, 107, 108, Gehzeit: 1 min
- Straßenbahn/Tram, Hauptbahnhof 101, 105, 106, 107, 108, Gehzeit: 1 min
- Bus, Hauptbahnhof SB15, 145, 146, 147, 154, 155, 166, 196, Gehzeit: 1 min
- Bundesautobahn, A 40, Fahrzeit: 2 min
- Bundesautobahn, A 52, Fahrzeit: 6 min
- Flughafen, Düsseldorf, Fahrzeit: 22 min
Ihr Kontakt

Martin Jahnke
Ihr Kontakt













