Büros
ID D1999Büroimmobilie - Duisburg, Friemersheim - D1999
Friemersheim, 47229, Duisburg, Nordrhein-Westfalen
Provisionspflichtig: bei Anmietung 3 Netto-Monatsmieten zzgl. gesetzlicher Umsatzsteuer.** der Wert kann je nach Vertragslaufzeit variieren.
Kontaktieren Sie uns für den Preis
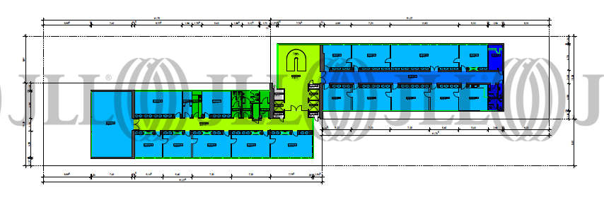
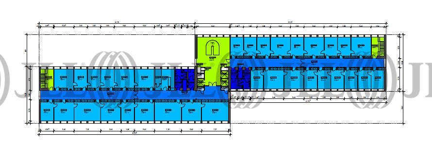
- Fläche500 - 3.797 m²
- VerfügbarkeitSofort
- Objekt
- Ausstattung
- Lage und Verkehrsanbindung
- Grundrisse
- Exposé herunterladen
- Ihr Kontakt
- Anfrage senden
Objekt
Die klimatisierten Büroflächen sind in einem sehr guten Zustand und sind sofort bezugsfertig. Die flexibel gestaltbaren und hellen Büroflächen bieten mit ihrer bedarfsgerechten Ausstattung sowie dem repräsentativen Erscheinungsbild ein rundum gelungenes Arbeitsumfeld.
Zertifizierungen
Energieausweis
Für diese Liegenschaft liegt ein Verbrauchsausweis vom 2022-03-24 vom Eigentümer/Vermieter vor. Der wesentliche Energieträger der Liegenschaft ist Heizwerk, fossil. Der Endenergieverbrauch Strom beträgt 25.80 kWh/(m²*a). Der Endenergieverbrauch Wärme beträgt 71.20 kWh/(m²*a).Verfügbare Fläche
Lage und Verkehrsanbindung
Das linksrheinische Duisburger Hafengelände logport gilt als europäische Logistikdrehscheibe. Es liegt im Duisburger Westen im Stadtbezirk Rheinhausen und ist über die Autobahnen A 40 und A 57 an das überregionale Straßennetz angeschlossen. Auf dem Gelände des 1993 geschlossenen Krupp-Stahlwerkes haben sich zahlreiche internationale Logistikunternehmen an der trimodalen Schnittstelle zwischen Schiff, Bahn und Straße niedergelassen. Die nahegelegenen Bahnstationen Rheinhausen und Rheinhausen-Ost stellen die ÖPNV-Anbindung zur Duisburger Innenstadt und den Metropolen der Region sicher.
- Hauptbahnhof, Duisburg, Fahrzeit: 14 min
- Bus, Gaterweg 914, 922, Gehzeit: 2 min
- Bundesautobahn, A 57, Fahrzeit: 9 min
- Bundesautobahn, A 40, Fahrzeit: 11 min
- Flughafen, Düsseldorf, Fahrzeit: 22 min
Ihr Kontakt

Martin Jahnke
Ihr Kontakt










