Büros
ID D1941Büroimmobilie - Dortmund, Innenstadt-West - D1941
Innenstadt-West, 44137, Dortmund, Nordrhein-Westfalen
Provisionspflichtig: bei Anmietung 3 Netto-Monatsmieten zzgl. gesetzlicher Umsatzsteuer.** der Wert kann je nach Vertragslaufzeit variieren.
13 € / m²
- Fläche507 m²
- VerfügbarkeitSofort
- Objekt
- Ausstattung
- Lage und Verkehrsanbindung
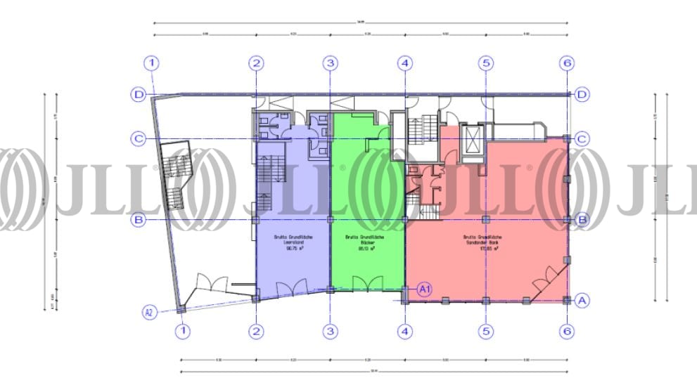
- Grundrisse
- Exposé herunterladen
- Ihr Kontakt
- Anfrage senden
Objekt
Die 5-geschossige Liegenschaft in bester Innenstadtlage verfügt über einen zentralen Eingangsbereich mit Personenaufzug. Eine große Fensterfront lässt die Flächen sehr hell und einladend wirken. Die Büroflächen im 2. OG. sollen zukünftig zusammengelegt werden und bieten damit eine attraktive Flächengröße für Unternehmen aller Art. Die Mietflächen können in Absprache mit dem zukünftigen Nutzer ausgebaut werden.
Die großzügigen Einzelhandelsflächen erstrecken sich über mehrere Etagen und bieten die Möglichkeit eines attraktiven Nutzungskonzepts im Herzen der Dortmunder Innenstadt.
Die großzügigen Einzelhandelsflächen erstrecken sich über mehrere Etagen und bieten die Möglichkeit eines attraktiven Nutzungskonzepts im Herzen der Dortmunder Innenstadt.
Zertifizierungen
Energieausweis
Für diese Liegenschaft liegt ein Bedarfsausweis vom 2022-07-29 vom Eigentümer/Vermieter vor. Die wesentlichen Energieträger der Liegenschaft sind Fernwärme,Nahwärme,KWK,Strom. Der Endenergiebedarf Strom beträgt 22.00 kWh/(m²*a). Der Endenergiebedarf Wärme beträgt 124.00 kWh/(m²*a).Verfügbare Fläche
Lage und Verkehrsanbindung
Die Liegenschaft befindet sich in exponierter Lage auf der Kampstraße. Die zentrale Innenstadtlage und die Nähe zum Hauptbahnhof garantieren kurze Wege. Einkaufsmöglichkeiten finden sich in Dortmunds einzelhandelsstarker Innenstadt, die ÖPNV-Anbindung an die Metropolen der Region befindet sich direkt vor dem Objekt. Nur wenige Fahrminuten entfernt verläuft die B 1 (Rheinlanddamm), die die City mit den Autobahnen verbindet. Der Flughafen Dortmund ist in weniger als 20 Fahrminuten erreichbar. Dienstleister des täglichen Bedarfs befinden sich in der Nähe.
- Hauptbahnhof, Düsseldorf, Gehzeit: 7 min
- U-Bahn, Kampstraße U43, U47, Gehzeit: 1 min
- Bundesautobahn, A 40, Fahrzeit: 8 min
- Bundesautobahn, A 45, Fahrzeit: 11 min
- Flughafen, Düsseldorf, Fahrzeit: 42 min
Ihr Kontakt

Martin Jahnke
Ihr Kontakt



