Büros
ID D1888Büroimmobilie - Duisburg, Altstadt - D1888
Altstadt, 47051, Duisburg, Nordrhein-Westfalen
Provisionspflichtig: bei Anmietung 3 Netto-Monatsmieten zzgl. gesetzlicher Umsatzsteuer.** der Wert kann je nach Vertragslaufzeit variieren.
7,50 € / m²
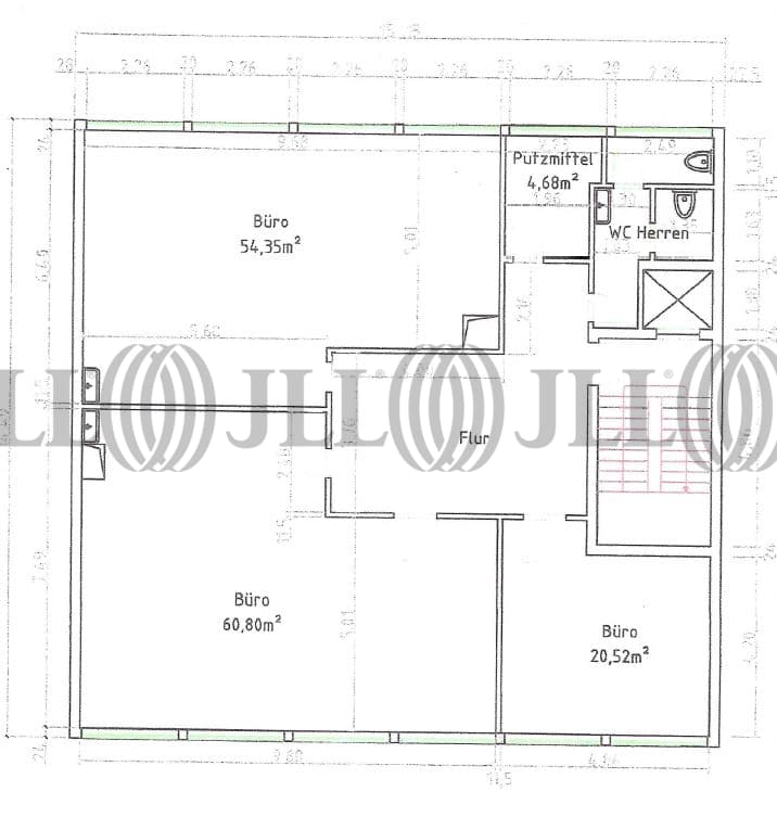
- Fläche549 m²
- VerfügbarkeitSofort
- Objekt
- Ausstattung
- Lage und Verkehrsanbindung
- Grundrisse
- Exposé herunterladen
- Ihr Kontakt
- Anfrage senden
Objekt
Das Bürogebäude liegt direkt in der Duisburger Fußgängerzone „Sonnenwall“. Im Erdgeschoss verfügt das Geschäftshaus über mehrere Einzelhandelsflächen. In der unmittelbaren Umgebung befinden sich zahlreiche Geschäfte, Banken und Restaurants und sorgen somit für ein lebendiges und stark frequentiertes Umfeld. Aktuell befinden sich die Büroflächen in einem unrenovierten Zustand, können aber in Absprache mit dem Vermieter nach den Vorstellungen des zukünftigen Mieters hergerichtet werden.
Verfügbare Fläche
Lage und Verkehrsanbindung
Der Duisburger Citykern im Herzen der Stadt grenzt direkt an den Duisburger Innenhafen im Norden, und wird von der Autobahn A 59 im Osten, sowie der Plessingstraße / Kremerstraße / Mercatorstraße im Süden und Westen eingerahmt. Die Duisburger Innenstadt bietet entlang der Königstraße und mit ihren Nebenstraßen ein abwechslungsreiches Einkaufs- und Gastronomieangebot, welches durch die Einkaufszentren Forum Duisburg und das City Palais ergänzt wird. Der Citykern wird geprägt durch kleinvolumige Bürohäuser sowie durch größere Bürohäuser an den Verkehrsachsen Friedrich-Wilhelm-Straße, Saarstraße und Mercatorstraße. Markante Gebäude sind unter anderem der Ruhr-Tower, das Hoist-Hochhaus, die Targobank-Gebäude sowie die Zentralbibliothek Duisburg. Über den zentral gelegenen Hauptbahnhof und die Autobahn A 59 sind die Metropolen der Region in kürzester Zeit zu erreichen.
- Hauptbahnhof, Duisburg, Fahrzeit: 3 min
- U-Bahn, Steinsche Gasse U79, Gehzeit: 1 min
- Straßenbahn/Tram, Steinsche Gasse 903, Gehzeit: 1 min
- Bundesautobahn, A 40, Fahrzeit: 3 min
- Bundesautobahn, A 59, Fahrzeit: 3 min
- Flughafen, Düsseldorf, Fahrzeit: 18 min
Ihr Kontakt

Martin Jahnke
Ihr Kontakt






