Büros
ID D1867Büroimmobilie - Essen, Südviertel - D1867
Südviertel, 45128, Essen, Nordrhein-Westfalen
Provisionspflichtig: bei Anmietung 3 Netto-Monatsmieten zzgl. gesetzlicher Umsatzsteuer.** der Wert kann je nach Vertragslaufzeit variieren.
15,90 € / m²
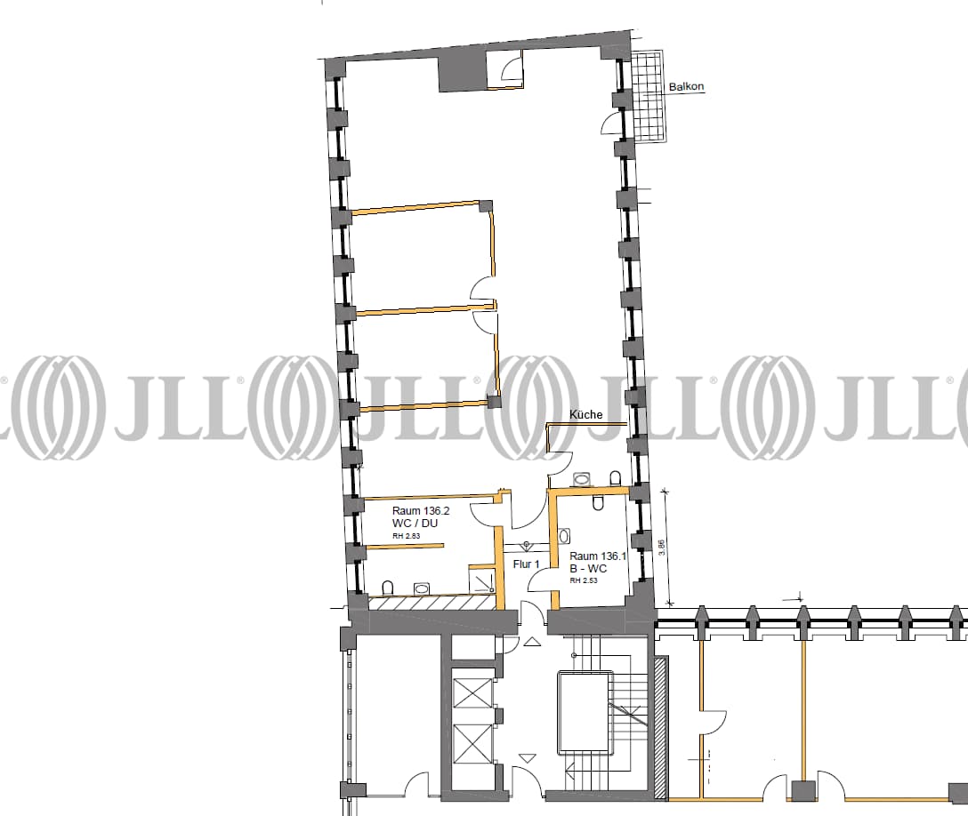
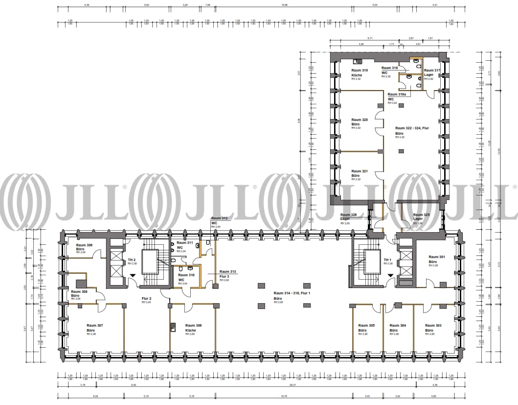
- Fläche535 - 2.656 m²
- VerfügbarkeitSofort
- Objekt
- Ausstattung
- Lage und Verkehrsanbindung
- Grundrisse
- Exposé herunterladen
- Ihr Kontakt
- Anfrage senden
Objekt
Der 11-geschossige Turm bietet modern ausgestattete Büroflächen mit fantastischem Panoramablick bei fairem Preis-/ Leistungsverhältnis. Das Objekt überzeugt neben seiner sehr guten Lage an einer der renommiertesten Büromeile in Essen und der guten Verkehrsanbindung vor allem durch seine hochwertigen Büroflächen. Im Untergeschoss können Lagerflächen angemietet werden. Es gibt ausreichend Parkplätze direkt am Objekt und in der hauseigenen Tiefgarage.
Zertifizierungen
Energieausweis
Für diese Liegenschaft liegt ein Verbrauchsausweis vom 2008-07-25 vom Eigentümer/Vermieter vor. Der wesentliche Energieträger der Liegenschaft ist Fernwärme. Der Endenergieverbrauch Strom beträgt 48.50 kWh/(m²*a). Der Endenergieverbrauch Wärme beträgt 120.20 kWh/(m²*a).Verfügbare Fläche
Lage und Verkehrsanbindung
Die Büromarktzone Südviertel verbindet die Innenstadt mit der Büromarktzone Rüttenscheid, von welcher sie im Süden begrenzt wird. Westlich wird die Büromarktzone durch die B 224, im Osten von der Helbigstraße begrenzt. International tätige Großunternehmen haben hier ihren Sitz und residieren in modernisierten Bestands- und Neubauprojekten. Und der Standort wächst noch, wie interessante Projektentwicklungen zeigen. Wer hier arbeitet profitiert nicht nur von einer businessorientierten und motivierenden Arbeitsumgebung, sondern auch von der Nähe zur Innenstadt und der RÜ. Am Essener Stadtgarten im Südviertel befinden sich der Saalbau der Essener Philharmonie und das Aalto-Theater. Das Südviertel wird geprägt durch den Hochhausgürtel der Stadt, der die markante Skyline Essens formt. Die Autobahn A 40 verläuft durch das Südviertel, wodurch die regionale und überregionale Anbindung gewährleistet wird.
- Hauptbahnhof, Düsseldorf, Fahrzeit: 3 min
- U-Bahn, Philharmonie U11, Gehzeit: 1 min
- Straßenbahn/Tram, Philharmonie 107, 108, Gehzeit: 1 min
- Bus, Hohenzollernstraße 145, 146, Gehzeit: 7 min
- Bundesautobahn, A 40, Fahrzeit: 3 min
- Bundesautobahn, A 52, Fahrzeit: 6 min
- Flughafen, Düsseldorf, Fahrzeit: 18 min
Ihr Kontakt

Martin Jahnke
Ihr Kontakt







