
Büros
ID D1850Büroimmobilie - Dortmund, Innenstadt-West - D1850
Innenstadt-West, 44137, Dortmund, Nordrhein-Westfalen
Provisionspflichtig: bei Anmietung 3 Netto-Monatsmieten zzgl. gesetzlicher Umsatzsteuer.** der Wert kann je nach Vertragslaufzeit variieren.
13,50 € - 15 € / m²
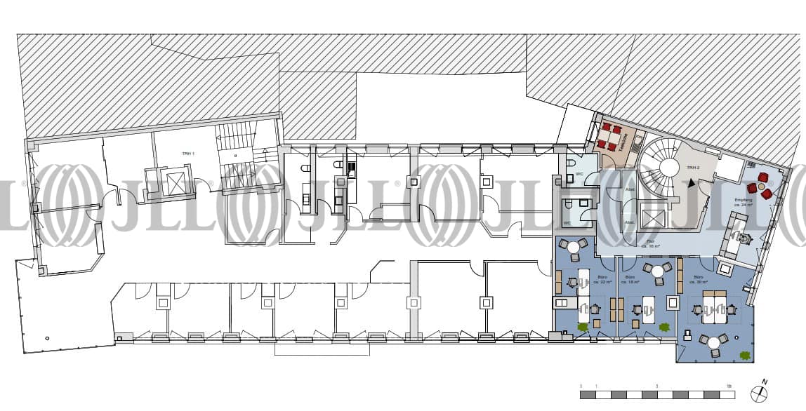
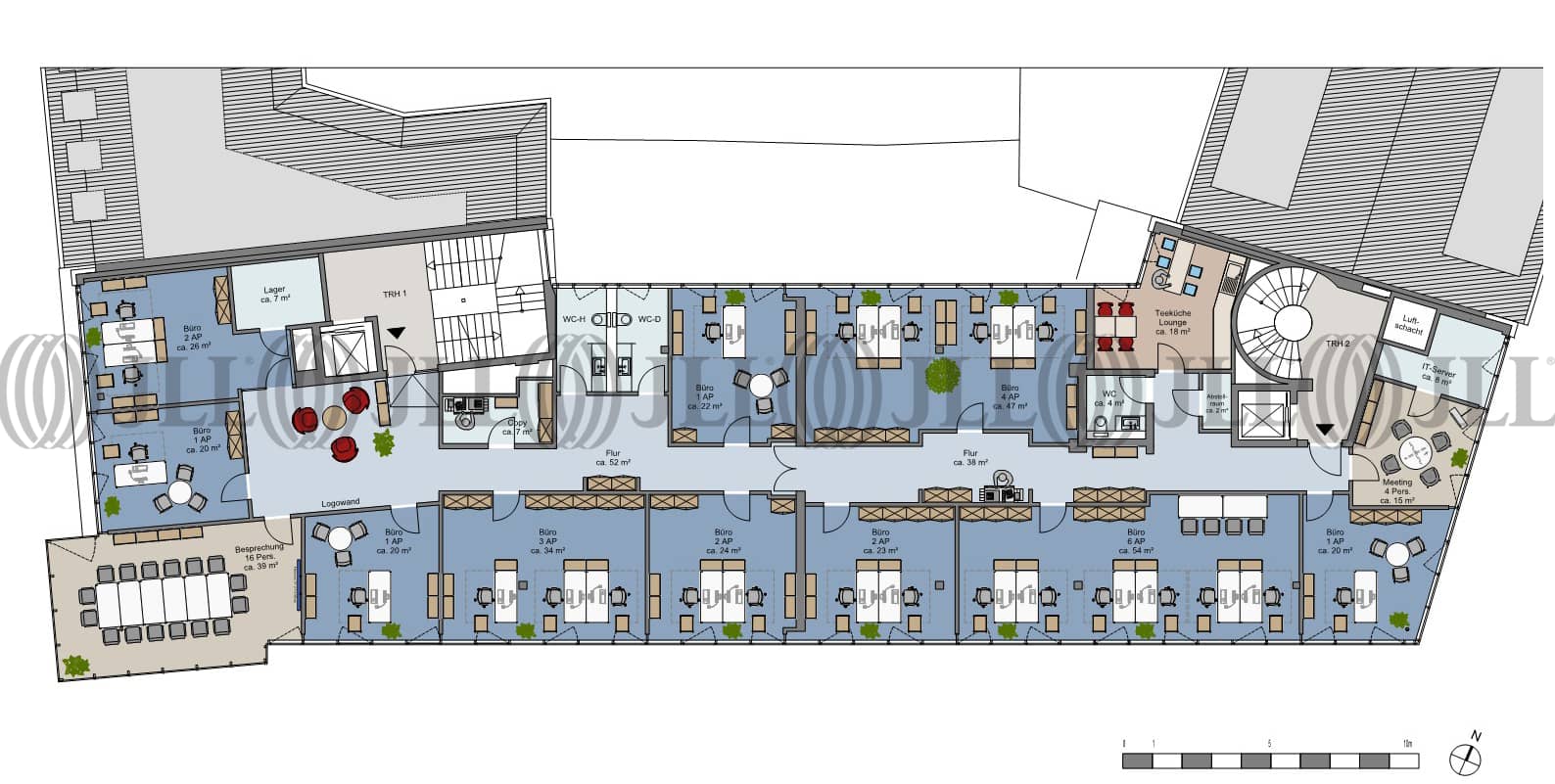
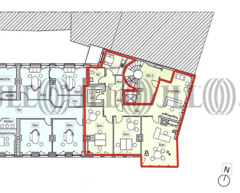
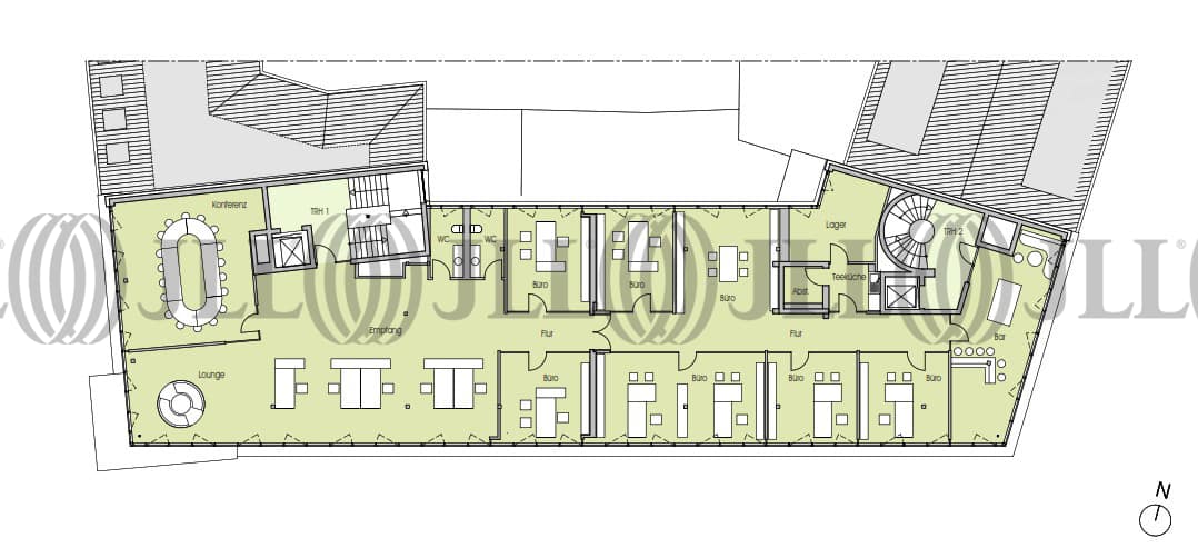
- Fläche148 - 1.222 m²
- VerfügbarkeitSofort
- Objekt
- Ausstattung
- Lage und Verkehrsanbindung
- Grundrisse
- Exposé herunterladen
- Ihr Kontakt
- Anfrage senden
Objekt
Das Objekt verfügt über hochwertigste Büroflächen, ist vollständig klimatisiert und bietet einen schönen Blick auf die Innenstadt. Im Erdgeschoss befindet sich ein eigenes Café.
Zertifizierungen
Energieausweis
DGNB: BronzeFür diese Liegenschaft liegt ein Verbrauchsausweis vom 26.04.2018 vom Eigentümer/Vermieter vor. Der wesentliche Energieträger der Liegenschaft ist Fernwärme. Der Endenergieverbrauch Strom beträgt 17.30 kWh/(m²*a). Der Endenergieverbrauch Wärme beträgt 48.60 kWh/(m²*a).
Verfügbare Fläche
Lage und Verkehrsanbindung
Die Büromarktzone City umfasst die Grenzen der historischen Stadt Dortmund innerhalb der Wallanlagen. Sie wird von West nach Ost durch die Einkaufsstraßen Westenhellweg und Ostenhellweg durchzogen. Der Westenhellweg beginnt nahe der Reinoldikirche und erstreckt sich in Richtung Westen. Der Ostenhellweg beginnt zwischen der Reinoldikirche und führt nach Osten hin zum Wall. Die zentrale Lage mit ausgezeichneter ÖPNV-Anbindung und Infrastruktur hat zahlreiche umsatzstarke Firmen jeglicher Branche hergezogen. Auch bekannte Modeketten, Gastronomien, Parfümerien oder Elektronik Märkte sind zahlreich vertreten. Markante Gebäude sind die Corso Passage sowie das Krügerhaus. Der internationale Flughafen Dortmund ist nur ca. 20 Autominuten entfernt.
- Hauptbahnhof, Dortmund, Fahrzeit: 3 min
- U-Bahn, Kampstraße U41, U43, U44, U45, U47, U49, Gehzeit: 1 min
- Bus, Hauptbahnhof 412, 453, 455, 456, 460, 475, Gehzeit: 3 min
- Bundesautobahn, A 40, Fahrzeit: 9 min
- Bundesautobahn, A 45, Fahrzeit: 10 min
- Flughafen, Düsseldorf, Fahrzeit: 50 min
Ihr Kontakt

Martin Jahnke
Ihr Kontakt