Büros
ID D1840Büroimmobilie - Essen, Kettwig - D1840
Kettwig, 45219, Essen, Nordrhein-Westfalen
Provisionspflichtig: bei Anmietung 3 Netto-Monatsmieten zzgl. gesetzlicher Umsatzsteuer.** der Wert kann je nach Vertragslaufzeit variieren.
9,50 € / m²
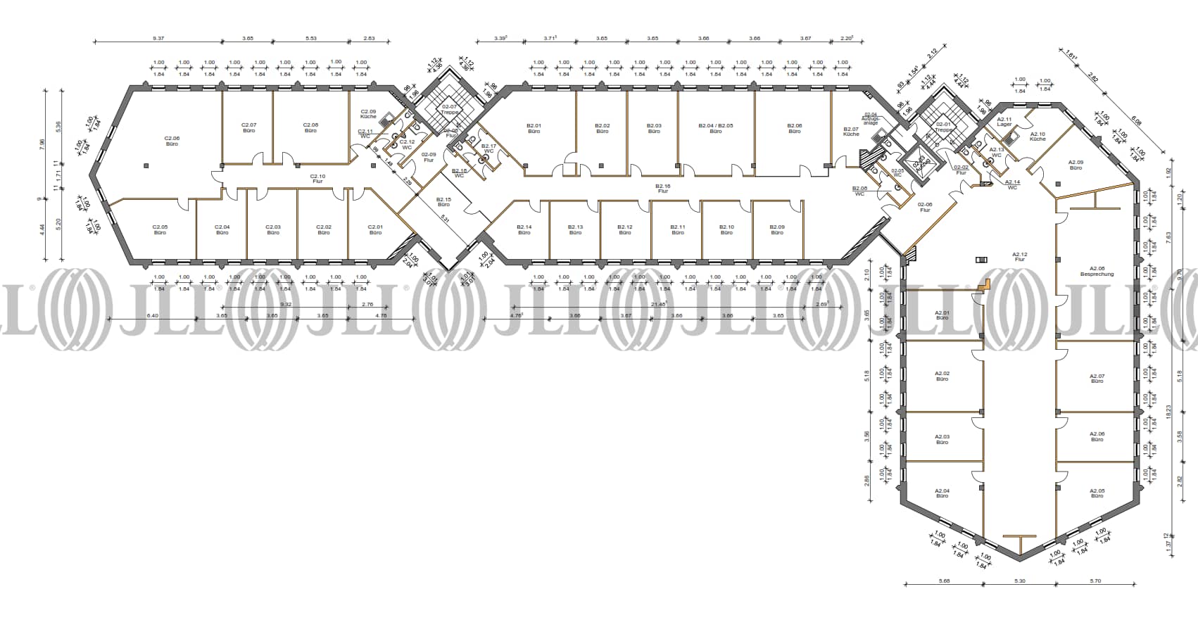
- Fläche762 - 1.195 m²
- VerfügbarkeitSofort
- Objekt
- Ausstattung
- Lage und Verkehrsanbindung
- Grundrisse
- Exposé herunterladen
- Ihr Kontakt
- Anfrage senden
Objekt
Das attraktive Bürohaus bietet moderne und repräsentative Mietflächen in einer ansprechenden Lage von Essen- Kettwig. Die Mietflächen überzeugen mit ihren hellen Räumen und dem sehr repräsentativen Eingangsbereich. Alle Flächen können nach Absprache an Ihre Nutzerbedürfnisse angepasst werden. Stellplätze befinden sich unmittelbar vor dem Gebäude und können zu den einzelenen Flächen angemietet werden. Die Büroflächen bietten Nutzern aus allen Branchen ein attraktives und modernes Arbeitsumfeld.
Verfügbare Fläche
Lage und Verkehrsanbindung
Das Gewerbegebiet Im Teelbruch befindet sich in Kettwig und liegt unweit der A 52 an der Meisenburgstraße. Neben produzierendem Gewerbe haben sich viele Dienstleistungsunternehmen Im Teelbruch angesiedelt. Für Pendler aus dem Süden ist dieser Standort besonders gut erreichbar.
- Hauptbahnhof, Essen, Fahrzeit: 12 min
- Bus, Bushaltestelle Im Teelbruch Buslinien 142, Gehzeit: 4 min
- Bundesautobahn, A 52, Fahrzeit: 5 min
- Bundesautobahn, A 3, Fahrzeit: 10 min
- Flughafen, Düsseldorf, Fahrzeit: 15 min
Ihr Kontakt

Martin Jahnke
Ihr Kontakt




