Büros
ID D1785Büroimmobilie - Essen, Südviertel - D1785
Südviertel, 45128, Essen, Nordrhein-Westfalen
Provisionspflichtig: bei Anmietung 3 Netto-Monatsmieten zzgl. gesetzlicher Umsatzsteuer.** der Wert kann je nach Vertragslaufzeit variieren.
12 € / m²
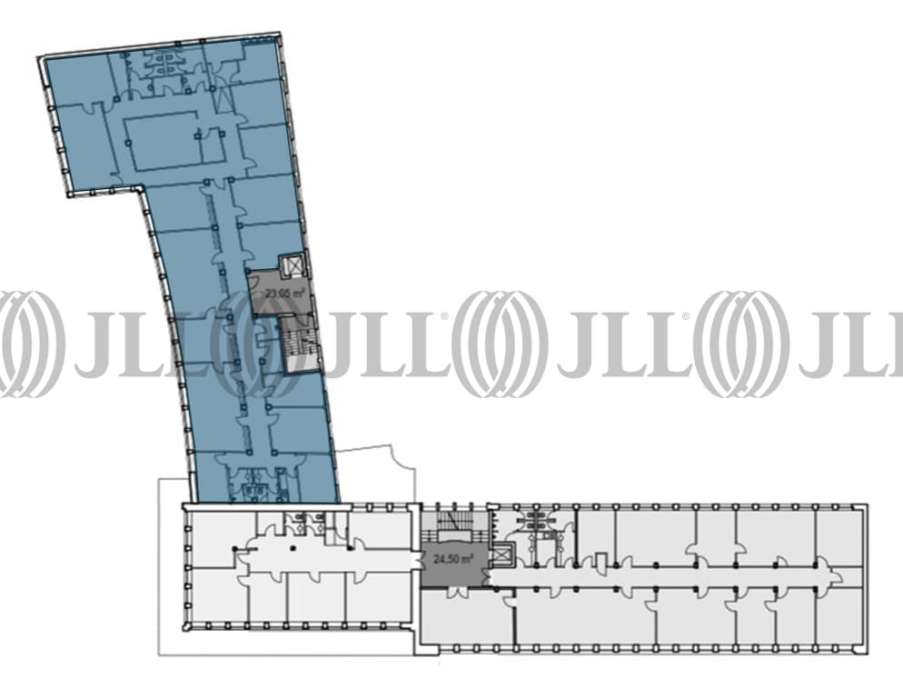
- Fläche428 - 1.552 m²
- VerfügbarkeitI quartal 2027
- Objekt
- Ausstattung
- Lage und Verkehrsanbindung
- Grundrisse
- Exposé herunterladen
- Ihr Kontakt
- Anfrage senden
Objekt
Das Holtgreve Bürohaus wurde während des Wirtschaftswunders 1953 als Büro- und Lagergebäude errichtet und befindet sich in markanter Ecklage in Essen Süd. Zeitgemäß saniert bietet es Ihrem Unternehmen flexible Nutzungsmöglichkeiten in einem repräsentativen Umfeld. Der besondere Flair des aus zwei Teilen bestehenden Gebäudeensembles entsteht aus einer durchdachten Neugestaltung: Historische Baubestandteile wurden weitgehend erhalten und mit neuen Elementen kombiniert, die auf moderne Weise die typische Optik der 50er Jahre interpretieren. Ein eindrucksvolles Leuchtkonzept verbindet die Einheiten der beiden Gebäudeteile, großzügige Grünflächen im Innenhof verleihen dem Bürohaus eine offene, entspannte Atmosphäre. Zwei gleichwertige Eingänge führen in einladende Foyer-Bereiche im Stil der 50er.
Zertifizierungen
Energieausweis
Für diese Liegenschaft liegt ein Bedarfsausweis vom 2009-07-22 vom Eigentümer/Vermieter vor. Die wesentlichen Energieträger der Liegenschaft sind Nahwärme,Fernwärme. Endenergiebedarf: 216.20000 kWh/(m²*a).Verfügbare Fläche
Lage und Verkehrsanbindung
Die Büromarktzone Südviertel verbindet die Innenstadt mit der Büromarktzone Rüttenscheid, von welcher sie im Süden begrenzt wird. Westlich wird die Büromarktzone durch die B224 und im Osten von der Helbigstraße begrenzt. International tätige Großunternehmen haben hier ihren Sitz und residieren in modernisierten Bestands- und Neubauprojekten. Und der Standort wächst noch, wie interessante Projektentwicklungen zeigen. Wer hier arbeitet, profitiert nicht nur von einer businessorientierten und motivierenden Arbeitsumgebung, sondern auch von der Nähe zur Innenstadt und der Rü. Am Essener Stadtgarten im Südviertel befinden sich der Saalbau der Essener Philharmonie und das Aalto-Theater. Das Südviertel wird geprägt durch den Hochhausgürtel der Stadt, der die markante Skyline Essens formt. Hervorzuheben sind dabei der RWE-Turm, die Evonik-Häuser, das Rheinstahl-Hochhaus sowie das Postbank-Hochhaus. Die Autobahn A 40 verläuft durch das Südviertel, wodurch die regionale und überregionale Anbindung gewährleistet wird.
- Hauptbahnhof, Essen, Fahrzeit: 5 min
- Straßenbahn/Tram, Kronprinzenstraße 101, 105, 106, Gehzeit: 1 min
- Bus, Kronprinzenstraße 154, 155, Gehzeit: 1 min
- Bundesautobahn, A 40, Fahrzeit: 4 min
- Bundesautobahn, A 52, Fahrzeit: 4 min
- Flughafen, Düsseldorf, Fahrzeit: 20 min
Ihr Kontakt

Martin Jahnke
Ihr Kontakt











