
Büros
ID D1777Büroimmobilie - Düsseldorf, Rath - D1777
Rath, 40472, Düsseldorf, Nordrhein-Westfalen
Provisionspflichtig: bei Anmietung 3 Netto-Monatsmieten zzgl. gesetzlicher Umsatzsteuer.** der Wert kann je nach Vertragslaufzeit variieren.
Kontaktieren Sie uns für den Preis
- Fläche273 - 3.143 m²
- Verfügbarkeit24 Monate ab Vertragsunterzeichnung
- Objekt
- Ausstattung
- Lage und Verkehrsanbindung
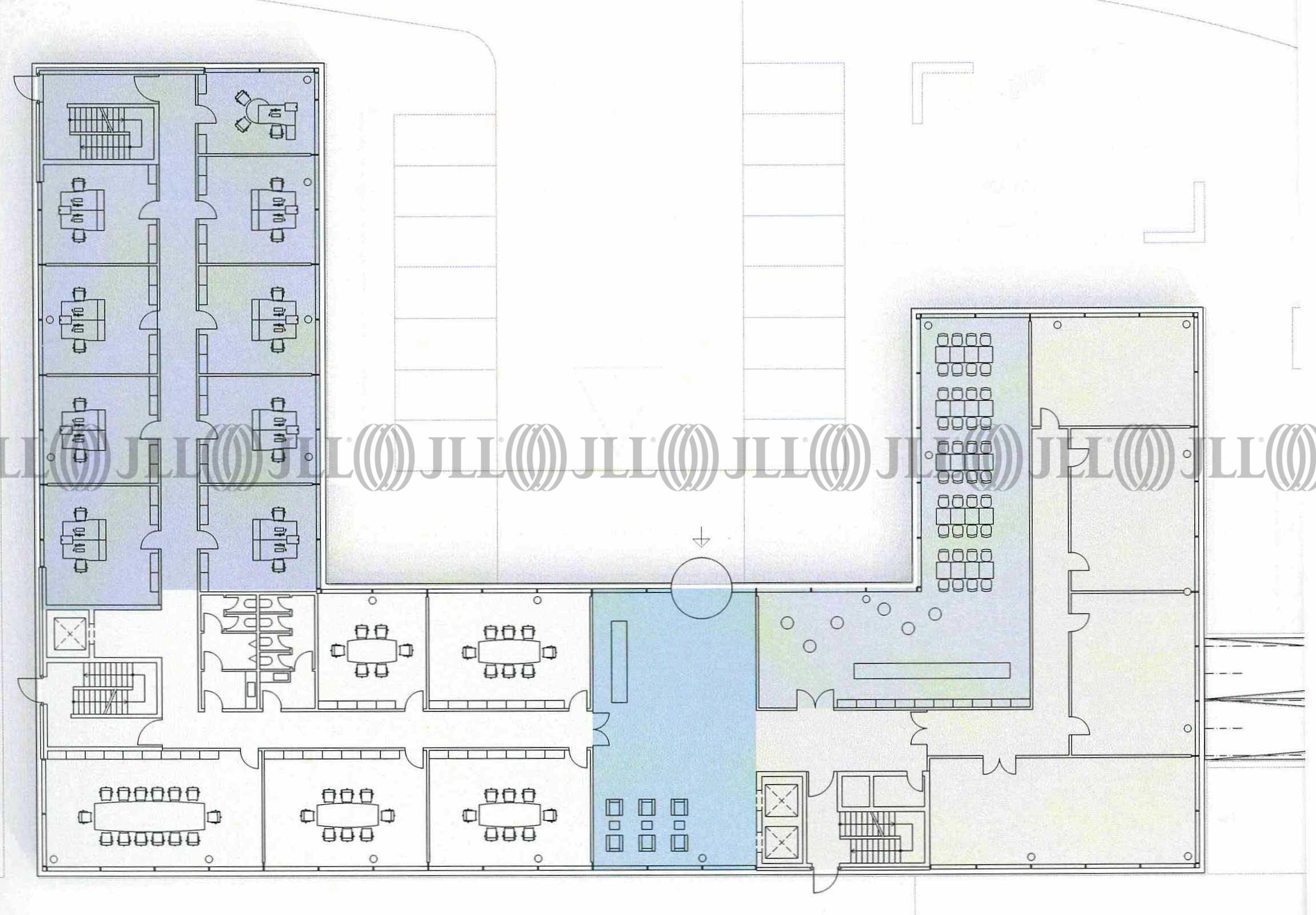
- Grundrisse
- Exposé herunterladen
- Ihr Kontakt
- Anfrage senden
Objekt
Mit dem Frame Office entsteht ein außergewöhnlicher Bürokomplex an einem attraktiven Standort. Das lichtdurchflutete Gebäude wurde mit U-förmigem Grundriss und intelligenter Strukturierung für die Anforderungen moderner Arbeitswelten konzipiert: Durchdachte Grundrisse, flexible Büroflächen, Freiräume und Grünflächen sorgen für eine zukunftsfähige Arbeitsumgebung mit hoher Aufenthaltsqualität. Eine markante Fassade, die von unterschiedlich beschichteten Blechelementen in optische Einheiten – ähnlich verschiedener Bilderrahmen – gegliedert wird, verleiht dem Frame Office seine namensgebende Ästhetik. So entsteht ein neues, repräsentatives Bürogebäude mit rund 5.000 m² Brutto-Grundfläche, dessen Räumlichkeiten maßgeschneidert auf die individuellen Bedürfnisse des zukünftigen Nutzers ausgestaltet werden können.
Verfügbare Fläche
Lage und Verkehrsanbindung
Die Liegenschaft befindet sich in direkter Nähe des Düsseldorfer Flughafens und bietet damit besonders international tätigen Unternehmen beste Voraussetzungen. Auch das Umland ist durch die gute Anbindung an das Autobahnnetz schnell erreichbar. Der Flughafen verfügt über zahlreiche Einkaufsmöglichkeiten und ein breites Angebot an Gastronomie. Eine Tankstelle befindet sich in der Nähe.
- Hauptbahnhof, Düsseldorf, Fahrzeit: 20 min
- Straßenbahn/Tram, DOME / Am Hülserhof 701, Gehzeit: 3 min
- Bus, DOME / Am Hülserhof 757, Gehzeit: 3 min
- Bundesautobahn, A 52, Fahrzeit: 3 min
- Bundesautobahn, A 44, Fahrzeit: 4 min
- Bundesautobahn, A 3, Fahrzeit: 8 min
- Bundesautobahn, A 57, Fahrzeit: 13 min
- Flughafen, Düsseldorf, Fahrzeit: 5 min
Ihr Kontakt

Frederik VonWirth
Ihr Kontakt