
Büros
ID D1760Büroimmobilie - Essen, Südviertel - D1760
Südviertel, 45128, Essen, Nordrhein-Westfalen
Provisionspflichtig: bei Anmietung 3 Netto-Monatsmieten zzgl. gesetzlicher Umsatzsteuer.** der Wert kann je nach Vertragslaufzeit variieren.
Kontaktieren Sie uns für den Preis
- Fläche57 - 325 m²
- VerfügbarkeitSofort
- Objekt
- Ausstattung
- Lage und Verkehrsanbindung
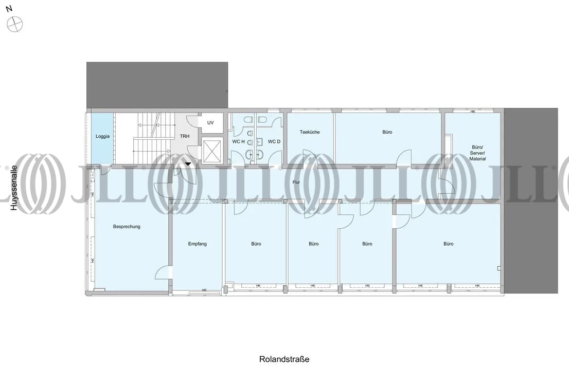
- Grundrisse
- Exposé herunterladen
- Ihr Kontakt
- Anfrage senden
Objekt
Das 6-geschossige Büro- und Geschäftshaus verfügt über variable, aufteilbare Mietflächen mit einem idealen Achsraster. Es eignet sich sowohl für eine kleinteilige Verzimmerung, als auch für die Großraumnutzung und wird somit allen Ansprüchen an flexibele Veränderungsmöglichkeiten gerecht. Die Flächen werden in Absprache mit dem zukünftigen Mieter aufgeteilt und renoviert.
Zertifizierungen
Energieausweis
Für diese Liegenschaft liegt ein Bedarfsausweis vom 2014-04-30 vom Eigentümer/Vermieter vor. Die wesentlichen Energieträger der Liegenschaft sind KWK,Strom. Endenergiebedarf: 160.10000 kWh/(m²*a).Verfügbare Fläche
Lage und Verkehrsanbindung
Die Büromarktzone Südviertel verbindet die Innenstadt mit der Büromarktzone Rüttenscheid, von welcher sie im Süden begrenzt wird. Westlich wird die Büromarktzone durch die B224 und im Osten von der Helbigstraße begrenzt. International tätige Großunternehmen haben hier ihren Sitz und residieren in modernisierten Bestands- und Neubauprojekten. Und der Standort wächst noch, wie interessante Projektentwicklungen zeigen. Wer hier arbeitet, profitiert nicht nur von einer businessorientierten und motivierenden Arbeitsumgebung, sondern auch von der Nähe zur Innenstadt und der Rü. Am Essener Stadtgarten im Südviertel befinden sich der Saalbau der Essener Philharmonie und das Aalto-Theater. Das Südviertel wird geprägt durch den Hochhausgürtel der Stadt, der die markante Skyline Essens formt. Hervorzuheben sind dabei der RWE-Turm, die Evonik-Häuser, das Rheinstahl-Hochhaus sowie das Postbank-Hochhaus. Die Autobahn A 40 verläuft durch das Südviertel, wodurch die regionale und überregionale Anbindung gewährleistet wird.
- Hauptbahnhof, Essen, Gehzeit: 4 min
- Bahnhof, Hauptbahnhof RB40, RE1, RE2, RE6, RE11, RE14, RE16, RE42, RE49, S1, S2, S3, S6, S9, Gehzeit: 4 min
- U-Bahn, Hauptbahnhof U11, U17, U18, Gehzeit: 4 min
- Straßenbahn/Tram, Hauptbahnhof 101, 105, 106, 107, 108, Gehzeit: 4 min
- Bus, Hauptbahnhof SB15, SB16, SB19, 145, 146, 154, 155, 166, 196, Gehzeit: 4 min
- Bundesautobahn, A 40, Fahrzeit: 2 min
- Bundesautobahn, A 52, Fahrzeit: 5 min
- Flughafen, Düsseldorf, Fahrzeit: 19 min
Ihr Kontakt

Martin Jahnke
Ihr Kontakt