Büros
ID D1719Aktualisiert
Büroimmobilie - Düsseldorf, Friedrichstadt - D1719
Friedrichstadt, 40217, Düsseldorf, Nordrhein-Westfalen
Provisionspflichtig: bei Anmietung 3 Netto-Monatsmieten zzgl. gesetzlicher Umsatzsteuer.** der Wert kann je nach Vertragslaufzeit variieren.
30 € - 32 € / m²
- Fläche250 - 1.702 m²
- Verfügbarkeit01.02.2026
- Objekt
- Ausstattung
- Lage und Verkehrsanbindung
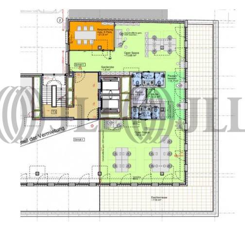
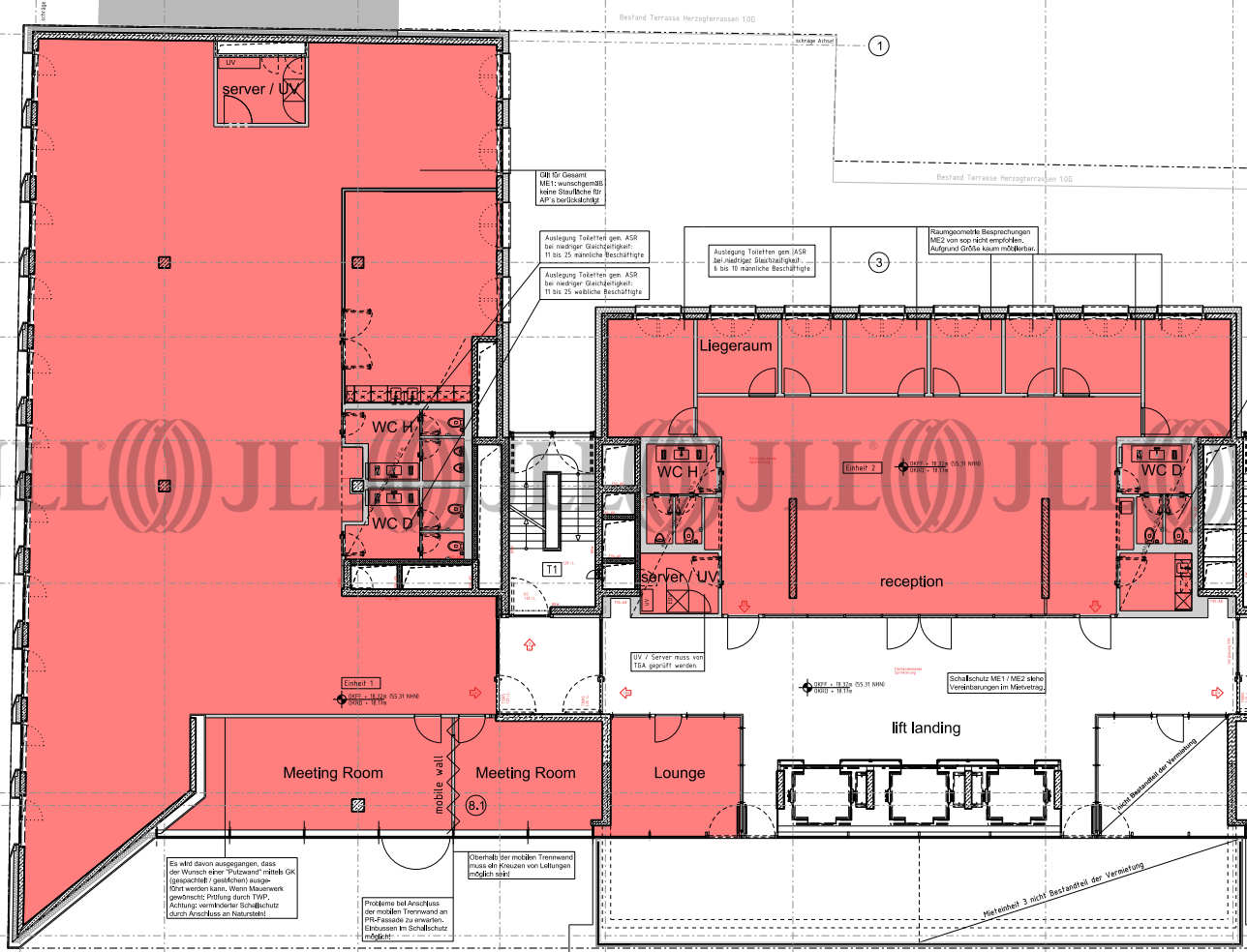
- Grundrisse
- Exposé herunterladen
- Ihr Kontakt
- Anfrage senden
Objekt
Bei dieser sehr zentralen Liegenschaft handelt es sich um moderne Office-Welten hinter geschichtsträchtiger Fassade. Die historische Fassade ist umhüllt von einer imposanten Glasfront und bietet modernste Architektur. Auf rund fünf Etagen findet sich Platz für flexibles und modernstes Arbeiten.
Zertifizierungen
Energieausweis
LEED: GoldFür diese Liegenschaft liegt ein Verbrauchsausweis vom 2014-04-02 vom Eigentümer/Vermieter vor. Der wesentliche Energieträger der Liegenschaft ist Fernwärme. Der Endenergieverbrauch Strom beträgt 55.00 kWh/(m²*a). Der Endenergieverbrauch Wärme beträgt 136.00 kWh/(m²*a).
Verfügbare Fläche
Lage und Verkehrsanbindung
Die Liegenschaft befindet sich in zentraler Innenstadtlage von Düsseldorf. Dieser Standort zeichnet sich besonders durch eine sehr gute Infrastruktur und ÖPNV Anbindung aus. Zahlreiche Einkaufsmöglichkeiten, Geschäfte des alltäglichen Bedarfs sowie Restaurants und Ärzte sind in unmittelbarer Nähe zu finden. Die Altstadt direkt am Rhein gelegen sowie die beliebte Einkaufsmeile Königsallee laden zum Verweilen ein und liegen in fußläufiger Entfernung. Eine Tankstelle befindet sich in der Nähe. Dienstleister des täglichen Bedarfs befinden sich in der Nähe.
- Flughafen, Düsseldorf, Fahrzeit: 13 min
- Bundesautobahn, A 52, Fahrzeit: 6 min
- Bundesautobahn, A 46, Fahrzeit: 7 min
- Bus, Kirchplatz 732, 736, 835, 836, Gehzeit: 1 min
- Hauptbahnhof, Düsseldorf, Fahrzeit: 5 min
- U-Bahn, Kirchplatz U71, U72, U73, U83, Gehzeit: 1 min
Ihr Kontakt

Janice Lehmann
Ihr Kontakt















