Büros
ID D1715Büroimmobilie - Düsseldorf, Unterbilk - D1715
Unterbilk, 40217, Düsseldorf, Nordrhein-Westfalen
Provisionspflichtig: bei Anmietung 3 Netto-Monatsmieten zzgl. gesetzlicher Umsatzsteuer.** der Wert kann je nach Vertragslaufzeit variieren.
14,50 € - 15 € / m²
- Fläche145 - 290 m²
- VerfügbarkeitSofort
- Objekt
- Ausstattung
- Lage und Verkehrsanbindung
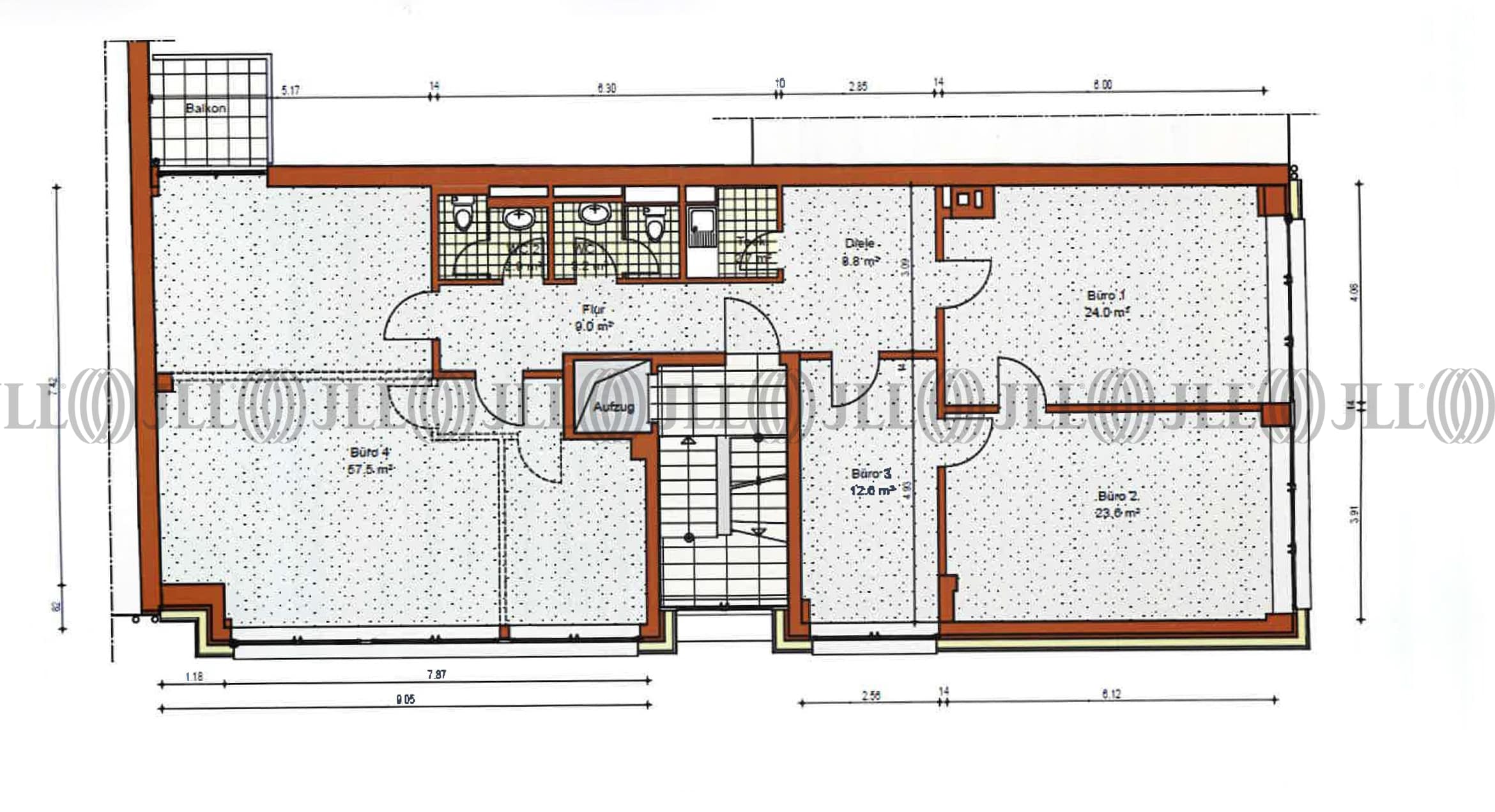
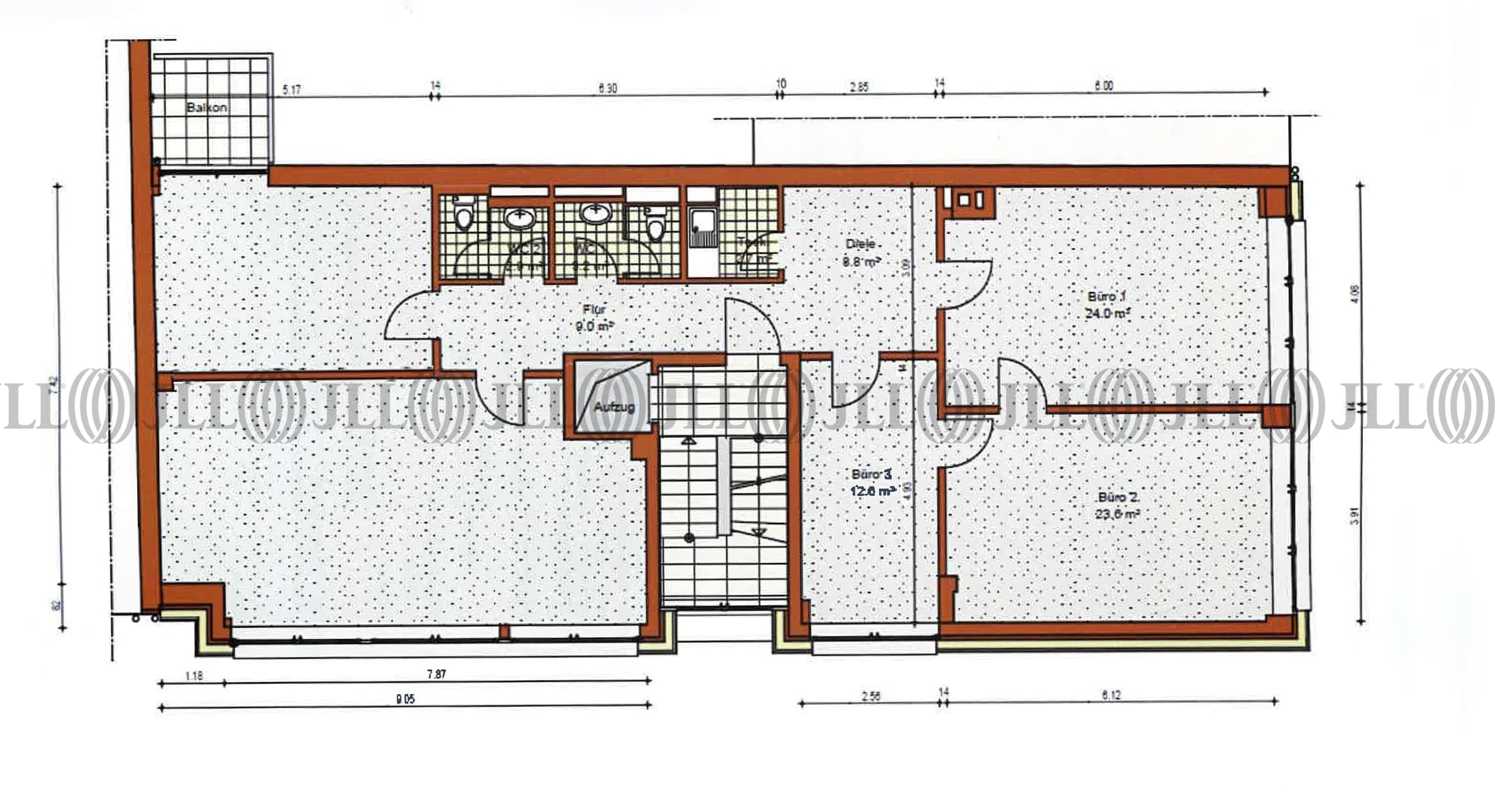
- Grundrisse
- Exposé herunterladen
- Ihr Kontakt
- Anfrage senden
Objekt
Die 6-geschossige Liegenschaft aus dem Jahre 1970 besticht durch ihre moderne Fassade. Die Büroflächen verfügen über großzügige Räume sowie einen zur Rückseite liegenden Balkon.
Zertifizierungen
Energieausweis
Für diese Liegenschaft liegt ein Verbrauchsausweis vom 2014-04-22 vom Eigentümer/Vermieter vor. Der wesentliche Energieträger der Liegenschaft ist Fernwärme. Der Endenergieverbrauch Strom beträgt 48.00 kWh/(m²*a). Der Endenergieverbrauch Wärme beträgt 163.70 kWh/(m²*a).Verfügbare Fläche
Lage und Verkehrsanbindung
Die Liegenschaft befindet sich in zentraler Innenstadtlage von Düsseldorf. Dieser Standort zeichnet sich besonders durch eine sehr gute Infrastruktur und ÖPNV Anbindung aus. Zahlreiche Einkaufsmöglichkeiten, Geschäfte des alltäglichen Bedarfs sowie Restaurants und Ärzte sind in unmittelbarer Nähe zu finden. Die Altstadt direkt am Rhein gelegen sowie die beliebte Einkaufsmeile Königsallee laden zum Verweilen ein und liegen in fußläufiger Entfernung.
- Flughafen, Düsseldorf, Fahrzeit: 13 min
- Bundesautobahn, A 52, Fahrzeit: 4 min
- Bundesautobahn, A 46, Fahrzeit: 5 min
- Hauptbahnhof, Düsseldorf, Fahrzeit: 5 min
- U-Bahn, Kichplatz U71, U72, U73, U83, Gehzeit: 4 min
Ihr Kontakt

Anna-Louisa Kratochvil
Ihr Kontakt


