Büros
ID D1692Provisionsfrei
Aktualisiert
Büroimmobilie - Düsseldorf, Oberkassel - D1692
Oberkassel, 40545, Düsseldorf, Nordrhein-Westfalen
20 € / m²
- Fläche299 - 722 m²
- VerfügbarkeitSofort
- Objekt
- Ausstattung
- Lage und Verkehrsanbindung
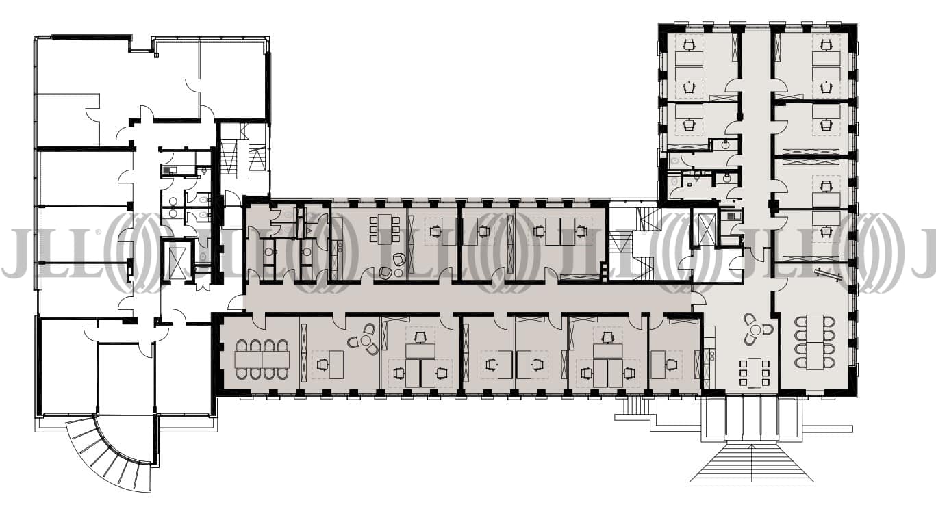
- Grundriss
- Exposé herunterladen
- Ihr Kontakt
- Anfrage senden
Objekt
Der Bürokomplex besteht aus zwei Gebäudeteilen, die intern miteinander verbunden werden können. Die hochwertige Naturstein- / Glasfassade des 8- bzw. 5-geschossigen Gebäudes rundet das gesamte Ensemble ab.
Zertifizierungen
Energieausweis
Für diese Liegenschaft liegt ein Bedarfsausweis vom 2021-12-17 vom Eigentümer/Vermieter vor. Die wesentlichen Energieträger der Liegenschaft sind Strom,Erdgas schwer. Der Endenergiebedarf Strom beträgt 27.20 kWh/(m²*a). Der Endenergiebedarf Wärme beträgt 197.90 kWh/(m²*a).Verfügbare Fläche
Lage und Verkehrsanbindung
Die Liegenschaft befindet sich im renommierten Stadtteil Oberkassel. Die Luegallee, mit ihrem breiten Angebot an Gastronomie und Einzelhandel, ist ebenso wie das Rheinufer schnell erreichbar. Der Standort wird durch eine gute Anbindung an das Autobahnnetz und den ÖPNV abgerundet.
- Flughafen, Düsseldorf, Fahrzeit: 11 min
- Bundesautobahn, A 52, Fahrzeit: 6 min
- Bundesautobahn, A 57, Fahrzeit: 9 min
- Bus, Barbarossaplatz 833, Gehzeit: 6 min
- Straßenbahn/Tram, Luegplatz U70, U74, U75, U76, U77, Gehzeit: 3 min
- Hauptbahnhof, Düsseldorf, Fahrzeit: 12 min
Ihr Kontakt

Anna-Louisa Kratochvil
Ihr Kontakt






